
南京国际青年文化中心坐落于河西新城——南京新中央商务区(CBD)。该项目包括占地约为106,500平方米的会议中心,两座总面积为258,500平方米的塔楼,100,000平方米的地下层区域以及位于临界河滨的中央商务区主轴的公众广场。

从总体规划可以看到河西新区的城市环境、河滨公园与由步行桥(俗称南京眼)连接而至的江心洲岛特有的乡村景观之间形成了统一和谐的连续性和连通感。


南京国际青年文化中心占地5.2公顷,总面积约为465,000平方米。两座相邻塔楼并肩独享江景,高315米,共68层,功能上包含办公楼和著名的卓美亚酒店。较矮的塔楼高度为255米,59层,并设有另一家四星级酒店。这两座塔楼共用一个五层包含文化中心等多功能用途的裙房。
文化中心主要分为四个功能分区:会议厅,礼堂,多功能厅和会客厅,它们分别形成围绕着中央庭院的四个独立体量,并融合成更高的单一整体。行人可以从地面层的开放景观在其中穿梭来往。会议厅可容纳2,100人,并配有多功能的舞台,适合举办会议,文化和戏剧活动。礼堂可容纳500人,并同时可以兼容不插电等管弦乐队演出,以及演唱会等多种类型的演艺活动。


整个一体化的塔楼设计创造了从城市中央商务区的垂直感与河流地形水平向的动态过渡。较高的塔楼呼应位于南京天际线与河西新城的城市规划中广场的位置。运用现代流畅的建筑语汇手段,将河流的自然景观通过多功能的裙房连接城市新CBD的繁华街景。这种建筑构图将垂直(城市)和水平(河流的景观)形成并置的对比效果。

在塔楼和裙房之间的界面连接处,玻璃幕墙逐渐装饰有渐变形式的菱形纤维混凝板网格,使裙房和大面积的会议中心表皮形成紧密联系的雕塑感外观效果; 并且强调形式的动态特征,并为建筑物的内部空间提供自然日照环境。
该青年文化中心是中国第一个完全同时进行自上而下、自下而上的塔式建筑- 扎哈哈迪德建筑师事务所从底层开始,同时向上和向下建造- 使用3D数字专业技术BIM(一种建筑信息模型工具)设计应用,凭借着业界内一流的技术和经验,仅在34个月内完成建成和施工管理,将现场计划至少减少了一年18个月。

面积约为46.5万平方米的南京国际青年文化中心最初为2014年青奥会开幕。而现在南京卓美亚酒店独占了该中心最高的(BIM教程)塔楼。作为世界领先的豪华酒店品牌之一,卓美亚最近完成了南京饭店的竣工,成为该市首屈一指的度假酒店目的地。

图纸

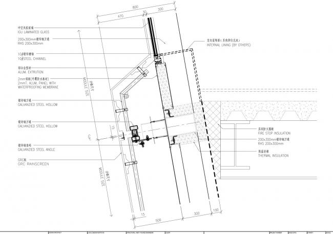
细节构件图

BIM分析区位图

东立面图
南立面图

数字三维结构模型

首层平面图

二层平面图

西立面图

总平面图

幕墙系统楼板节点图
剖面图
项目信息
建筑师:扎哈哈迪德建筑师事务所
地点:南京,江苏,中国
设计:扎哈哈迪德,帕特里克舒马赫
ZHA项目总监:尼尔斯- 彼得菲舍尔
总建筑面积:465000.0平(BIM设计)方米
项目年份:2018年
建筑摄影:Hufton Crow ZHA
咨询助理:Cristiano Ceccato
ZHA项目建筑师:黄绍伟
景观设计师:SWA集团
照明顾问:Brandston Partnership Ltd.
声学顾问:中国浙江大学
剧院顾问:中国工艺美术学院
主承包商:中国建筑工程总公司分部,中国建筑工程总公司分部

BIM建筑网





评论前必须登录!
注册