场地与历史
衡水湖湿地公园与衡水市区之间,曾经有一块芦苇丛生的洼地,多年来周边工厂的排污令这里的水质和土壤环境收到严重伤害。作为旷野中唯一的建筑,砖窑高耸的烟囱极有辨识性。随着国家保护耕地,禁用实心黏土砖的政策,这类曾经遍布城乡的霍夫曼窑,瞬间退出历史舞台。这座砖窑也荒废下来,成为无主之物,逐渐坍塌。人的记忆敌不过城市发展速度,要不了几年,大家就会以为这里从来都是衡水植物园。这种与过去完全告别的方式不免有些可惜。所以即使结构的安全鉴定是“拆除”,我们还是希望能够通过新的建造串联场地的过去和现在,为这里留下些历史的痕迹。

对岸望东立面

水岸边东立面局部

东立面局部
重建≠复制
业主计划在砖窑的旧址上修建一个花房艺术中心,主要用来展示花卉盆栽。从空间上,它需要完成从内向的生产建筑(砖窑)到外向的展览建筑之间的转化。通过对砖窑空间意向的保留,形成砖窑所代表的过去与花房之间的内在联系。其中观景塔保留了大烟囱的符号性,形成一个具体的记忆点。从可达性上,也能让人“爬上烟囱看一看”。

水岸边看东立面
空间从内向到外向的转化
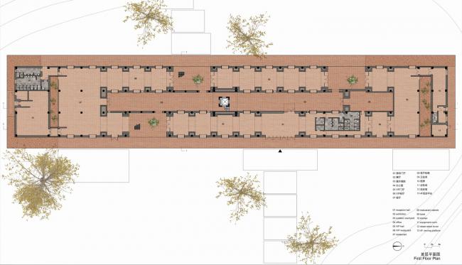
砖窑是一个外人禁入的生产性建筑,外廊是烧制砖坯的隧廊,中心是封闭的烟道。花房艺术中心从平面参考了霍夫曼窑,由环形拱廊包围中间内院的形式组成一个回字形平面。

花房艺术中心平面
花房艺术中心面向公众开放,有科普展示功能。公共性在几个层面体现:通过打断外圈的拱廊打开内院,形成半开放的小广场。这些小广场将内院与周边环境联系在一起,内部与外部、景观与建筑的边界被模糊化。这些院落形成观景塔入口的同时,也是游客快速穿越建筑的路径;裙房的屋面被设计成一个向公众开放的屋顶花园,提供一个非常规的游览角度;南北两端的餐厅和厨房之间设置院落,即满足功能分区也增加采光。

东立面

主入口广场

内院望观景塔

餐厅院落
环形拱廊与陈列空间的重合
规则排布的出入口使得光影形成规则的空间序列。设计将这种序列提取出来,形成一个个花卉盆栽展厅,关于空间与光影的记忆同时被记录下来。序列性的拱廊一方面在空间上对老砖窑环形外廊产生关联,一方面把展廊切割分段,定义了一个个相互连接的展厅空间。


餐厅夜景

拱形餐厅

办公入口

拱廊细部

拱形展廊
从烟囱到塔
很多人应该都有过爬上烟囱看看的想法。将砖窑最具符号性的烟囱部分转换为观景塔可以算是达成了很多人一直以来的心愿。人们可以选择电梯,也可以步行,登到塔顶。观景塔的四个方向在不同高度设有平台,给爬到不同高度的人提供不同的观景体验。

西侧入口


观景塔

主入口

观景台远眺植物园
从材料到光影
黏土砖出于环保原因已经不可使用。原本建筑的红砖也早已风化,失去承载力。但面砖和劈开砖无论在颜色质感上都是无法接受的。这类砖也无法满足镂空的拼花要求。经过无数轮筛选,终于找到一种与黏土砖颜色、尺寸、比列都极为接近的的页岩砖,作为回应场地历史记忆的物质媒介。

裙房部分的庭院空间采用镂空砌筑方式,暗示(BIM学习)着庭院空间的公共性。红砖材料的通透性打破砖墙的沉重感,给人通透、公共的心里感知。
砖砌筑细部

餐厅夜景

内院入口

内院
红砖立面采用了不同砌筑方法,控制质感的同时,形成不同开孔率。用建构的方式控制光影,空间的丰富性和趣味性都得到加强。观景塔上砖的镂空效果增加了内部楼梯间的采光、减弱塔楼的封闭性,在早晚太阳高度角比较低的时候,光线投影在墙上形成戏剧性的效果。

展厅入口

砖砌筑细部


观景塔内部
伴随着植物园建设和整体的环境治理,水质从浑浊到清澈,洼地转身成为湿(BIM教程)地。植物园里的维护人员几乎都是周边村民,问路时,他们也许不知道花房艺术中心在哪里,但都能准确告诉你,“窑”在什么地方。

水岸看西立面
图纸

总平面图

4F观景塔平面图

剖面图

剖面图

剖面图

东立面图

北立面图

南立面图

西立面图

BIM建筑网





评论前必须登录!
注册