西安大略大学主校区的新建教学大楼将会用作亚瑟·拉巴特家庭护理学院和信息与媒体研究学院的专用教学场所。学院大楼位于校区入口处的重要位置,目前正处于重大的重建工程中,它的存在回应了这座在全球学习研究密集型大学中都享有盛誉的高等学府的重要性。为了实现这一目标,事务所将会在护理学院和信息与媒体研究学院的教学楼内设置一系(BIM工作)列高效(BIM建筑)空间:例如灵活的教学空间、活动学习实验室、临床培训和计算机实验室、媒体研究工作室、图书馆科学设施、教职员工办公室、研究空间和学生空间。

这块场地上的建筑体量将由四部分模块组成,共同为师生提供一系列的学习和社会环境。护理学院和信息与媒体研究学院将共享这座大楼,目的是鼓励在同一栋教学楼内产生不同领域的跨界交流,再将这一影响逐步放大至整个校园乃至全球学术界。教学楼内的通用教室不但可以供护理学院和信息与媒体研究学院使用,其他学院的教职员工也同样可以使用,其内部设置有不同规模的教室,从48个座位的自主学习教室到60个座位的灵活通用教室再到130个座位的正式授课教室均有排布。前三个体量的中心位置是护理学院和信息与媒体学院的扩展空间。第四个体量的设置是该大学的一项关键举措,即共享的公共空间,为人们和思想的融合提供场所和机会。






由这四个组成部分结合在一起而产生的设计方案表现出了强烈的联系感。其形式感通过学生和教师在校园内穿行的现有活动进行表达。在护理学院、信息与媒体学院以及中心庭院相交的公共空间中,现有的行人路线表明了来往穿梭的各个路径。此外,在这些教学体量中还穿插有宽敞的悬臂式眺望点,用来观望远处的运动场和泰晤士河,另外具有互动性的视线关系也为内部空间的活力开放提供了保证。在学术楼的设计中同样重要的是每个体块的逻辑清晰度和功能组织清晰度,其中业主方尤为看中对护理学院和信息与媒体学院的个性塑造。




南侧的翼搂总共有三层高,内部主要为护理学院的专业教学楼,毗邻拉巴特健康科学大楼。休伦大道上设有通往护理学院大楼的专用入口,入口空间通过带有顶盖的门廊限定出来,并且与相邻的建筑物相连。沿翼搂的宽度方向在沿街面上形成了一排虚实相间的韵律感表皮,与校园内该片区的尺度感相协调。北翼楼主要是信息与媒体学院的专业教学楼,其入口设置在兰顿大道上。该体量在这一层上做了折角设计,朝十字路口和十字路口对面的音乐楼打开。上两层楼垂直于街道边缘,悬臂体量则朝向东面的河流和西面的南谷区,成为校园通往这片区域的门户。


图纸
楼层平面图

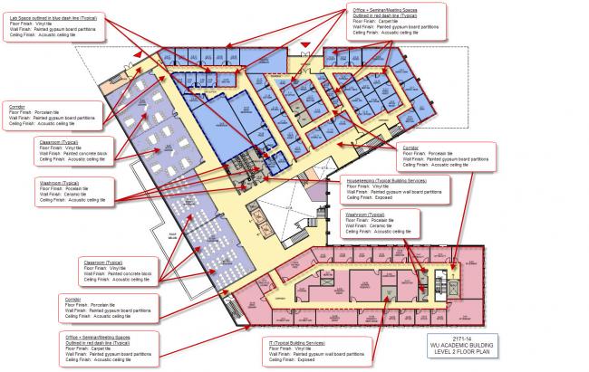
二层平面图

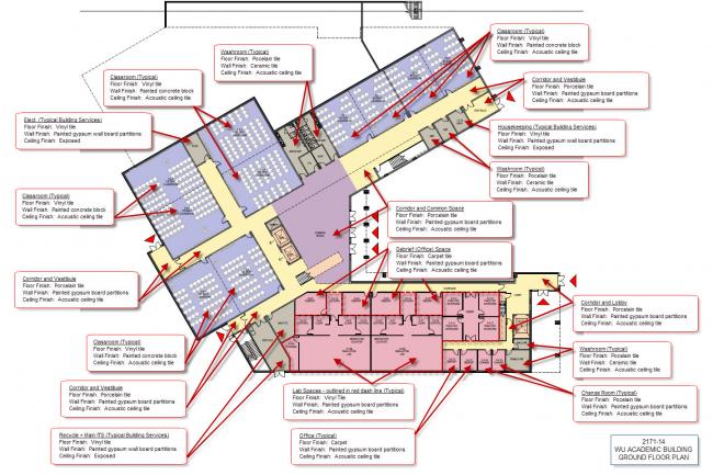
一层平面布置图

三层平面布置图

四层平面布置图

五层平面布置图

分解式轴测图 –功能示意
二层平面图

三层平面图

四层平面图
剖面图1
剖面图2
剖面图3
剖面图-通用教室
剖面图-教学空间
剖面图-办公及会议空间
剖面图-公共空间
南立面图
北立面图
北立面材料示意
南立面材料示意
东立面材料示意

西立面材料示意
三层立体平面图
四层立体平面图
东南侧透视图
实体模型-东立面
实体模型-北立面
项目信息
建筑设计:architects Tillmann Ruth Robinson
项目区位:加拿大,安大略省
建筑面积:136000.0平方英尺
项目时间:2016年
项目摄影:Lisa Logan, Scott Webb, Jessica Ginzel
制造商:LiveRoof, Belden, Walltalkers

BIM建筑网





评论前必须登录!
注册