Architecture49 建筑事务所自豪地为其最新项目——蒙特利尔高尔夫俱乐部会所揭幕,该会所位于修女岛,(BIM设计)而该岛是位于圣劳伦斯河之上,面向蒙特利尔市中心的绿洲。该建筑拥有令人印象深刻的木质框架,旨在为用户提供独特的体验。它包括多个配备发球台的檐下练习场,一个位于宽敞休息室中心的酒吧,一个完整配备的餐厅厨房,以及多台最先进的高尔夫模拟器,一个专业商店,多间办公室,和设备间。

最初,建筑师致力于设计一个允许高尔夫球手在恶劣天气下使用的高尔夫练习场,后来,Architecture49事务所与客户密切合作,将项目扩展到一个具有独特的,多功能的建筑。在最后落成的俱乐部会所中,配备发球台的檐下练习场一直延伸到休息室和放松区,从而营造了一种独特的高尔夫球体验。

形式追随功能
会所的建筑特征是其对自然环境的直接回应。建筑的曲线呼应了高尔夫练习场,在满足高尔夫球手打球需求的同时,也与场地环境协调一致。木屋顶悬挑的特殊尺寸,既满足抵抗环境气候的需求,也为高尔夫球手创造了一个沉思的空间。会所种宽敞的窗户以及抢眼的材料组合:锌、木材和玻璃,都让项目的精确性体现的淋漓尽致。

流动空间
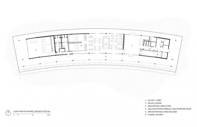
建筑的曲线布局是由分隔户外运动活动区和会所内部功能区的交通空间限定的,并且这些区域是按顺序排列的。接待大厅位于西侧,通向一个可以俯瞰蒙特利尔市中心景色的有遮蔽的室外空间。


接下来是两个没有窗户的服务核心中的第一个,有洗手间和两个隔音房间,会员在隔音房可以使用高尔夫模拟器进行游戏。相邻的休息室是一个大的开放空间,具有各种座位类型安排在中央酒吧。


之后是大厅,它穿过建筑,提供通往高尔夫练习场的通道,高尔夫练习场靠近专业用品店和开放式厨房的服务柜台。

最后,第二个没有窗户的服务核心是厨房、行政办公室和设备间。会所的设计使空间尽可能的灵活,是一个适合于各种活动和聚会的场所,无论是在高尔夫赛季期间还是在高尔夫赛季之外。

无处不在的木材
屋顶的跨度之所以让人印象深刻,是由于它的大小和它所代表的结构挑战。成功的屋顶建造需要精确的设计工作,以确保结构的外部和内部比例之间的协调。屋顶和建筑的曲线,背后和前面,为会所带来别致的魅力。机电设备被仔细地整合到木结构中,使它们消失,并留下尽可能极简的内部空间。由于特别注意选择无挥发性有机物的自然材料,因此在室内使用木材、枫木镶板的墙壁和门,烤木的墙壁和家具

为了展示当地的专业知识和工匠,建筑师特别从蒙特利尔和魁北克的其他地方挑选材料、供应商和承包商。
图纸

总平面图

平面图

立面图

剖面图
项目信息
建筑师:Architecture49
地址:Île-des-Sœurs, Montreal, Quebec H3E,加拿大
建筑面积:855.0 m2
项目年份:2018
摄影师:Stéphane Brügge
厂家:Reynaers Aluminium, Nordic Structures, Decoustics,(BIM教程) Atelier B, Espace-Bois
工程:WSP
施工方:Quadrax & Associés
木结构:Nordic Structures
照明:Generique Design
甲方:Golf Exécutif Montréal
屋顶平面图:1,800 m2 (19,375 ft2)

BIM建筑网





评论前必须登录!
注册