
房子的设计初衷始于我们曾经错过东西的回忆,而不是我们所需要的功能性。我没有首先考虑空间方向的设计,而是优先考虑关于人们在生活中能够感受到什么,看见什么以及聆听什么,这一系列的基本问题。电视和计算机等科技文明设备被最小化和隐藏,尽可能减少人为事物的出现。相反,我们可以在任何地方感受大自然,建造出挑的屋檐来听雨声,并围合出一个阴凉的院子,让我们感受到风。也就是说,人们的经历通过设计手法再现出来。


在前院,客户将他在童年时种植的树从旧房子里移走。从某种方面来说,我找到并创造了一个重溯时间的场所。这座令人难忘的房子不仅仅是一栋居住建筑,而是依偎在一座自然的小山上。

场所感
场地的位置缺少可达性,但它仍然是隐藏在周围的城市化范围中的一块儿净土。坐落在一个小山丘上,保持良好的视野景观。


两个方位
当地貌与河流相遇时,建筑物也会朝向河流。为了解决并考虑建筑方向的风水问题与实际建筑方向之间的差异,在叠加两个方向之后将全景视图带到内部空间。当您爬上山坡时,房子内部也在向上攀升,让住户的隐私更加有安全感。


对比
随着城镇越来越为人所知,它的身份也正在发生变化。随着商业设施越来越多的进入河边和村庄,游客也急剧猛增。在道路越来越拥挤的情况下,它与外界有着隔开带些封闭的性质,但在另一侧,河边则非常开阔。在外面看到的内容与您在内部空间看到的视野截然不同。

有机自然
内部空间被类似如庭院和院子的外部空间围绕。自然进入的小尺度空间与自然和建筑深深地互动,创造沉重和轻盈,光明和黑暗,打开和关闭的对比感受。


记忆性
我想建造一所新房子,但给人的感觉又很熟悉。这个场所能够被重新诠释,如春天暖洋的山脊,凉爽的夏季地板,月光越过窗户的轨迹,以及冬夜的寒风吹来的呼呼声。它不是一个简单的建筑,而是营造出一个与过去交汇的场所。童年时种植的枫树远离乡间别墅,并在这里重新种植。通过用记忆来表达事物,我给这个地方带来了时间感。
(BIM工作)

这是一个有节令性质的房屋。除了功能需求外,这所房子成为了老朋友,因为它满足了人们情感上的诉求。在节日来临之时人们也会精心(BIM学习)挑选材料和颜色迎接节日。

图纸


总平面图

首层平面图

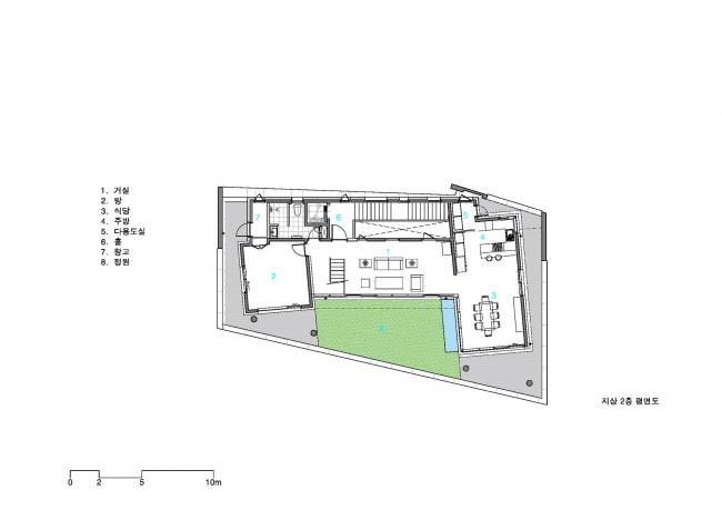
二层平面图

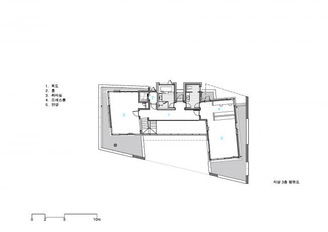
三层层平面图

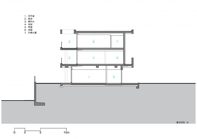
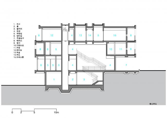
剖面图01

剖面图02

剖面图03

剖面图04

正立面图

右立面图

左立面图

后立面图
项目信息
建筑师:DIDI工作室
地点:南杨州,韩国
首席架构师:Hwi Roh
设计团队:Nari Kang,Gangkuk Lee,Hyungsuk Jung
记录建筑师:Sungchul Kim(加多建筑)
总建筑面积:563.0平方米
项目年份:2017年
建筑摄影:Kwangsik Jung
制造商:蒂森克虏伯

BIM建筑网





评论前必须登录!
注册