结构体系装配化
结构体系为钢管混凝土柱钢框架+钢支撑,具有以下特点:
○ 建筑室内大空间,建筑布置更加灵活
○ 结构构件占用空间少,空间使用率可增加3~5%
装配式住宅
○ 钢构件工厂生产制造,现场装配,施工质量更易保证
○建筑单体预制率高,可达到60%以上

结构抗震高强化
○ 钢结构重量轻、强度高,抗震性能好装配式建筑
○ 该结构体系可灵活运用减隔震技术,适用于8度及以上高烈度地震区
○ 结构抗震性能化,可保证人身与财产安全,减少50%以上的财产损失
连接节点精细化
○ 柱截面宽度仅为200mm,梁翼缘宽度控制在200mm以内,从根本上规避常规建筑露梁露柱问题
○ 创新地设计了外环板式连接节点,柱内无需设置横隔板,有利于混凝土浇筑及保证柱体的完整性
○ 通过对节点进行有限元分析与试验验证,节点可实现大震下不屈服,结构体系满足强节点弱构件的性能要求



围护系统
○ 匹配钢结构住宅体系优化设计,满足保温、隔热、气密性等要求
○ 外墙系统采用蒸压加气混凝土(ALC)复合墙体,包括ALC外墙板、空气夹层(可放置保温棉)、ALC内墙板。外墙与主体结构采用ADR摇摆工法连接,实现柔性连接,适应主体结构变形
○ 相较于ALC单板,保温隔热性能更为优越,可覆盖保温要求较高的地区

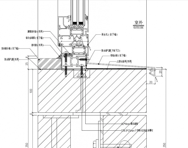
窗墙连接节点
○ 引用被动式门窗设计元素
○ 窗墙节点设计和施工工艺优化,解决气密性、水密性等质量通病
○ 耐久性能良好的密封材料配合构造设计,实现气密性、水密性连续
○ 整窗传热系数K值<2.0W/(m2·k)

阳台节点
阳台板通过结构设缝处理方式,与主体结构断开,有效阻断热桥,确保外围护保温系统的连续性。

装配式内装
○ 通过模块化部件、组合式设计、工业化生产、乐高式装配,实现了内装修的全干法,高效率与可持续
○ 采用工业化装修技术体系,实现“全干法施工、SI分离、健康环保”
○ 利用饰面与结构空腔间隙,实现机电设备管线与结构分离
○ 装修材料均为环保、高性能和可循环利用的材料,结合“干式”作业方式,提升居住空间健康品质

空间可变
○ 应用钢结构平面布置灵活的优势,满足不同数量和类型住户在不同时期的住房需求
○ 改造灵活,实现幼儿型家庭、社交型家庭以及享受型家庭的随性切换

讲了那么多S-SYSTEM的技术亮点和节点的处理方式,S-SYSTEM是一体化产品,那一体化产品的优势又在哪里呢?
一体化协同设计可提升建筑整体品质和性能,便于维护和更新。S-SYSTEM基于主体结构系统、外围护结构系统、机电系统和内装系统一体化协同设计,四大系统集成与兼容,形成一个完整的建筑产品系统,避免各系统之间相互独立和脱离,建筑整体品质和性能大幅度提升,也为后期维护和更新提供便利。
为客户提供建筑整体解决方案。S-SYSTEM可提供策划、设计、制造和安装的一站式服务,以全装修住宅作为产品交付形式。根据不同地区、不同类型的客户需求,通过产品标配和选配设计,实现个性化和差异化定制。
文章来源:施工技术

BIM建筑网





评论前必须登录!
注册