在浙江的乐清,有这样一个小镇,镇内东干河上有一座石拱桥,远眺宛如长虹卧波,虹桥镇以此命名。而在这小镇的田野上,有这样一个“房子”


“房子”是一个用地规模15亩,园舍建筑5907平方米,户外场地4160平方米,阳光楼顶1440平方米,可容纳18个班级。


设计师将儿童心理、成长特点渗入到设计理念当中,设计一个真正属于孩子们的空间,而非当下很多成人以为孩子喜欢的五彩装饰世界。


简约干净的建筑触动设计师,去创造一个孩子们乐于探索的新世界。在干净的白色外立面后面,隐藏着温暖、柔软、丰富的幼儿园,魔术般与戏剧化地建构了一个美界,并将自然、地理环境同建筑的功能彻彻底底地结合起来,创造一个优美且适宜孩子们的空间。

从建筑的鸟瞰图看,幼儿园的形态就像一个风车、拼图。对于使用的孩子们而言,他们的成长空间不再是冰冷冷、硬邦邦的建筑怪物,而是可以亲近的建筑玩伴——它是阳光风车。


这个被树林、沙池、小溪、彩石连续包围的包裹中心藏着“绿色风车”。风车里面藏着孩子们的新世界,外面则是家长等候中带着期盼的观望,还有深深的羡慕。

上面有飞鸟掠过,有树屋、有鲜花、有小桥流水,有各种各样大大小小的彩色鹅卵石,引导孩子去无拘无束去探索知识。


丰富的户外景观和简洁的白色建筑完美结合,幼儿园室内设计材料质感细腻温暖,形式细节严谨,空间形态的丰富性,使用功能的合理性。

如果不去览遍世界,我们无法发现我们精神和情感寄托,我们寻求美好的地方,知道自己身边质感存在的可贵。就是这个矗立在田野侧畔的幼儿园,就是孩子们人生起步的地方。


内外界面空间的加深使其能够成为孩子们游戏、交流的场所,在这个空间墙面上一幅热带狮子王的画充满了设想中的童趣,彻底打败了成人束缚的世界。这里的休息座椅、圆乎乎的书柜、有质感的木材,表达了幼儿园家庭的温暖,角落大大小小的动物玩偶述说人与动物的和谐相处,让孩子们自由自在释放着灵性,隐藏着温暖、柔然、丰富的爱。


站在楼口,我像孩子一样用心地去看。经过设计的墙面隐藏着小小的且不同规则的窗,与大大的落地玻璃窗遥相对应,亮亮的宽敞无比的玻璃窗透过一丝丝、一缕缕阳光,把蓝蓝通向教室的路照耀的暖暖的,童心里不被束缚的是爱。


奇妙的交通空间,丰富多彩的教学空间,小建筑师创作园地,孩子们在这里遨游“悦读”,孩子们在这里放飞梦想,工匠精神在这里诞生。


未来在这里起航,你们属于世界,世界属于你们。















图纸

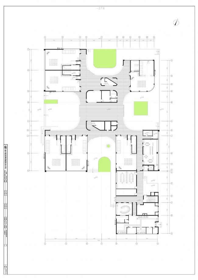
一层平面

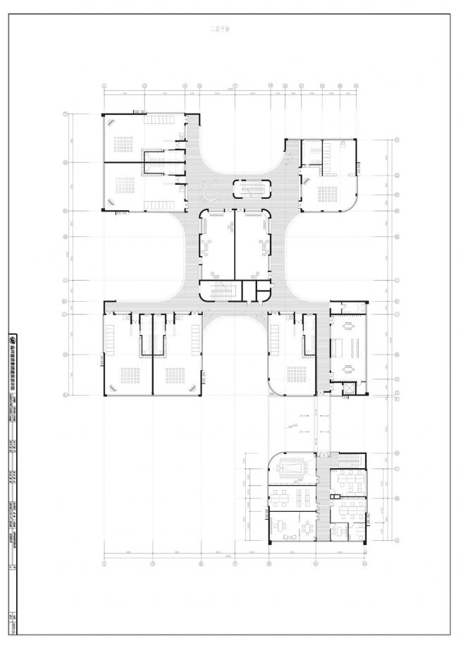
二层平面

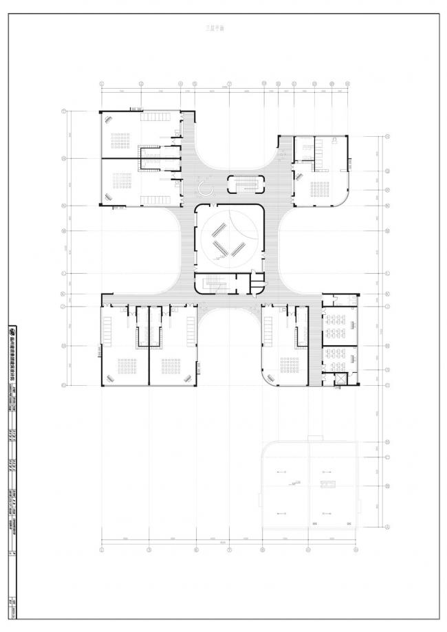
三层平面
项目信息
项目名称:虹桥贝盈幼儿园
项目业主:依米教育集团
建设地点:浙江,温州
用地面积:6,886 ㎡
建筑面积:5,908 ㎡
设计时间:2015
项目阶段:竣工
服务内容:建筑 景观 室内
设计单位:杭州上达建筑景观设计有限公司
合作单位:温州建设集团建筑设计院

BIM建筑网





评论前必须登录!
注册