作者:尹衍梁、詹耀裕、唐雪梅
单位:润泰集团;润铸建筑工程(上海)有限公司
0前言
随着国内钢结构工业建筑和钢结构商业建筑的迅速发展,目前钢结构住宅建筑也在逐步推广。钢结构住宅建筑仍有许多亟待改善与解决的问题,特别是民用住宅钢结构建筑外墙设计,外墙形式多样,但优缺各自突显。本文提出一种新型钢梁与混凝土墙板之梁墙一体围护预制构件单元设计,相对传统做法、减小了墙体厚度,减小室内凸梁,节约空间;且钢梁免喷涂防火涂料、楼层板间免后防火层间封塞作业,减少施工安装工序,是一种较为经济、连接可靠、具耐久性及良好建筑围护性能的围护预制构件。尤其适用于高层钢结构住宅建筑,通过对新型预制钢梁与混凝土墙板之梁墙一体构件单元与钢柱组成的框架进行有限元模拟比较分析,框架单元内力分配趋势分析,确定其结构适用性。
1钢结构建筑外墙类型介绍
建筑外墙,如同外衣,需要满足防寒隔热、挡风遮雨、隔音防噪、防火的基本建筑功能, 也要满足美观和谐的景观功能,保证可靠的安全结构性能。不同于普通外衣可常更换,建筑体外墙板皮一穿就是几十年,特别是高层建筑,外墙设计希望与建筑体有可靠连接,其耐久性能宜与建筑使用周期相同。
外墙作为承重构件,支承上部楼层及屋面时,墙体多采用较为密实的砌块墙体或混凝土浇筑墙体。作为围护构件的外墙体可选用的材料更为灵活多样化,但主要倾向选择轻质材料作为外围护墙板材料,如选用轻质砌块填充墙体、金属墙板、石材墙板、玻璃墙板,或多种形式组合墙板。墙面通风采光部分设置玻璃窗除外,其它墙面可采用全玻璃墙板(图1(a))、玻璃板与金属板组合墙板(图1(b))、石材幕墙与玻璃组合墙板(图1(c))等等,金属铝板幕墙、石材墙板多为含内衬墙的组合墙体。

(a)玻璃幕墙 (b)玻璃与铝板幕墙(c)石材幕墙
图1 高层建筑幕墙(上海)
玻璃幕墙板在钢结构建筑中被大量使用,其优点是重量轻,玻璃板透光,室内视野开阔,其缺点是材料热阻值小,节能建筑中的玻璃板造价尤其高,大量玻璃立面容易造成光污染,且玻璃易热爆,存在安全隐患。
金属幕墙多为饰面板,室内侧还需设背衬墙体,并在金属板背面加保温岩棉,金属热阻值更小, 保温与隔热设计主要依靠保温材料,造价相对高。
石材幕墙通常有现场干挂、湿贴或预嵌于预制混凝土墙板构件的面层,干挂石材幕墙也多为饰面板层,室内侧一般需设置背衬墙体,墙体上加保温板。湿贴的石材幕墙,基墙为混凝土墙或砌块砌体墙,预嵌石材预制混凝土墙板为饰面与混凝土墙一体成形装配式外墙。

(a)干挂石材幕墙示意 (b)铝板幕墙示意图
图2 金属与石材幕墙节点示意
1石材板 2 衬墙(基墙)3 保温层 4 钢骨架 5 铝板(金属板)6内衬墙 8 保温材 8钢或铝型材骨架
砌块砌体墙作为钢结构外墙目前多应用于多层小型钢结构建筑,其连接界面处容易开裂,粘附的饰面层容易剥落,墙体整体性及抗震性能差。砌块砌体墙更多的设计为内衬墙,防水设计在外饰面层,衬墙层与外饰面层之间设保温隔热层。

图3 钢结构砌体块砌体墙
混凝土材料密实,重度大,但仍是目前最主要的建筑材料,可以浇筑各种建筑造型或各种复杂的外围护墙体形状。特别是借助预制工艺,饰面、窗框、窗玻璃与墙体一次成型,整体性好,且可铸成具复杂艺术图案的预制外墙板,空间异形墙板,使建筑外立面造型丰富。图4(a)是窗框、玻璃、磁块外饰与混凝土一体浇筑成型的外挂墙板,为台北润泰敦仁高层钢结构住宅项目;图4(b)以模具浇铸的成的艺术图案的混凝土外墙,为台北中和地政项目。

图4 混凝土外挂墙
在我国的台湾地区,有不少预制混凝土外墙板应用于钢结构住宅建筑的实例。图5(a)台北曼哈頓大楼,图5(b)台北润泰敦仁,5(c)台北帝宝住宅工程,均为预制混凝土外挂墙板工程。

(a)曼哈頓大楼 (b)润泰敦仁 (c)帝宝
图5 钢结构PC外墙实例照片

(a)异形墙板安装(b)包柱墙板安装(c)包梁墙板安装
图6 外墙板安装图例

(a) 钢结构防火包覆 (b)钢梁防火涂料脱落图
图7 施工中的钢结构图
预制混凝土外墙板的主要特点:在工厂采用模具进行单元制作,在现场借助起重设备,安装于主结构外围框架上,混凝土预制外围护墙板,可待主体框架形成后再安装就位。图6为外墙板安装时图片,墙板形状各异,制作安装均可实施。
混凝土外墙板热阻比金属板、玻璃板大,混凝土本身为不燃材料,防渗、防火、隔音性能好。预制混凝土墙一次成型,不需内衬墙,预制单元整体吊装拼接,不需施工外脚手架,可大缩短工期。
外围护墙通常设计厚度及其主要特点归纳如下表1,可根据建筑设计要求,建筑环境等因素进行选用。
表1 常用外墙比较表

2钢梁与墙板一体化单元设计
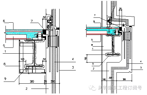
预制混凝土外围护墙板一般悬挂于钢梁外侧边,外挂墙板安装就位后,钢梁表面有喷涂防火涂料,钢梁、钢柱表面喷涂厚涂型的防火涂料, 裸露的钢梁、钢柱上的厚涂型防火涂料容易剥落,钢梁位置需用内装饰板进行二次装修。干式预制外挂混凝土墙板安装就位后,还需进行层间防火封塞。钢梁凸于室内,对大宅及办公建筑的空间影响不大,但对普通的住宅建筑,如目前大力兴建的钢结构经适房、公租房,户型小、层高小,对建筑空间特别敏感,墙板外挂使室内梁完全凸起,梁深较大,梁位置净高显大幅减少,观感上稍不足如图8(a); 若采用包梁作法,梁在立面上外侧凸出,使墙室内侧墙面平齐,虽可解决突梁观感问题,由于钢梁需另做防火包覆,还需另设内饰板层,使墙板总厚度加大,占用室内地面面积,且预制梁构件与预制墙板分别吊装,钢梁与墙板要预留相当的安装调整空间,外墙梁位置墙板凸出面加深,如图8(b)。

(a)外平齐梁墙节点 (b) 内平齐梁墙节点
图8 梁构件与墙构件节点示意图
1钢梁 2 墙板内叶 3 墙板外叶 4 保温板材 5 KT板 6 现浇层 7 防火封堵 8 内装饰板 9 钢梁防火涂料
夹芯混凝土外围墙的结构性能、工期效益,节能表现、防火、防水相对优秀,解决了外墙外保温外饰面层脱落,且都有成熟可靠的技术支持。为克服外挂混凝土墙板的凸梁问题,节约空间,钢梁防火涂料包覆的耐久性,一次性解决楼层间防火封塞,简化安装工序等问题。本文提出钢梁与混凝土夹芯墙板一体化预制单元的应用设计,作为高层钢结构预制混凝土外墙设计优化方案。
将梁外推至墙板内,墙板室内侧平齐,使建筑空间加大;一体成型的钢梁混凝土墙板不需设内饰板层减小墙厚度,节约空间同时也减少工序;钢梁与墙板在工厂模台上一体成型,现场安装简便,大大缩短安装时间;一体成型的钢梁混凝土墙板,不需另设防火材料层,另做防火封塞,节约材料与工序;以下将对新型钢梁与混凝土墙板之梁墙一体预制围护构件单元进行详细说明。
2.1梁墙一体化单元设计
预制钢梁与外墙板之梁墙一体单元包括钢梁、包覆钢梁的混凝土内、外叶墙板、保温材和混凝土墙墩,梁墙一体单元与楼板连接节点如图9,梁墙一体内、外叶墙板竖向钢筋锚入楼板现浇层。为增强保温效果,减小冷桥,型钢表面先包覆一层10mm~20mm的柔软保温材料,同时设置挤塑板;型钢上顶面设有栓钉,栓钉用于墙板、楼板与钢梁之间的连接。

图9 梁墙一体单元与楼板节点示意图
1钢梁 2 墙板内叶 3 墙板外叶 4 保温板材 5 KT板 6 现浇层 10 保温材料 11 栓钉12 玻璃钢连接件 13 钢筋连接件 14 墙内墙板接合铁件 15 梁上墙板接合铁件
梁墙一体单元中的主钢梁与次钢梁连接时,主梁上设置肋板,通过连接板及螺栓与次梁腹板连接,主次梁接口位置局部后灌浆(图10)

图10 梁墙一体单元与次钢梁节点示意图
1钢梁 16次梁 17 主次梁连接板
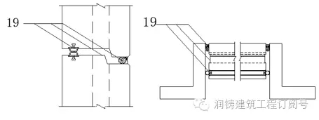
梁墙一体单元板侧设有防水构造,截面如图11;梁墙一体单元的钢梁两端与钢柱构件采用焊接连接或螺栓连接,墙板下缘与下墙墩由接合铁件连接,钢梁与钢柱外饰层留有缝隙,梁墙一体单元组装示意如图12。
(a)板侧构造示意 (b)墙板截面示意

图11 梁墙一体单元示意图
1钢梁 2 墙板内叶 3 墙板外叶 4 保温板材 18 现浇墙墩 19 防水构造

图12 梁墙一体单元组装示意图
2墙板内叶 3 墙板外叶 14 墙内墙板接合铁件 15 梁上墙板接合铁件 20 梁端连接件 21 钢柱
2.2梁墙一体墙板的防水设计
根据外挂墙板设计经验,墙板两侧边及下侧连均设置多道防水构造。在预制钢梁墙一体单元的墙板下缘、及墙墩上缘设有台阶面,用于梁下混凝土外墙板与梁上混凝土墙墩之间上下连接,台阶状的对接缝为常用防水构造。同时,外侧密封胶、弹性挡条、内侧采用嵌入式橡胶条用于进一步的防水密封设计(图13(a))。在混凝土外墙板进行防火措施设计,两侧设置导水减压空腔,保证混凝土外墙板墙面的另一道防水功能(图13(b)),使梁墙一体构件在具有工程适用性。

(a)墙板横缝构造示意图(b)墙板竖缝构造示意图
图13梁墙一体单元墙板防水设计示意图
19防水构造
2.3梁墙一体墙板的墙缝设计
梁墙一体墙板的两侧及下缘均设有一定缝隙。梁下混凝土外墙板与同立面内的柱或墙之间预留竖拼缝,如图图13。拼缝有以下主要功能:一提供安装调整空间;二、减小对主框架侧移变形限制;三、钢梁梁端不受墙板刚度限制,可先于柱达到屈服。混凝土外墙板与混凝土墙墩有缝对接,并设有相互配合的调整铁件与接合铁件,接合铁件连接节点设计时,考虑墙板下缘平面内可滑移,当主体结构侧向变位时,混凝土外墙板与混凝土墙墩仍可相对滑动位移,减小在水平荷载(地震作用及风荷载)作用下,混凝土外墙板对钢框架的侧移限制。
2.4梁墙一体墙板的单元热工参数分析
取梁墙一体单元高3m,宽3m按最不利传热路径计算各区域的传热系数,进行综合传热系数分析。按图14计算墙内侧层高范围内墙板的综合传热系数,A区墙板为混凝土+保温板+混凝土,B区墙板混凝土+保温板+混凝土取平均厚度为295mm,C区墙板为纯混凝土取平均厚度为360mm。按热工规范综合传热系数计算公式计算,当混凝土墙板外叶与外叶最小总厚度150mm,挤塑板保温层厚取40~90mm时,墙板的综合传热系数约为0.95~0.69w/(m^2·K)。除严寒地区需采取进一步措施,目前梁墙一体夹芯墙能满足除严寒地区以外的外墙热工性能要求。

图14梁墙一体单元墙板传热分析图
2.5 梁墙一体化单元内力分配分析
钢梁与墙板一体化的预制构件单元,墙板内、外叶、保温层与钢梁一体成型,墙板钢筋锚入楼板现浇层,墙板及楼板与钢梁顶面连接。墙板刚度是否影响结构框架内力分配,改变原设计的内力分配模型,造成强梁弱柱不利影响?本节以有限元程序进行单跨单榀内力分配趋势分析。
钢梁与混凝土墙板梁墙一体构件与钢柱组成的框架单元进行内力分析,为进行对比,设计了三种计算模型:第一种,纯梁柱框架,不计墙板构件;第二种:单层墙板与钢梁组合之梁墙一体构件框架,钢梁与混凝土墙板完合粘合;第三种,夹芯墙板与钢梁组合之梁墙一体构件框架,钢梁除顶面与混凝土墙板直接触外,其它表面有较软的保温材料包覆。采用有限元软件进行模拟计算,钢材弹性模量为2.0e5N/mm2,混凝土材料弹性模量3.0e4 N/mm2,保温层材料弹性模量1e2N/mm2。方钢柱截面600x600x20mm,柱线刚度EI/L为1.12E+11 N/mm钢梁截面H400x200mm,梁的线刚度EI/L为8.67E+09 N/mm2,强柱弱梁设计。单层混凝土墙板200mm.,夹芯混凝土墙板为60+50+90mm。假设构件各材料层接触面完全粘合。构件以三维6面体20节点块体单元进行自动网格划分。荷载取值参照了一栋位于7度设防区,26F混凝土框架剪力墙结构地震组合工况下的框架内力值。以下分两种工况对单榀单层框架隔离体进行分析:一、考虑水平与竖向荷载组合工况(地震、风荷载)的单元加载:梁面总竖向荷载78kN,柱顶轴压600kN,水平力45KN,二、考虑竖向荷载单独工况:梁面总竖向荷载78kN。
第一工况加载及分析结果如图15~图21:

(a)纯梁柱框架(b)梁墙一体框架(单层墙及夹芯墙)
图15框架水平及竖向作用组合工况加载图

(a)纯梁柱框架(b)钢梁墙一体框架(单层) (c)钢梁墙一体框架(夹芯墙)
图16框架位移云图
图16位移云图显示,水平作用与竖向荷载共同作用下,纯梁柱框架柱侧移最大,为1.37mm(100%),其次是夹芯墙梁墙一体框架1.22mm, 为纯梁柱框架柱的89.1%,最小是单层墙板钢梁墙一体框架为1.18mm,为纯梁柱框架柱的86.1%。纯梁柱框架抗侧移刚度最小,单层墙板比夹芯墙刚度大,说明墙体刚度有一定贡献。因墙体上侧边与梁连接,另三边自由,墙体呈侧向滑动移动。

(a)纯梁柱框架(b)钢梁与单层墙一体框架 (c)钢梁与夹芯墙一体框架
图17 框架整体内力云图
图17内应力云图显示,水平作用与竖向荷载共同作用下,纯梁柱框架构件钢梁梁端应力最大为287MPa(100%),其次是单层墙板钢梁墙一体框架227MPa,为纯梁柱框架柱的79.1%,最小是夹芯墙梁墙一体框架204Mpa,为纯梁柱框架柱的71.0%。

(a)纯梁柱框架(b)钢梁与单层墙一体框架 (c)钢梁与夹芯墙一体框架
图18框架节点内力云图

(a)纯梁柱框架(b)钢梁与单层墙一体框架 (c)钢梁与夹芯墙一体框架
图19 框架柱内力云图
图19纯梁柱框架中的钢柱应力最大为65.0MPa(100%),其次是单层墙板钢梁墙一体框架的钢柱应力55.91MPa,为纯梁柱框架柱的85.9%,最小是夹芯墙梁墙一体框架柱应力54.07Mpa,为纯梁柱框架柱的83.2%。

(a)纯梁柱框架(b)钢梁与单层墙一体框架 (c)钢梁与夹芯墙一体框架
图20 框架梁内力云图
图20纯梁柱框架中的钢梁应力最大为142.24MPa(100%),其次是单层墙板钢梁墙一体框架的钢梁应力128.43MPa,为纯梁柱框架梁的90.3%,最小是夹芯墙梁墙一体框架梁应力84.19Mpa,为纯梁柱框架柱的59.2%。

(a)钢梁与单层墙一体框架 (b)钢梁与夹芯墙一体框架
图21 框架墙板内力云图
由于同厚度的夹芯墙刚度比单层墙刚度小,分配的内力小,图21钢梁与夹芯墙一体框架中的墙板应力小。
图17~图21内应力云图显示,水平作用与竖向荷载共同作用下,钢梁梁端连接件应力与钢梁梁端应力比钢柱应力大,按线性增加荷载,钢梁连接或其端截面最先达到屈服。
分析结果说明,梁墙一体构件设计可保持框架强柱弱梁概念,钢框架钢梁墙一体墙板构件中的墙板,呈是滑动变形,柱与墙板间设置一定的缝隙,可不影响框架侧移变位,满足围护构件不影响主体结构侧移的抗震设计构造要求。
竖向荷载单工况加载分析,加载模型及分析结果如图22~图28:

(a)纯梁柱框架 (b)钢梁墙一体框架(单层墙及夹芯墙)
图22框架竖向荷载工况加载图

(a)纯梁柱框架(b)钢梁与单层墙一体框架 (c)钢梁与夹芯墙一体框架
图23框架位移云图
图23位移云图显示,竖向荷载单独作用下,纯梁柱框架竖向位移最大2.66mm(100%),其次是夹芯墙梁墙一体框架位移0.57mm(9.7%),最小是单层墙板钢梁墙一体框架位移0.13mm(5%)。说明墙体抗弯刚度贡献非常大。

(a)纯梁柱框架(b)钢梁与单层墙一体框架 (c)钢梁与夹芯墙一体框架
图24框架整体内力云图
图24整体内应力云图显示,竖向荷载作用下,纯梁柱框架构件钢梁梁端应力最大为271.76MPa(100%),单层墙板钢梁墙一体框架梁端应力20.13MPa,为纯梁柱框架柱的7.4%,夹芯墙梁墙一体框架梁端应力35Mpa,为纯梁柱框架柱的12.0%。

(a)纯梁柱框架(b)钢梁与单层墙一体框架 (c)钢梁与夹芯墙一体框架
图25框架节点内力云图

(a)纯梁柱框架(b)钢梁与单层墙一体框架 (c)钢梁与夹芯墙一体框架
图26 框架柱内力云图
图26柱内应力云图显示,竖向荷载作用下,纯梁柱框架构件钢柱应力最大为35.56MPa(100%),单层墙板钢梁墙一体框架钢柱应力5.98MPa,为纯梁柱框架柱的16.8%,夹芯墙梁墙一体框架钢柱应力6.84Mpa,为纯梁柱框架柱的19.2%。

(a)纯梁柱框架(b)钢梁与单层墙一体框架 (c)钢梁与夹芯墙一体框架
图27 框架梁内力云图
图27梁内应力云图显示,竖向荷载作用下,纯梁柱框架构件钢梁应力最大为271.71MPa(100%),单层墙板钢梁墙一体框架钢梁应力16.66MPa,为纯梁柱框架柱的6.1%,夹芯墙梁墙一体框架钢梁应力20.27Mpa,为纯梁柱框架柱的7.5%。

(a)钢梁与单层墙一体框架(b)钢梁与夹芯墙一体框架
图28 框架墙板内力云图
图24~28应力云图显示,竖向荷载单独作用下,墙体参于竖向荷载承载分配,墙板中跨下侧边纤维受拉。墙板一体构件截面高度较大,墙板最大应力点出现在梁墙接合面位置,墙板下侧应力不大,通过配置抗拉钢筋,可满足设计要求。
本节分析墙板对梁柱框架的影响,从内力分析结果说明,有水平荷载作用时,墙板的应变吸收的能量不大,使梁柱构件应力减小至纯框架的80%左右,梁墙一体构件仍保持梁墙一体框架内力分配趋势不变,继续加载,梁可先于柱子达到屈服。因此梁墙一体构件就框架的抗侧刚度贡献不大,且不改变框架强柱弱梁设计概念;梁墙一体构件的墙板刚度对梁的竖向荷载分配影响比较大,竖向荷载作用下,若不考虑墙板平面外的弯曲屈曲,墙板可以吸收大量应变能,整体上对主体构件是有利的,若在实际墙板配筋设计中,除考虑直接作用于墙板的荷载,同时考虑一体构件相互影响效应,可以保证墙板满足承载力设计要求。
3结束语
本文提出的钢梁与混凝土墙板一体化预制构件设计应用,其热工主要参数传热系装配式研发数分析结果说明,一体化墙板在寒冷、夏热冬冷、夏热冬暖地区基本适用。
其内力分配分析说明一体化构件对主体框架结构内力分配稍有影响,但不影响强柱弱梁的概念设计,由于墙板参于承担部分荷载,对主结构构件竖向承载力有利,墙板随主体结构侧向变形保持滑动位移,可吸收部分变形能,与柔性钢结构组合,刚柔并具,结构体系良好。
将混凝土外墙板与钢梁作为一个预制单元进行整体制作,具有良好的整体性,节省了建筑空间,提高了制作和吊装的效率,缩短了施工安装工期。
预制钢梁墙一体单元,钢梁有混凝土包裹,混凝土包裹层具良好的防火性能、无需另设防火包覆材料,也无需另外进行层间防火封塞,减少材料,减小工序,节约成本,具有良好的经济效益。
钢结构主体与梁墙一体墙体构件整体式装配,满足绿色施工,快速装配,达到建筑建造、使用全过程的高效节能,为一重要的环保建筑产品。此新型梁墙一体式墙板设计应用由润泰集团提出,并己提请专利,专利申请号:201610116410.1。
(欢迎各大媒体转载,全面宣传推广装配式建筑!转载请注明出处)

BIM建筑网




评论前必须登录!
注册