星河湾中学作为上海市第一所采用预制装配整体式混凝土结构体系建造的公共配套完全中学建筑示范项目,在装配率、项目类型和规模上都是建设先例。
装配式建筑 学校位于上海市闵行区,整个地块呈方形,北面紧邻消防站规划用地(近银都路),在地块东南角(都庄路与梅州路交叉口)有已建成的35KV/110KV市南供电站,无高压线走廊。项目总用地面积43290㎡(约合64.90亩)。
学校设有初中部24班和高中部24班,学生规模约为2040人,其中考虑住宿学生约950人,教师规模约为216人。规划控制要求:容积率不大于1.0,建筑高度不超过60米,建筑退界、建筑密度和绿地率等指标按国家及上海市规定标准执行。主要包括教学办公楼、多功能综合楼、学生公寓楼、风雨长廊、地下车库及相应的室外总体工程等在内的建筑单体及环境景观。总建筑面积48520.43㎡,其中地下总建筑面积4635.1㎡,容积率1.0。




△总平面图
—设计特色—
1、科学高效的校园规划
星河湾中学主要由教学办公区、运动健身区、生活配套区三大功能区域组成,整体功能布局合理清晰、高效经济。整个基地分为东西“动”和“静”两大功能分区。教学办公区和生活配套区沿西侧边界布局,远离东南角供电站辐射干扰;充分利用场地南向采光日照充足优势布置教学办公楼,教学区与办公区紧密结合形成两大共享庭院空间,底层架空实现庭院空间贯通,做到高中部与初中部功能既“分”又“合”。
校园规划应充分考虑到未来的发展,使规划结构多样、协调、富有弹性,适应未来变化,满足可持续发展。教学办公楼南侧预留教学发展用地,较好地衔接了未来教学发展。
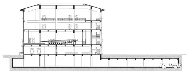
教学办公楼以北为学生公寓楼,将学生宿舍集约设为一栋高层公寓楼,节约占地,提高土地利用。多功能综合楼布置在基地东北角,其中包括底层学生餐厅、教工餐厅、厨房、多功能教学用房(兼学生剧场)、健身活动及风雨操场等。地下车库设置在多功能综合楼地下一层;建筑单体之间通过贯穿南北的风雨长廊联接。基地东南角为运动健身区,主要包含300米标准运动场、1个足球场、4个排球场、3个篮球场等,300米标准运动场沿基地东侧边界南北向布局,阻隔东侧城市主干道噪音对教学干扰。






△教学楼剖面图

△综合楼剖面图

△综合楼立面图

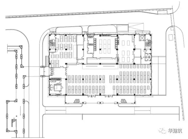
△综合楼一层平面图

△教学楼一层平面图
2、多维互动的校园庭院空间
教学办公楼平面整体呈“E”字形布局,分为三栋南北向教学楼,其中1#楼为高中班教学楼,2#楼为公共教学楼,3#楼为初中班教学楼。行政办公区和辅助用房采用单廊式沿东西向布局,与教学楼围合形成两个独立的景观庭院空间。平面上利用公共走廊把普通教学区、公共教学区和行政办公区联系起来。
校园图书馆结合下沉知识广场设在公共教学楼底层,以下沉知识广场的公共开放空间为核心,通过底层架空的公共学习区串联两个院落空间,相互渗透与共享,加强了校园内部的整体结构,形成一个多维互动,融合的校园庭院空间。


3、公共开放的共享学习空间
在内部学习空间的构建中,各楼层均设有聚集、交流、分享的场所,特质的“开放学习空间”,这也是与传统中小学校主要的不同之处。由于满足学生需求的群组学习空间的引入,可以促进学生与学生、学生与教师之间的协作式学习,将学习和实践互动联合起来,提供学生可以独立、自我充分思考、研究的机会,营造活力交往空间,激发学生的创造力。




—工业化设计—
项目预制概况
学生宿舍楼:
建筑布置: 地上10层,地下1层。首层及标准层高3.6米。
结构体系: 装配整体式框架结构,抗震等级一级。
预制构件种类: 预制框架柱、叠合梁、 叠合楼板、预制楼梯及预制空调板。
预制范围: 2~10 层(其中柱:5~10层)
预制率: 47.2%
教学办公楼:
建筑布置:1#、3#楼为地上5层建筑,2#楼为地上4层建筑。首层层高为4.5米,2-5层为4.0米。
结构体系: 装配整体式框架结构,抗震等级二级。
预制构件种类:预制框架柱、叠合梁、叠合楼板、预制楼梯。
预制范围: 1 层~4/5 层
预制率: 45.1%。
项目PC设计特点
(1)高预制率公共建筑
教学办公楼预制率45.1%、学生宿舍楼47.2%。
(2)标准化、模数化设计的学校建筑
教学办公楼、宿舍楼等使用功能明确,适合进行模数化设计。
(3)抗震等级高、节点构造要求高
抗震设防为重点设防类,节点与构造的抗震设计要求高;其中宿舍楼抗震等级为一级、教学办公楼抗震设计等级二级。
装配式要求
根据土地出让合同,本地块采用装配式建筑面积100%,单体预制率不小于40%,因此本工程中学生公寓楼、教学办公楼及多功能综合楼皆采用装配式结构。
装配式建筑模数化
学生公寓楼采用了模数化的建筑设计,由宿舍、卫生间和楼电梯间三种标准模块单元组成,其中楼电梯间模块和卫生间模块结构布置均匀对称,各模块单元如下图所示。


预制范围选择
教学办公楼采用了模数化的建筑设计,由普通教室、专业教室、卫生间等标准模块单元组成;其中对于不同功能的普通教室进行尺寸归并,专业教室采用1.5或2倍的扩大轴网进行布置;通过结构布置归并,大大减少构件种类。

—BIM设计—
项目的全过程BIM应用实现了BIM设计与传统设计实现初步融合,建立了较为统一的BIM建筑设计标准和方法,更专注于项目精细化管理的深度。对数据的分析、模拟、积累以及总结,能为空间感受、项目管理、成本优化以及进度控制等精细化决策提供了依据,为高品质,低成本,严管控,短周期目标提供有力支撑。对设计品质有了大幅度提升,在设计周期已把隐性问题提前暴露,大量解决了各专业之间的协调问题。通过对各个重要区域及空间的比对,使得项目视觉及使用效果大大提高,更可贵的是通过这种方式的运用,结合人的行为习惯,有效抑制项目中可能存在的风险,将BIM设计的隐性价值大大发挥。
利用BIM三维可视化,模型中建筑,结构,机电,均达到较深的程度,模型细部的表述可以指导施工,结合图纸有效的表达出设计意图。在BIM模型中提前模拟,为施工人员在现场施工具有指导意义。通过BIM应用解决了各专业间相互碰撞的问题,减少了二维图纸可能存在的问题,减少了后期返工或变更的工作量,在施工可建造性、可实施性上,大大节约了对项目的管理、变更、协调和运营的成本,业主方可以更好地把控设计及施工质量,为学校特有固定的招生开学时间保驾护航。

△一点透视图

△透视拆分图

△预制柱+预制梁+预制梁

△预制柱+预制梁+现浇缺口

△预制柱+预制梁+现浇部分+预制楼板

△预制柱+预制梁+现浇部分+预制楼板+现浇楼板
—绿色技术要点—
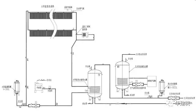
1、热水系统
热水采用集中供应的形式,采用太阳能热水系统供应,辅助热源为空气源热泵。系统采用机械循环,闭式系统。热水供水温度为60℃,回水温度为55℃。热水循环管道采用同程布置方式。屋顶的集热器应采取可靠的防止集热器过热的保护措施。


2、雨水回用系统
响应上海市推进海绵城市建设的号召,从对各种水资源利用和对场地雨水外排总量控制出发,设计雨水收集回用系统。通过过滤、消毒净化后达到《城市杂用水水质标准》,用于绿化、道路冲洗、景观等用水。雨水回用系统的流程如下:屋面雨水→室外雨水管网→弃流井→蓄水池→消毒、过滤装置→清水池。

建设单位:上海闵行城市建设投资开发有限公司
建设地点:上海市闵行区都庄路
建筑用途:教育
建设用地:43290㎡
建筑面积:4.85万㎡
最大建筑高度/层数:60m/5-10层
设计年份:2015-2016年
工程进展:2017年底竣工
结构形式:装配式预制混凝土框架结构
外装材料:仿石涂料
获奖情况:上海市装配式建筑示范项目(入围奖)
住建部装配式科技示范项目
(欢迎各大媒体转载,全面宣传推广装配式建筑!转载请注明出处)

BIM建筑网




评论前必须登录!
注册