导 读
近年来,在国家和各级地方政府大力推广装配式建筑的大背景下,我国装配式钢结构建筑取得了较大进展。在引领行业发展方面,示范项目的带动作用非常明显。笔者结合北京通州台湖装配式钢结构住宅设计实践,介绍了装配式钢结构建筑六个典型问题的解决方案。
工 程 概 况
北京通州台湖装配式钢结构住宅项目共包括两栋钢结构住宅,总建筑面积2.1万平米,27层,建筑高度为78.60m。建筑效果图如图1所示。

图1 通州台湖装配式钢结构住宅效果图
方 案 优 化
本项目建筑师提出的最初方案为一个剪力墙混凝土结构的成熟户型,经过结构的整体计算,发现建筑的户型设计与结构体系存在不匹配的问题(图2),主要包括:
1.原设计平面凹凸较多,不利于结构受力。需要向平面布置规则,减少凹凸的方向优化。
2.竖向构件的轴线不对位。需要向竖向构件轴线对位以形成连续的钢框架结构体系来优化。

图2 结构布置示意
根据项目具体情况,对建筑和结构方案不断进行优化,先后完成三轮方案的优化,具体如下:
方案1:建筑平面和结构布置如图3、4所示。

图3 方案1建筑平面

图4 方案1结构布置
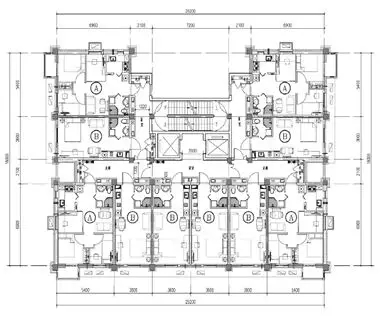
方案2:方案2建筑和结构布置如图5、6所示。

图5 方案2建筑平面

图6 方案2结构布置
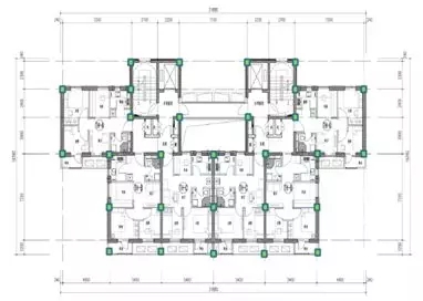
方案3:本方案建筑及结构布置如图7、8所示。

图7 方案3建筑平面布置

图8 方案3 结构布置
经过三轮方案的不断优化,随着建筑方案的不断规则化,结构含钢量等经济指标也不断下降,结合建筑功能和结构成本综合考虑,最终选定方案二。
外 围 护 系 统
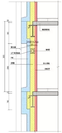
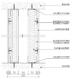
采用三层复合型外墙,即外围护系统分为三层复合而成,由外板+保温+内板构成,是集防火、保温、水密性、气密性及装饰性于一体的复合外墙:外板为125mm厚轻质PC墙板(带龙骨,自防水),带装饰面层,每开间一块板,减少板缝,减少渗漏。中间为保温层(150厚岩棉钢结构的保温,局部30厚VIP真空板隔绝冷桥)。内板为复合型保温墙板或轻钢龙骨防火板,面层25厚涂装板(兼防火板),内75厚嵌保温材料,再次阻隔冷桥的形成。内外板错缝布置,形成结构合理具有良好性能的复合外墙,外墙与楼板连接节点如图9。

图9 外墙与楼板连接构造
外围护系统集成如图10所示。

图10 外围护系统集成
隔 墙 设 计
(一)分户内隔墙设计
使用单轴对称工字梁:特点是窄下翼缘梁,下翼缘长宽度仅150mm,使分户墙厚度控制在200mm以内,钢梁可完全藏于墙体内。
具体做法:分户隔墙——采用25mm厚硅酸钙涂装板或12mm+12mm厚防火装配式住宅石膏板错缝拼接,内填隔声保温材料(岩棉),如图11。

图11 分户墙构造
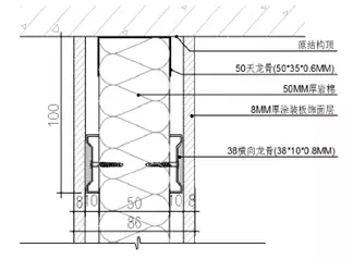
(二)轻质快装隔墙设计
轻质快装隔墙有86mm和200mm两种厚度规格,200mm厚轻质快装隔墙用于有隔声要求的房间,轻质快装隔墙主要由竖向龙骨、横向龙骨、岩棉和硅酸钙板+涂装板构成,具体结构如图12、13。

图12 86mm厚轻质快装隔墙构造

图13 200mm厚轻质快装隔墙构造(隔声)
轻质快装隔墙施工现场及效果如图14所示。

图14 轻质快装隔墙施工现场
干 式 地 暖
本项目采用干式地暖设计,主要结构从下到上依次为地脚螺栓—架空层—地暖模块—硅酸钙板平衡层—地板饰面层。典型结构如图15所示。施工现场如图16所示。

图15 干式地暖构造示意

图16 干式地暖施工
装配式钢结构住宅的评价
根据《装配式建筑评价标准》(报批稿)进行评分,本项目装配率为92%,评价等级为AAA级,具体评分计算如下表所示。

评分说明:
1、竖向承重构件采用钢管混凝土柱+钢支撑,属于钢结构全装配;
2、楼(屋)盖水平承重构件采用钢筋桁架楼承板,楼梯采用钢楼梯;比例>80%;
3、外墙复合型保温外墙,非砌筑比例>80%,满足墙体与保温、装饰一体化;
4、内隔墙采用轻质快装隔墙(轻钢龙骨+硅酸钙板),比例=60% ,满足墙体与管线、装修一体化;
5、满足全装修,干式干法地面比例>70%,厨卫全部采用集成,比例>90%;
6、部分实现管线与结构分离,比例<50%,管线与结构分离不得分。
钢结构住宅六大典型问题解决方案
装配式钢结构建筑存在诸多优势,但存在结构体系与户型冲突,露梁、露柱,大量湿作业及二次砌筑,防水、防火、保温、防腐、隔声等,传统装修和成本六大典型问题,基于本项目,可总结六大典型问题的解决方案,具体如下:
1.结构体系与户型冲突。 研究发挥钢结构体系优势的户型组合方式,例如平面规整、柱跨连续、减少开槽等。
2.露梁、露柱。采用室外或公共区域柱外偏、采用下翼缘较窄的钢梁——单轴对称工字钢梁等措施将梁下翼缘内藏,或使钢梁藏于墙内。
3.大量湿作业及二次砌筑等。除了必要的楼板少量现浇作业外,将所有部品部件全部工厂化预制。
4.防火、防水、保温、防腐、隔声等。1) 防火措施:钢柱钢梁防火板包覆,满足耐火极限要求。2) 防水措施:外墙采用大板,减少板缝,做好防水构造。3) 隔声措施:墙体隔声:围护墙体、分户墙体均使用隔声材料填充密实,两侧使用双层石膏版错缝拼接。
5.传统装修。采用装配式装修。
6.成本。成本含钢结构、围护体系和内装体系,建议采用总承包模式,其虽然存在体系复杂集成技术要求高的特点,但是有利于降低成本。
作者简介:
张守峰,中国建筑设计研究院有限公司装配式建筑工程研究院总工程师,住建部装配式建筑专家,北京市装配式建筑专家,参与多部国家标准装配式相关标准、图集编制,牵头并参与国家重点研发计划及住建部多项科研课题研究。
(欢迎各大媒体转载,全面宣传推广装配式建筑!转载请明出处)

BIM建筑网




评论前必须登录!
注册