项目案例
项目名称:Villa Patio
项目地址:印度尼西亚爪哇岛
项目类型:住宅区
竣工时间:2017年秋季
项目占地面积:300平方米/3,229平方英尺
项目成本:245,000美元
设计软件:ArchiCAD三维建筑设计软件、Adobe图像和排版软件、Photoshop CC平面设计软件、Cinema 4D三维绘图软件
建筑师:Jorge Beneitez, Eugenio Fontan, Jorge Gi
设计理念–绿色庭院的革新之作
Villa Patio项目位于印度尼西亚爪哇岛万隆。建筑面积300平方米(3,229平方英尺),毗邻同等规模的一块土地,正对着一条住宅区街道。
就外观而言,实际场地并没有什么太大的价值;场地的潜力主要体现在建筑内部的庭院,庭院环绕外墙而建,过滤了射入建筑内部的光线;同时,就地利用周边的环境,使建筑内部的绿色植物生机盎然;开辟了演变为内院式住宅标志性特色的的绿色框架。
基于“中庭”或“庭院”的理念,居住空间朝向内置的绿色庭园,既能为建筑提供光线,又能确保居住的私密性。房屋的整体布局都是围绕这个私家花园进行安排的。公共会客区域和杂物堆放区域位于底层,而住户的私人房间则位于一楼。

主要设计理念:“绿色庭院的革新之作”
– Villa Patio
© enzyme apd
“通过分享小型项目的设计经验,我们期望能够举出一个应用实例,以说明如何在项目初始设计阶段实施BIM建筑设计模型。对于在初期构思设计阶段使用BIM建筑设计模型的益处,许多建筑师都一无所知。对我们,也对客户而言,使用BIM建筑设计模型能够确保工作流程的顺利进行,以及设计方案结果的圆满成功。”
——Eugenio Fontán Yanes 设计主管兼合伙人

三向投影的楼层示意图 – Villa
Patio © enzyme apd
项目设计充分考虑了印度尼西亚当地的技术条件和施工方法。在某些情况下,大部分的小型建筑都使用砖块和混凝土砌筑,并进行粉刷。当然,使用木材和竹子也是很常见的;但归根结底,选择使用哪种材料只是个人喜好问题。在Villa Patio项目中,客户明确要求,房屋的基本材料以混凝土、砖块和(粉刷)底灰为主。从概念设计阶段伊始,客户就始终强调“简洁干净的空间”和“多功能型的家庭住宅”的设计标准。
中庭是“光线的主要来源和活动的主要区域”,横向连接建筑容积。
– Villa Patio © enzyme apd

协同工作–ARCHICAD团队协作硕果累累
整个设计团队由三名建筑师组成,他们在使用BIM建筑设计模型开发项目方面具有丰富的经验。在团队共同协作下,BIM建筑设计模型和编制的所有文件都在ARCHICAD软件编程的同一文件中进行开发。
自项目设计伊始,资深高级建筑师就负责规划设计理念,与设计团队的另外两名建筑师测绘BIM建筑设计模型,同时为客户提供所有可交付成果的情况介绍手册。资深高级建筑师将花费为期三周的时间,专职负责项目设计工作。
在研发建筑设计模型时,BIM管理建筑师将参与概念设计工作,并负责编制相关文件。在第一周,BIM管理人员可采用兼职工作的形式参与项目设计,但在第二周和第三周,BIM管理人员必须全职参与项目设计。

BIM建模师也将参与概念match设计,创制BIM建筑设计模型,并编制相关文件。在第一周,BIM建模师可采用兼职工作的形式参与项目设计,但在第二周和第三周,BIM建模师必须全职参与项目设计。
项目可交付成果
项目情况介绍手册
项目情况介绍手册包括概念设计阶段所有必需的文件。
简介:就概念设计进行解释说明;
设计灵感:设计参考、设计基准、设计理念;
设计方案:概念设计的变量和迭代;
设计图纸:按照1:100的比例显示的楼层平面图、剖面图和正面图。上述图纸均从BIM建筑设计模型中提取。
示意图:项目介绍说明的轴测投影图,标注空间功能和区域划分的楼层平面图;
CGI:内部和外部空间渲染图。
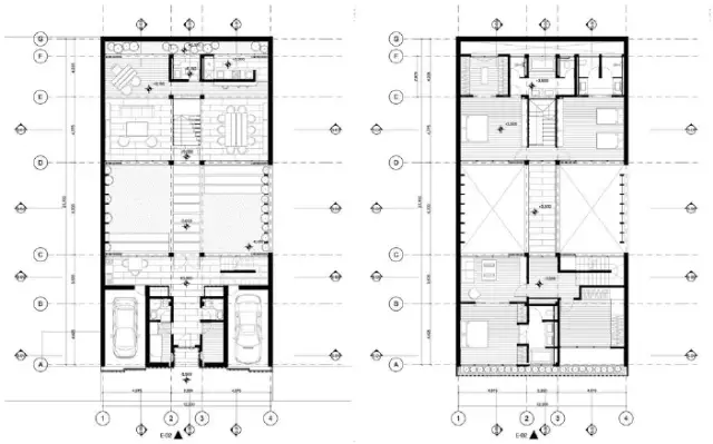
楼层平面图 – Villa Patio © enzyme apd

所有文件都应以PDF文档的形式装订成项目情况介绍手册,以及内附各单独文件、图片和图纸的项目原型结构目录。客户不要求提供BIM模型文件,但我方会在提交上述文件的同时将其一同提交给客户。
通过主轴线和图标垂直面连接部分“浮梯”三向投影的截面图
– Villa Patio © enzyme apd

AC工作流–始终着眼于设计
整体的概念设计历经三周研发完毕。从项目伊始,我们就使用了ARCHICAD来创建项目的BIM建筑设计模型。我们提供的所有图形化文件均在ARCHICAD软件内部创建完成。我们还利用Adobe Photoshop图像处理软件来编辑电脑生成的图像,使用InDesign排版设计软件来编制项目情况介绍手册。
第一周
加工细化设计理念和概念设计研发的迭代次数。资深高级建筑师负责项目设计工作。设计团队(另外两名建筑师)参与设计流程中的编制设计方案和绘制设计草图工作。
制备模版和编制文件所需的BIM建筑设计模型文件。BIM管理人员在负责上述任务的同时还应部分参与设计流程。
框架构思“私人VS公共+固体VS可渗透”
– Villa Patio © enzyme apd

第二周
为团队协作挑选出来的设计开发BIM建筑设计模型。
在此阶段,我们要根据客户的反馈意见对设计进行修改。此过程要求全体团队成员的参与。BIM管理人员制备文件,并管理图形规格和程序库。资深高级建筑师和BIM建模师通过团队协作开发项目。

ARCHICAD三维建筑设计软件中的Villa Patio项目 © enzyme apd
第三周
编制文件和可交付成果。
制备BIM模型以便输出图形化文件和二维图纸。项目设计中和提交的所有文件中存在的任何细微变化都应进行相应地更新。BIM管理人员的任务是在CGI和图形的后期制作中输出全部文件,以制作项目情况介绍手册。BIM建模建筑师负责项目情况介绍手册中包含的CGI和图形的后期制作,并将其分别发送。
制作完成并提交项目情况介绍手册。
制备和设计项目情况介绍手册版式,并进行项目情况介绍的资深高级建筑师负责将所有的文件输入项目情况介绍手册。BIM文件更新和制备完毕之后应提交给客户。同时,还应为客户制备带有单独程序库目录的PLN和PLA。

Sections of Villa Patio © enzyme apd
“在我们的实践中,从项目伊始执行BIM建筑设计模型不仅仅是与客户和所有利益相关者进行磋商时显示出来的一种优势。所有的办公室工作以及与外部当事人之间开展的所有协商工作都能够从诸如BIM的职能流程中获益。”
——Eugenio Fontán Yanes
关于APD
建筑设计程序
Eugenio Fontán Yanes认为,建筑师们对于概念设计阶段早期的BIM和2D/3D程序的有效性仍存在争议。
针对“概念设计”制备的简易模版能够使公司在BIM建筑设计模型中开展项目工作,而不浪费在项目开始阶段的任何时间;同时,也能够使设计师们在早期阶段以2D和3D的形式查看项目进展的情况。

Villa Patio项目中就餐区域和开放式厨房透视图 © enzyme apd
Eugenio Fontán Yanes 认为,“所有二维文件直接从模型中以一种‘智能的’方式输出的程序加快了整个设计过程,同时也提高了精确度,降低错误率。而这只能通过项目伊始建立的准确的BIM建筑设计模型实现。”
Enzyme的建筑师们都曾吃过二维设计程序的苦头。“在设计过程中,我们花费大量时间与客户进行沟通,而人工作业还增加了错误发生率”。
“通过使用含有BIM建筑设计模型的设计软件,我们能够有效利用时间和资源以获得设计的最佳效果。”
——Eugenio Fontán Yanes

Villa Patio项目中就餐区域和工作间透视图 © enzyme apd
【震撼】ARCHICAD 21宣传片
【震撼】ARCHICAD 21宣传片
关于图软:
1984年,图软推出了ARCHICAD®——业界第一款为建筑师打造的BIM软件,由此掀起了BIM革命。凭借创新的解决方案,图软一直引领着整个行业的发展,例如革命性的BIMcloud®,全世界首个实时BIM协同环境软件;EcoDesigner™,全世界首个全BIM整合的“GREEN”设计解决方案;BIMx®,全世界领先的BIM可视化移动App。图软隶属于Nemetschek集团。

BIM建筑网

评论前必须登录!
注册