作者简介:
王彦祥,天津市市政工程设计研究院,工艺工程师。2014年开始学习使用bentley软件。
写在之前:该文成于2015年,算是落满灰尘了。项目按图施工,早已竣工运行,下文所述并无虚言,写一个东西做一件事情总要找寻意义,如此说来,写这个报告的目的就是给同行一个参考,对于“BIM建模人员兼设计师”与“老员工不会用BIM”之间青黄不接的问题,提出一种解决思路。我们常说,国产货爱山寨,但我们也要意识到,都是舶来,之后分拆,然后模仿,继而走自己的路,最后才有创新。那么从CAD逐步过渡到全BIM,不会一开始就给你配备到位,你有想法,BOSS给你软件和机器就不错了,你要先富先付,才能带着大家富。大家就不要关心我富不富了,我还在工地搬砖。
0 前言
污水处理厂及泵站构筑物单体数量多、管线种类复杂、工期短、出图量大;建结水暖电等各专业间配合要求高,碰撞检查及专业间会签错漏逐渐增多;晒制蓝图对复杂节点表述不够生动清晰,向业主汇报效果差,造成对设计的评价较为滞后并低于预期,也不利于后续施工和运营维护。对于厂站等带有复杂管线设计的工程如果继续采用二维CAD制图方法,竞争优势正在逐渐减弱。
针对上述问题,各大设计院目前对于BIM 逐步重视,但多数仍停留在“翻模”水平,也就是设计人员完成二维平面设计,由专门的建模人员搭建模型,这样的模型并不实用,也做不到专业之间的预判和协调,并不能真正的增强竞争力。随着设计院的体制改革和向工程公司的转型,在工程建设的各个阶段必然面临着多重问题,设计院的项目BIM应用同样尚处于初级阶段。主要停留在二维图纸完成后,机械转换为三维模型向业主推介的低级阶段。目前的状态反而提升了使用BIM的成本,使得BIM设计成为拖累,整体BIM设计积极性和效果均不佳。
目前国内兴建综合管廊,与市政道路的新改扩建同步实施,在设计和施工阶段均面临地下管线复杂,新建管线繁多的问题,管线交叉碰撞几率提高,均会影响到出图效率和综合质量。
本文基于河南省某污水处理厂泥区建设工程,尝试直接对模型的构建,在此基础上进行三维模型交付和二维图纸输出。借助通用技术平台,相关软件进行数据交换,调用不同专业不同格式的图纸,最终形成三维模型并在二维与三维之间进行转换。
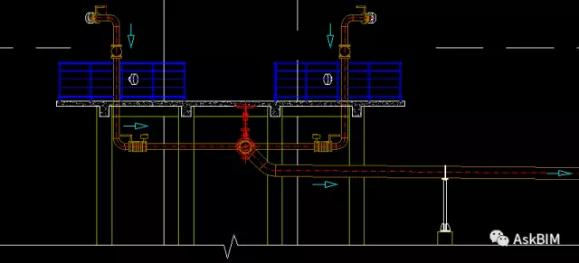
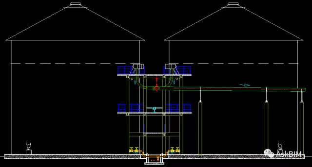
该水厂污泥处理处置区域,消化罐区内罐体与混凝土平台交错布置,各层平台上下均布置有工艺管线,包括排泥管、沼气管、供热上水管、供热回水管、进料管以及反冲洗管道。每个消化罐的出入口设置有相应的流量计和压力计,如何有效的布置工艺管线避免与混凝土平台的碰撞,同时又能便于阀门开关以及维护,同时人员在各层平台间能安全顺利通行。
通过构建建筑信息模型(BIM),可以直观的表现各种管线、管件之间的相互关系;软件自带的碰撞检测功能可以查看管线与其他建构筑物和管线之间的关系;管线管理器方便的修改管径和保温层厚度并且随时调整阀门类型及操作方式;“动态视图”和“剖图”提供了所见即所得的便利性;精确绘图保证了模型和出图的准确性;模型的平立剖可以表现出不同的视图模式并且可以保持与模型的联动;模型不同显示模式可以让业主对项目有充分的了解,
1 项目研究内容以及总体目标
1.1项目研究主要内容
(1)基于设计方案,探索直接进行三维建模的可行性;
(2)沼气管道、排泥管道、中心排污管均设置有坡度,供热上水管、供热回水管、进料管以及反冲洗管道坡度为零,研究在三维空间中如何定位并前后顺利衔接。
(3)将各专业图纸统一在MicroStation平台上操作,对接坐标,实现比例统一,三维模型与二维底图能精确对应。
(4)尝试采用三维模型直接向业主汇报,并在三维模型中进行设计的修正。
(5)对比研究切图完成后在BIM中进行标注和在CAD中进行标注的速度对比,摸索实用的作图方式。
1.2、总体目标
(1)完成多个单体的模型,并构建总BIM模型,完成平立剖及特殊节点切图并将DGN图纸导出形成图纸;
(2)模型可用性强,模型内管道参数,如保温层厚度、管道直径、管道连接形式可调,有效的完成管道连接性检验;
(3)碰撞检测通过,并且能有效的辅助工程的建设与实施。
(4)模型做到涵盖工程所需内容,占据存储空间小,尽可能的降低对计算机硬件的要求
2、项目研究进程与主要指标
2.1项目研究进程
(1)资料收集整理阶段
收集厂家提供的设备尺寸图、管线资料(管径、材质、保温层厚度)、阀门及弯管要求,设备厂家的P&ID图。
咨询业主对项目的建设要求(限高、防火),甄别已提供图纸的建设情况,明确地下现状管线及周边建构筑物。
同有模型构建经验的工程师沟通,进行经验总结,避免在后续工作中走弯路。
(2)方案制定阶段
与电气自控专业及结构专业进行方案初步探讨,初步确定管道坡度,走向,阀门及仪表安装位置(流量计前后安装要求、压力计位置),阀门控制方式(手动、电动、气动),支吊架形式。
结合厂家提资与业主要求,绘制平面方案,同结构专业与电气自控专业互提资料,明确预留预埋尺寸及大致位置。
进行数据计算,确定弯管曲率、管道坡度及直径,气动管路损失及压力需求。
(3)建模阶段
通过ABD构建结构专业的模型,使用OpenPlant完成设备、管道及仪表的布设,在通用环境里集成结构与工艺专业的三维模型,形成第一版方案。
(4)模型复核
在明确设备、仪表与管道和建构筑物之间的安全距离后,先通过软件自带的碰撞检测功能查看不同专业管线之间的碰撞可能性,再次进行管线与结构的碰撞模拟,判定墙梁板柱及预埋预留的合理性,该阶段可能涉及到模型的修正与完善。
将模型打印成3D PDF(即PDF文件里面存储有三维信息模型,使用Adobe软件即可查看),备注好查看的方式和里面存储的相关信息,咨询业主意见。
(5)三维模型的交付与二维出图
在上述基础上,完善模型,打印3D PDF(内部存储好相关的平立剖与相关视图),在MicroStation中切图,并进行相关的设置(线形、粗细、剖切方向、显示模式),导出二维图纸,基于二维软件有丰富的插件,可以快速完成标注,高效的将图纸按期交付。
2.2主要指标
(1)ABD中完成结构模型的构建;
(2)OpenPlant完成设备、管道及仪表的布设,赋予构件、管道及设备相应的属性和信息;
3、项目完成情况
3.1 模型构建与修整
3.1.1 软件学习与准备工作
本项目实时应用到的软件有CAD,MicroStation,AECOsim Building Designer以及OpenPlant。其中MicroStation既是通用平台,可以整合上述软件资料,交互使用;又是建模的平台,可以建立二维或者三维模型,但是建立的三维模型并不具备属性,带有属性的模型需要采用专业软件完成。其中,AECOsim Building Designer在本项目中主要完成了结构部分的建模,包括墙梁板柱及非标构件,OpenPlant在本项目中主要为工艺专业服务,也就是完成了管道及设备的构建。
3.1.2 软件学习计划
MicroStation为最基础的学习,也是最为关键的部分,涉及到三维空间中如何实现精确绘图,完成无属性模型的构建,每日研习视频及练习2小时,学习时间约2个月。完成后达到的效果包括:
元素方面:精确绘图,单元创建与安放,图层控制,快速选择等;
视图控制:视图模式的转换,保存视图,参考的引用及调整;
保存与修改:文件的压缩,设置的保存,即时操作是否保存的设定,文件加密的设定。
AECOsim Building Designer可以应用到多个专业,包括建筑、结构、管道与暖通。其中OpenPlant是专业的管道建模软件,针对结构专业,在本项目中每日研习视频及练习2小时,学习时间约半个月;
OpenPlant主要完成参数化设备,在设备上添加管嘴,放置管线,管线编辑,自定义构件等工作,在本项目中每日研习视频及练习2小时,学习时间约一个周。
3.1.3 建模过程
建模过程要 “抓大放小,分清主次”,本项目的最终成果是二维图纸交付,而大部分的设备厂家已经提供了平立剖面图纸,在建模过程中我们需要做的是提供合适的尺寸,形状比较规则的设备视作长方体,根据设备的长宽高进行设定,但对于设备的出入口,管道连接部分及对于总体的定位是必须需要准确的,最后出图时在CAD内将该部分矩形替换为设备图,简化建模过程,降低工作量。
在建模之前,需要详细研读厂家提供的设备图纸,明确各部分的相对位置关系,做到心中有数,既可以做到脑中构建,又可以充分了解设备的构造。在建模过程中可以暂时不关注后期渲染和材质选取的问题,主要目标在于模型的“精确”,市政行业的设备相对来说较为简单,不涉及复杂的操作,软件具体操作可以结合视频教程进行落实。
模型在构建过程中,如果没有特殊要求,建议不要设置过多的图层,同时比例可以设置为1:1的比例,因为该软件同CAD一样,可以在参考(类似于CAD的外部参照)中设置比例,而且操作速度较快。另外,在构建过程中,如果对于坐标系的掌控不熟悉,无法快速的进行ACS和GCS的转换,可以将复杂设备进行拆分(相对于中心点有一定偏转角度的设备),分别建模后,再通过ACS平面锁和ACS平面捕捉锁进行设备的定位和拼装,这样化繁为简。
本项目是采用的三维直接建模,尤其是针对管道,但在建模过程中,仍要考虑二维设计的重要性,也就是通过二维草图过渡到三维建模,是相互依托及反馈的过程,软件只是实现的工具并不是设计意图,决定因素仍然是人。
由于不同专业软件之间兼容性并不强,设计需要修改的地方还是需要回到原设计软件环境下进行处理。由于管道是带属性的,不能使用MS自带的打断功能进行管道修改及平移复制等工作,这将导致管道连接失效,在设计过程中应采用专业软件的管道复制打断及延伸功能。
3.2软件关键操作
3.2.1 文件参考到DGN文件中
设置CAD文件的坐标系,首先在模型空间对照查询引出的坐标是否与提供的坐标点一致,如果不一致,调整图像位置,直到引出点为绝对坐标点一致为止。
菜单栏——工具——参考——1参考,在弹出的对话框中,选择“工具——连接”,找到需要参考进来的CAD图像,弹出对话框,提示相应的参考图纸,此处一定要选择模型空间,因为布局空间的坐标对应不上;再次比例一定要对应,在MicroStation中采用的是1:1的绘图方式,图纸空间无限大,类似于CAD。
3.2.2 DGN文件转换为文件时保持坐标一致
在MicroStation操作界面命令键入域键入GO=$并回车,查看状态栏的显示,如果显示的不是“全局原点距设计平面中心偏移0.00,0.00,0.00”,就说明DGN的坐标系被修改过,需要进行调整。在MicroStation操作界面命令键入域键入GO=并回车,弹出对话框,选择“中心点”模式,提示“输入数据点以接受并在设计平面中设置全局原点的中心”,在坐标系中输入0.00,0.00,0.00并回车,则全局坐标与当前坐标一致,查询引出的坐标即为绝对坐标。
3.2.3 三维DGN文件转换为二维文件
将MicroStation文件中的图像由三维转化成CAD二维,在模型空间及布局空间均显示二维,而且没有任何附件、就跟粘贴过去一样,尽可能缩小文件大小并储存尽可能多的内容。
菜单栏:文件——输出——可视边,对话框中选择输出二维图纸,将三维DGN转换为二维DGN,然后再菜单栏——文件——另存为——。
用MicroStation V8i的动态视图技术也可以从三维模型中,抽出二维图,只不过之间的转换是通过设置显示样式来控制二维图的,而在DEM(Drawing Extraction Manager)中是通过构件的Part属性,以及各个专业的切图规则Rule来控制二维图属性的。所以,我们可以根据需要,来选择平台,或者专业软件来形成二维图。
3.2.4 显示模式的选择
在microstation中创建完三维模型后,然后将相关的主视图、俯视图等参考到二维图纸(2D,sheet)后,选择合适的显示样式打印出来会有比较好的效果。
对于常见的显示样式,用wireframe线框样式,显示的线条有点多,容易引起误读;用hiddenline样式,则有的物体由于位置关系,容易被遮盖;但是在样式定义中,定义被遮盖线条以虚线显示,仍用hiddenline样式,这样应该就能满足工程要求了,或者用剖视图可以将被遮盖的物体表示出来。
3.2.5 动态视图的设置
MicroStation的DV(Dynamic View–动态视图)功能极为重要,在切图及查看模型时方便快捷。
①在三维模型中选Drawing Composition任务下的Place Plan Callout;
②在三维的Front视图中定左右两点以及向下的一点,此时会弹出Create Drawing对话框
③设置该对话框后即可自动生成Plan Sheet(实际上是参考了Saved View)
所谓“动态”就反映在这里,只要你的三维模型发生改变,或是你移动了剪切面,则PlanSheet中的内容会自动跟着变化。MicroStation的不同视图是可以用来显示不同的模型的)。
3.2.6 Dynamic View切图流程
通过设定一些切图定义来从三维模型里得到二维图纸,当我们的模型发生变化时,我们可以通过切图定义来使二维图纸与三维模型同步,这其实就是三维设计的概念,从繁琐的绘图操作中解脱出来,把精力关注于设计。切图定义的方式有两种:Drawing Extraction Manager和Dynamic View,简称DEM和DV。从三维模型到二维图纸的操作步骤为:
1、筛选模型。在这个过程中,决定哪些模型是参与切图的,哪些不需要。甚至,在同一个模型文件中,也有一些图层上的构件是不参与切图的。为了保证切图的速度和精准的表达,我们在切图前,需要决定哪些模型参与切图,把无关的模型去掉。
2、定义切图。无论是DEM还是DV,在定义切图时都大同小异,主要考虑如下几个方面:1)切图的位置、方向、范围 2)切图的规则3)输出选项。
3、计算输出、标注组图。直接从三维模型切出的图纸并不一定满足最后的图纸表达细节需求,我们还是需要在此基础上做进一步的细节,例如,加上图框,加上必要的文字说明等。
3.2.7 图纸标注
构件的属性都可以通过切图定义来设置自动切出,考虑到后期的位置调整,一般用属性标注工具,查找相应教学即可。从工程实际应用角度,不赞同用切图规则来控制标注,因为对于建筑类讲,自动标出来还是需要调整位置,不如使用属性标注工具,提取,标注。反而更快。
3.2.8 OpenPlant公制工作环境选取
OpenPlant中,选择OPModeler_Metric中的种子文件,同时需要安装有公制的Workspace/Dataset并在启动时选择之。
3.3 三维效果与二维出图结果
3.3.1 单体建模与出图

305消化罐区结构专业建模

305消化罐区管道与罐体之间的关系

305 结构设备与管道关系

305消化罐区三维建模

305沼气管路二维出图

305进料管管路二维出图

305排泥管路、中心排污管、伴热上水管、伴热回水管二维出图

BIM建筑网

评论前必须登录!
注册