
该平房设计位于尼科西亚郊区的一个新住宅区内,地块呈狭长矩形。周围的建筑采用了不同的建筑风格、外观和尺寸,为发展独立的建筑语言奠定了基础。





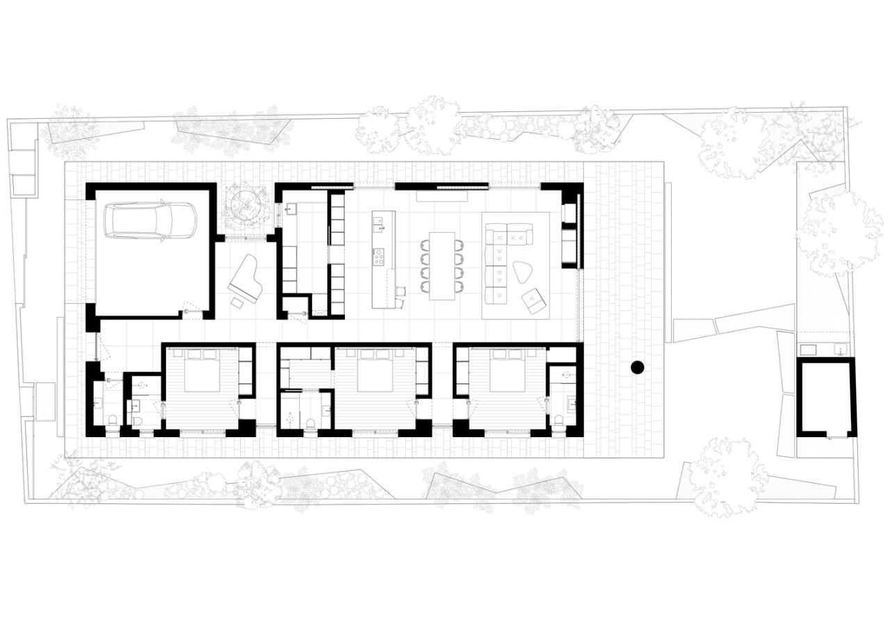
房子被安排在一个像桌子一样的结构下,它位于地块的前面,最大限度地扩大了花园的面积。建筑被一个现浇的混凝土顶棚包裹着,保护所有开口免受日晒雨淋,同时为外围空间提供遮蔽。





一个 4 米长的顶棚向花园外延伸,形成了一个有顶棚的长廊,长廊位于一根独特的混凝土圆柱上,给外部空间带来了宏伟的规模和比例。





住宅的内部布局分为两个区域:西区是卧室,可以享受夏日晚风的吹拂;东区是起居室,可以通过大开间欣赏风景。





一堵 17 米长的裸露混凝土墙贯穿整个住宅,不仅成为雕塑般的特色,还为仅通过两个开口相连的住宅两区提供了私密性。








微信公众号:xuebim
关注建筑行业BIM发展、研究建筑新技术,汇集建筑前沿信息!
← 微信扫一扫,关注我们+

BIM建筑网





评论前必须登录!
注册