
远景中心位于台州中央商务区的核心地段,是台州中心区轴线上的重要建筑节点。场地东临城市中心大道,西接和合公园,北侧亦有公园相邻,景观方向明确。
远景中心是台州资深建设公司——方远集团与台州新兴房产开发商——朗成集团的公司总部。两家公司对办公楼的诉求并不相同:方远集团希望办公楼稳重大气,以传递公司气质;朗成集团希望办公楼形象创新,并满足灵活租售。
如何在满足双方诉求的同时让建筑保持整体性是设计面临的重要挑战。

和而不同的布局与形式
设计采用底层连接的“双塔”布局:东塔楼面向城市,是方远集团总部;西塔楼朝向公园,是朗成集团总部。既与南北向城市肌理呼应,又让两集团“独立性”显而易见。
塔楼以相同的“L”形体块、相似的体量及立面幕墙形式,使两个独立塔楼形成视觉上的整体性。又根据场地条件及企业气质、诉求,进行了更精准的空间与形式设计。

东塔楼面向城市,以更简洁、完整的形式塑造建筑的城市界面,也更极致地保留了平面空间的完整性,提供更多使用空间。建筑东南角结合门厅布局大尺度、规整的通高、通透中庭,不仅呼应了企业稳重的气质,丰富了空间尺度、感知,也成为企业面向城市的另一个展示面。

西塔楼朝向花园,面对优质景观资源并结合朗成集团的诉求,设计“化整为零”。办公区将“L”形平面划分成 3 个可独立使用的空间,通过内向中庭连接,形成可分可合的平面布局,既满足不同功能使用,也适宜不同租赁需求。
灵活的平面布局带来空间错动的自由度,形成活泼立面的同时生成大量面向公园或城市的小型空中庭院,为办公提供绿色、健康的环境。



对城市友好,让自然进入
双塔通过大尺度的底层空间与空中平台进行连接,也借此将周边自然引入建筑与空间。
底层连接面向北侧公园于塔楼间形成可穿行的架空空间,维持了城市与公园的直接对话,以友好的姿态将空间让渡给城市中的每一个人。底层更公共、开放的城市功能布局,如会客、商业等,加强了底层的城市公共性。


空中平台结合公共功能布局,以可读的强形式朝西侧、北侧公园打开,设置大量景观阳台以获得更直接的自然体验,也丰富了立面节奏。


gad 以整体的设计理念和精湛的建筑技艺,将远景中心打造为一个既满足企业需求又兼顾城市发展的建筑典范,为城市建筑的发展注入了新的活力和动力。
项目图纸

△总平面图

△首次平面图

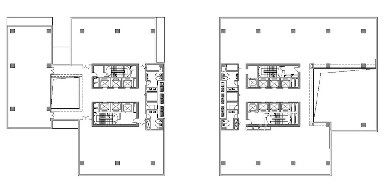
△标准层平面图

△剖面图
项目信息
项目名称:台州远景中心
项目地点:浙江台州
详细地址:浙江省台州市椒江区中心大道与亿嘉路交叉口
项目类型:办公
设计时间:2019年
建成时间:2024年
用地面积:20696m
建筑面积:84972m(其中计容49732m)
容积率:9.22
设计单位:gad 杰地设计
景观:gad 杰地设计
室内:典尚室内装饰设计有限公司
业主:方远、朗成景隆
摄影:建筑译者姚力

BIM建筑网





评论前必须登录!
注册