
靖江滨江新城南部片区几大社区中心建设是社区居民生活提升的重要载体,长阳邻里中心是其中之一。如何在有限用地范围内尽可能实现一日生活需求的同时创造邻里交往的机会,场所记忆再现,将邻里中心建设为一个得以持续性吸附居民生活的容器与载体。


社区中心建设用地一般较为紧凑,有最低容积率要求。用地条件决定了社区中心外部场地、交往空间有限。内部因为多种空间形态不同的功能复合叠加,垂直交通核及出入口的挤占影响内部空间使用效率。为社区生活提供具备粘附性的载体,是居民生活的栖居之树。长阳邻里中心因为三角形不规则用地客观条件,这一矛盾尤为突出。


邻里中心设计业态组织、使用效率提升的依托是城市社区的需求。本案所处靖江新城东南部,依江而建,枕水而居。同时又是规划的两片三廊两核交汇点。所处位置所依附的城市结构,提供了需求的同时,决定了复合、交融、开放的建筑选型。


基地附近原住民住宅与耕地并存的生活生产模式依然存在,为社区中心的空间形态提供了一种原生态的样本。从中抽象出邻里关系自发形成的空间诱因。田间地头不经意的交往潜移默化地形成了一种自然且良好的邻里关系,正如西扎所认为的“场所精神“,新的建筑应该归属或融入该地区的传统,尊重场所与文脉。本案是对新地域主义进行了一种在地化的实验与验证。



复合与叠加是社区中心在高密集城市地段、容积率要求下常用的设计策略,往往造成建筑形体空间的拥塞,失去创造场所精神的契机。复合叠加作为一种被动但有效的设计策略,如何在追求效率的同时赋予建筑空间的松弛感,错动是其中的关键手段。


邻里关系的重塑,邻居之间和睦的邻里关系是传统生活的典型记忆。当代城市生活这种记忆的减退,不仅在于现代城市建筑尺度的扩大,原住民居住、生产生活的并置,邻里中间田间地图不经意的接触社交的公共属性融入日常生活中。修复这种邻里关系的触动,源于制造邻里间不经意的遇见。坡道作为一种建筑元素串联了不同功能之间的非必要的连接。非必要制造了一种意外的相遇,不经意成为人与人之间关系重塑的催化剂。


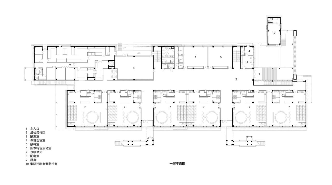
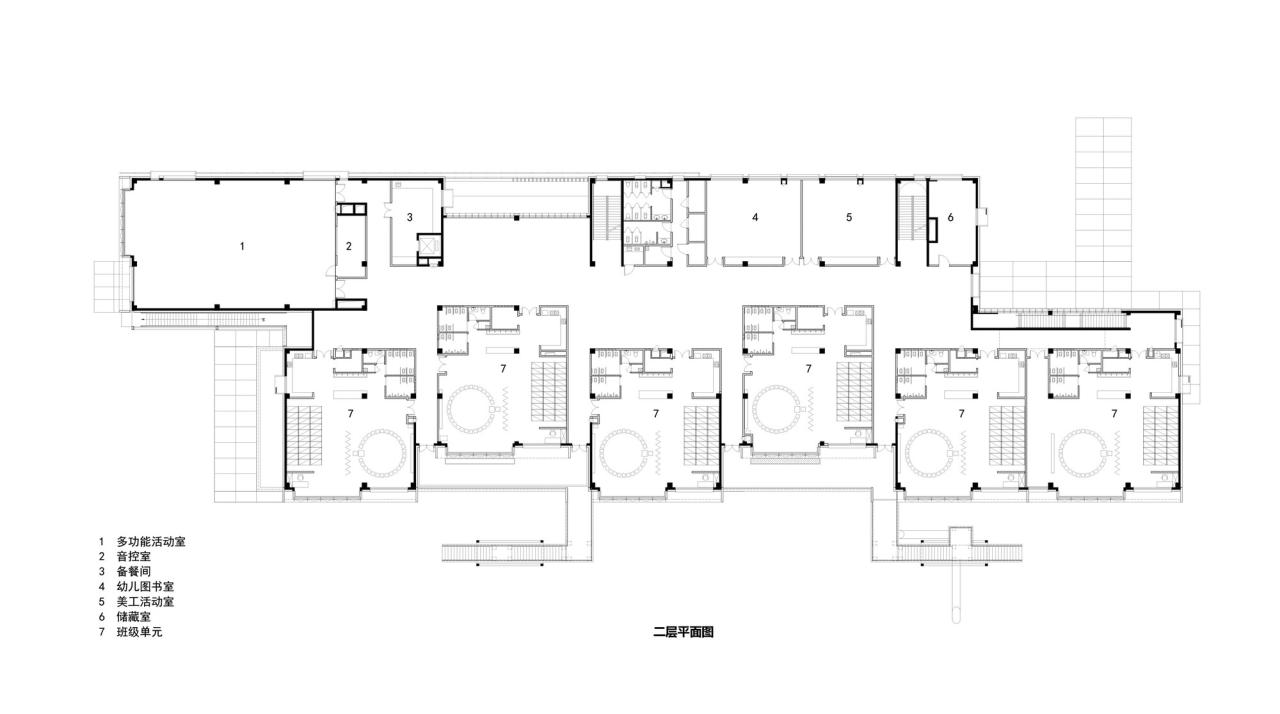
靖江随着新兴产业的发展,人才引入逐年加强。这一群体处于育龄人口占比较高。社区中心的功能配置重点考虑了幼教需求。小朋友成长背后是整个家庭的付出,这种不仅是关爱还有很多接送等日复一日的行为。让大人与小孩一起成长,解决育儿刚性需求的同时,寻找大人小孩各自时间表的共性,建立工作生活的链接,交集与外延。幼儿上下学、家长停车、接送、等候等一系列需求,社区中心从功能配置、空间串联等方面予以满足。

社区中心远眺长江,建筑景框中的江阴大桥将时代的宏大叙事代入了细微的社区生活。社区中心解决的是最为平实的日常生活需求,提供人与人接触的机会。生活的日常提供了人与人相遇相知的机会,不经意的接触沉淀为新时代邻里关系,勾起往昔的记忆。创作过程是一次重新体会人与人关系的契机,希望良好的邻里关系能够成长为一棵宜居的栖居之树。

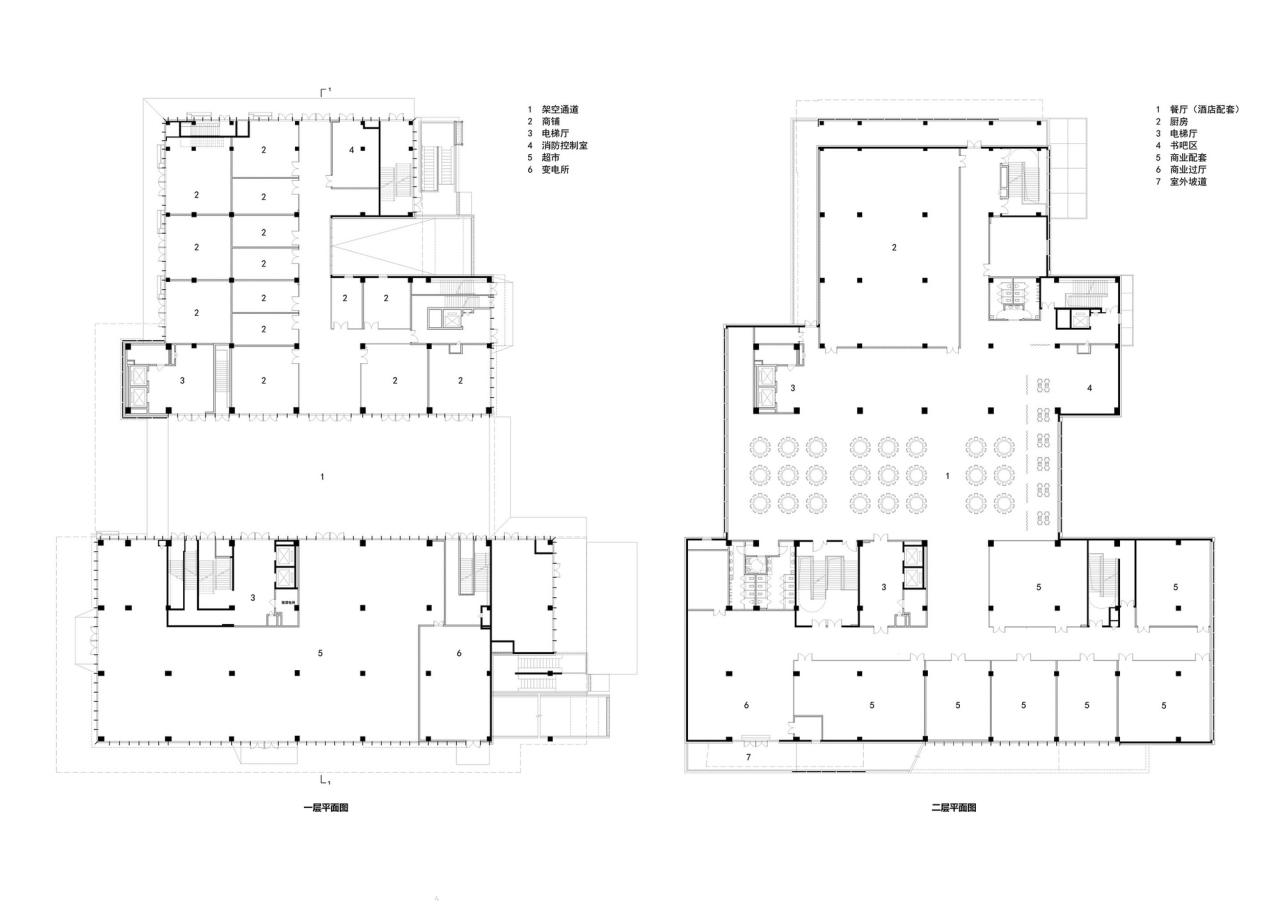
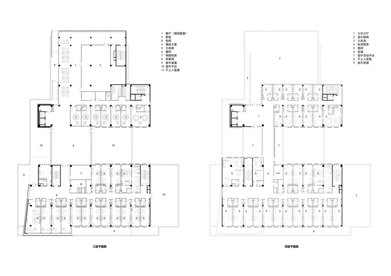
项目图纸









△轴测图

△轴测图
项目信息
建筑师:南大建筑钟华颖工作室
面积:29400m²
项目年份:2024
摄影师:侯博文
主创设计师:钟华颖
方案团队:钟华颖,韩阳,戴庆来
建筑施工图团队:陈军仕,刘飞,尹伟
结构施工图团队:冷斌、谢洪恩
给排水:陈冬、陈长霞
电气:赵越、王立明、邢自巧
暖通:孙建国、张明明
智能化:陈洪亮、马勇
室内设计:范海君、朱晓艳、田春阳、陆凯飞
景观设计:李满、阮颖、阮成天
幕墙:刘范春、吴礼超
亮化:王钰景
海绵城市:朱敦学、蔡士盼、沈翔
委托方:靖江市滨江新城投资开发有限公司
地点:靖江

BIM建筑网





评论前必须登录!
注册