2024年12月26日,全国首座“六边形”立体交通枢纽综合体苏州南站正式通车运营。苏州南站位于吴江汾湖高新区,是长三角生态绿色一体化示范区对外门户枢纽,是沪苏湖高铁与通苏嘉甬高铁的“十”字交会共用枢纽站。站房总建筑面积40000平方米,站场规模4台12线(其中沪苏湖高铁场2台6线,通苏嘉甬高铁场2台6线)。城际铁路和城市轨道平行于同一地下空间,四条线路呈现出“*”型架构。
作为基于中国国情的站城融合理念的最新设计实践,苏州南站枢纽综合体旨在通过创新高效的交通组织、多元融合的综合开发,打造既有水乡特色又具未来感的创新站城空间。
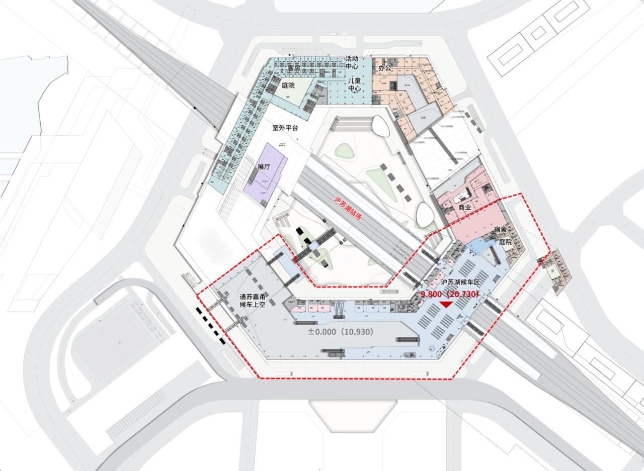
十字车场创新站房布局
十字交叉型铁路站场是不同方向的铁路站场上下交叠的一种站场布局,在该情况下,一般会使其中一条铁路两次绕行90度,通过车场的并列布局降低交通组织的复杂性。这种方式会减缓列车的运行速度,延长旅行时间,并且可能导致建设成本提高。随着我国铁路网密度的提升,十字交叉铁路站场的数量在不断增加,但目前十字交叉车场的站房布局在交通换乘、与城市的衔接、空间体验等方面都亟需提升。
为此,苏州南站在不改变传统站房基本交通组织逻辑的基础上,创新性地采用“Z”型非对称布局。沪苏湖场采用“上进下出”的进出站流线模式,通苏嘉甬场采用“下进下出”的进出站模式,同时满足两个站场进出站流线及空间使用上的均好性。两个站场使用统一的进站厅及出站厅,这种做法可以有效缓解进站旅客及接站亲友的选择焦虑,避免了设置两套进出站系统后旅客由于选择困难而迷失方向。在明确的流线引导下,进出站效率均得到显著提升。
苏州南站的创新性布局还进一步有效激活了两场交叉处的低效用地,使站房与城市联系更为紧密。在两场交叉处的空间,集中设置了城市交通换乘中心和集中出站厅。旅客出站后即到达交通换乘中心的中央位置,周边围绕着地铁、出租车、长途大巴、公交车等交通接驳空间。经测算苏州南站各交通方式换乘高铁站距离均控制在200米范围内,进站平均换乘距离为60米,出站平均换乘距离为130米,所有旅客在各个交通方式之间的换乘都将控制在5分钟内,有效实现了与各交通运输方式的零换乘,营造高效、安全、舒适的人性化交通体系。
站城融合立体综合枢纽苏州南站周边水网密布,区域以生态绿色为基底,开发强度受限,设计充分考虑旺盛的城市发展需求与土地资源不足存在的明显矛盾。在开发模式上,苏州南站创新性地实现了站城融合一体化建设模式,将地方红线与铁路红线合并为一个大范围的红线共同开发,参建各方形成统一的利益共同体,统筹交通规划与城市设计。在传统建设模式下,地方配套工程建设需要退让国铁红线及安全控制线,难以整合利用。相比之下,苏州南站采用的大红线综合开发模式更有利于站城融合发展,大红线内的项目统一设计,同步实施,避免城市开发与铁路的退距,由此缝合被铁路割裂的城市各象限、集约利用区域原本匮乏的土地资源。
枢纽综合体占地面积约244亩,总建筑面积约37.3万平方米,其中地上约22.3万平方米(含高铁站房及相关工程约7.2万平方米),地下约15万平方米。除了铁路功能外,用地红线范围内还存在多个项目,包括酒店、会议中心、服务型公寓、科创办公、配套商业、城市会客厅等多种城市功能。为有效解决同一地块不同空间项目产权问题,苏州南站创新性采取了土地分层确权的方式,通过三维立体建模技术,对不同产权单位的空间进行了精确的划分,明确了各自的土地使用权范围和界限,为后续的建设施工、运营管理和权益分配提供了法律依据和保障。
水乡人文特色门户形象
以人为本,连接自然与科技,包容传统与未来。苏州南站以简洁、现代的整体设计,融合苏州江南水乡的设计元素,描绘出振奋人心的示范区枢纽门户形象。苏州南站以《长三角生态绿色一体化发展示范区国土空间总体规划(2021—2035年)》为原则,控制建筑形态,形成与水乡古镇“小尺度、低高度、中密度”风貌相协调的空间尺度,从而塑造江南韵和现代风交织共鸣的整体环境。基于对规划、交通、功能、空间布局等方面的综合考虑,整体造型充分尊重场地水乡本底,融合水乡及园林设计元素,营造枢纽在地特征。建筑设计融合传统建筑与园林的理念与手法,提炼江南建筑的性格与特征,提取“因地制宜”的苏州园林设计哲学,以“六合归芯”为主体设计概念,营造理性的空间与体验感,建构生态绿色建筑、探寻人文环境。站房的非对称立面形象打破了传统站房中轴对称的常规设计,增强了站房的视觉形象和个性,提高辨识度,为旅客带来愉悦舒适的出行体验,联结起传统的江南风貌与现代的高铁客站。
随着铁路的快速发展和城市化进程的加快,站城融合发展理念已成为推动城市现代化和可持续发展的重要策略。在这一背景下,苏州南站枢纽的落成,引领了中国“站城融合发展”的新探索,其将成为苏州的城市对外窗口,同时作为长三角示范区最主要的枢纽门户,有效促进长三角生态绿色一体化发展示范区建设发展。
项目图纸
△功能示意图
△分析图
△总平面图
△地下二层平面图
△地下一层平面图
△平面图
△二层平面图
△三层平面图
△剖面图
△剖面图
项目信息
建筑师:筑境设计
面积:72000m²
项目年份:2024
摄影师:AOGVISION
厂家: Changxing Qibin Energy Saving Glass Co., Ltd.,FACEBOND,Guangdong Golden Curtain Building Materials Co., Ltd,Guangzhou Compton Zhigao Building Materials Co., Ltd,Hebei Zhengbangyuan Aluminum Co., Ltd,Qilu Paint Industry Co., Ltd,Shandong hukouyuan New Material Technology Co., Ltd,zhejiangTransfar Paint Co., Ltd
主创建筑师:于晨
设计团队:郭磊,江畅,陈立国,黄丰明,杜刚勇,霍旭,赵明禕,方炀,刘辉,吴红,刘晶晶,夏琦红,王秀秀,李倩,孙能斌,徐明,王梦瑶,李荣棋,刘著名,汤直矗,马天乐,王雨鑫,温惠子,马也,顾晨曦,王梦琳,岳霆钰(实习),周振阳,王慧坊,徐逸聪
结构团队:杨旭晨,朱伟,赵友清,丁汉杰,吕岩
暖通团队:于坤,尹畅昱,黄悦,阮荣强,汪琦
电气团队:李鹏展,唐霖
给排水团队:纪殿格,沈丹群,章海波,葛耀耀,陈思楠,杜维菲
委托方:中国铁路上海局集团有限公司上海铁路枢纽工程建设指挥部、长三角投资发展(江苏)有限公司
配套工程联合体单位:华设设计集团
基坑支护:苏州立诚建筑设计院有限公司
工程经济:中国联合工程有限公司
幕墙设计:筑境幕墙
内装设计:北京市建筑设计研究院有限公司
标识设计:涌翰标识
照明设计:盖乐照明,麦索照明
地点:苏州

BIM建筑网


































评论前必须登录!
注册