
这座房子位于智利南部雨林中的科利科湖畔。这里冬季漫长且多雨,而夏季则短暂温暖。房子坐落在陡峭的南岸湖岸上,对于南半球来说,这是理想的朝向,因为阳光和视野在这里交汇。土地坡度达到 40%,土壤由厚厚的植被层和冲积填充物构成。


客户提出的两个主要要求是:1) 设计一座高架房屋,使其与潮湿的土壤隔离。鉴于土壤承载力低,这一要求自然得以满足。2) 避免使用雨水槽以减少维护,并考虑设置宽大的屋檐以保护窗户免受雨水侵袭。


由于地基承载力低、土地坡度大,以及客户要求建造高架房屋,设计团队提议建造一座四层房屋。更准确地说,是四个半层,它们以流畅的方式融合了房屋内的生活。这种融合,有时是视觉上的,有时是步行可达的,旨在构建家庭生活的连续性。另一方面,四个半层也有助于分隔需要保持一定距离的空间。



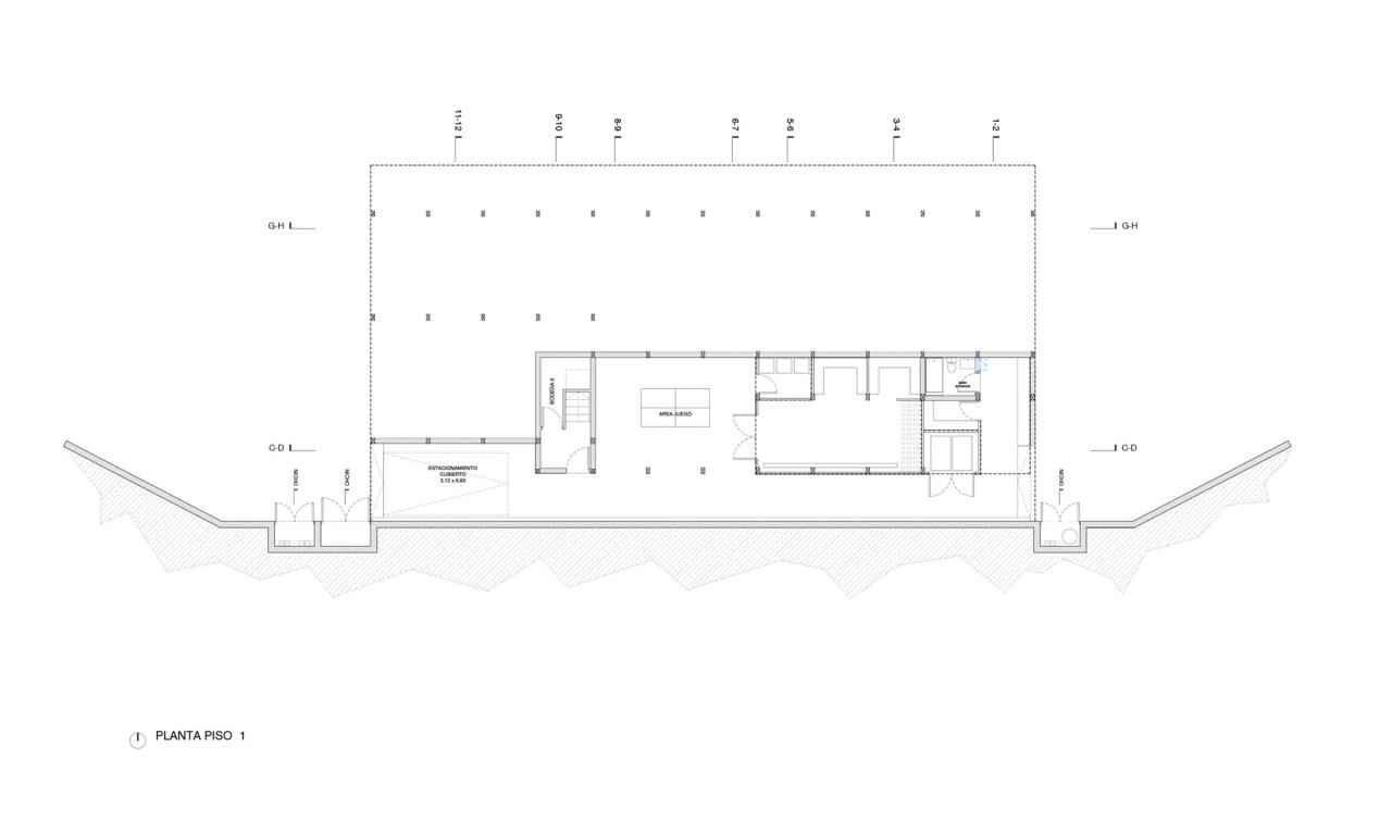
这四个半层分别是:“地”层,即自然土壤与房屋高架地板之间的空间。这一层有足够的厚度,可容纳遮蔽的户外活动,如游乐区、遮蔽式停车场和储藏室。
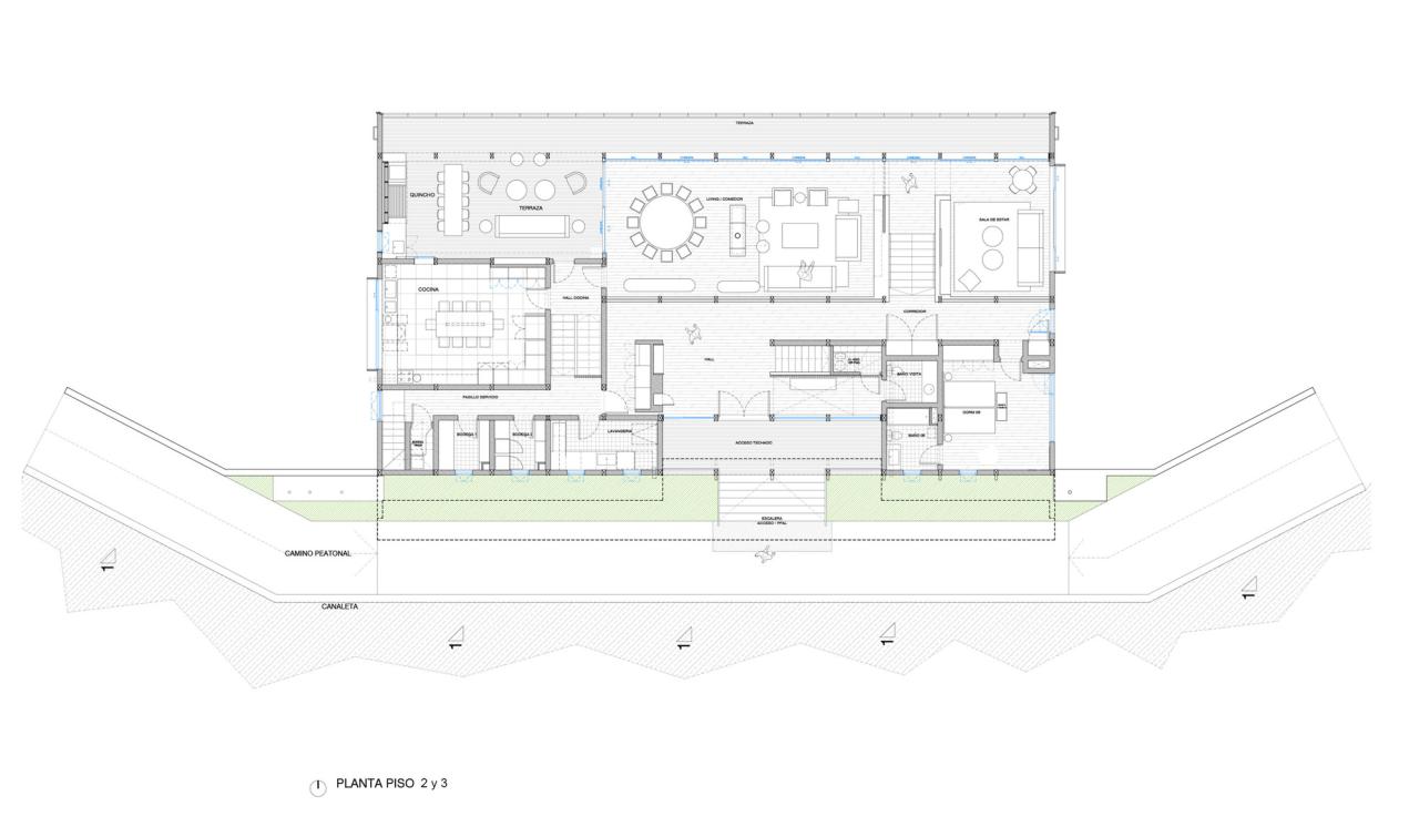
然后,在半个楼层之上,是“火”层,这里设有家庭聚会的空间,如客厅、餐厅、游戏室、厨房和烧烤区。这一层享有极佳的北向视野和一体化空间。


接着,再往上半个楼层,是“中”层,这里整合了入口大厅、会客区和服务区。这一层的部分空间在视觉上融入集体空间,悬挑而出,并可欣赏湖景。


最后,上层是“梦”层,对应的是家庭卧室,面向北方和远方。
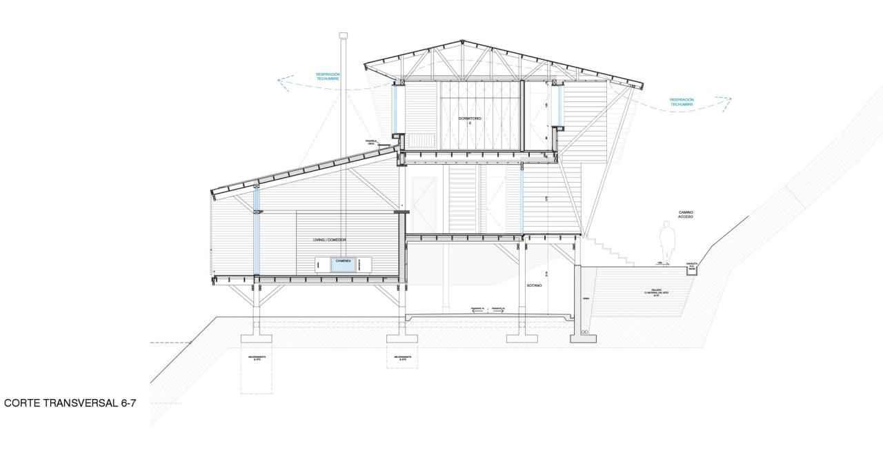
在结构上,房屋依靠一条线性挡土墙支撑在山坡上,高架支柱深入自然土壤 3 米。从 0 层往上,房屋完全采用胶合木柱和梁框架结构。


在立面层面,重点在于通过立面覆层的不同处理来分解体量,使得这座 11 米高的房子看起来不像一座建筑。





项目图纸

△一层平面图

△二三层平面图

△四层平面图

△屋顶平面图

△剖面图

△剖面图

△剖面图

△剖面图

△剖面图

△剖面图

△剖面图

△剖面图

△剖面图

△剖面图

△立面图

△立面图

△细部结构大样图
项目信息
建筑师:Schwember García-Huidobro Arquitectos
项目年份:2022 年
摄影师:Nicolás Sánchez
厂家: Alfuego,Ingelam,Volcan
主持建筑师:Fernando García-Huidobro, Álvaro Schwember
设计团队:Fernando García-Huidobro, Álvaro Schwember, Facundo Forchino, Catalina Bórquez
结构设计:Patricio Bertholet / Patricio Bertholet Engineering
灯光设计:Fernando García-Huidobro / Schwember García-Huidobro Architects
室内设计:Francisca Varela / FVM decoración
项目管理:Fernando García-Huidobro / Schwember García-Huidobro Architects
项目功能:Vivienda
地点:智利,昆科

BIM建筑网





评论前必须登录!
注册