
湘南工科高中图书馆大楼的规划是为了应对原有图书馆建筑老化的问题。建筑师提议将图书馆与部分老化的教学楼进行合并。新设计中建筑形态大致为30米x26米的五边形平面。这是一座三层建筑,最高处约14米,楼层高度从一楼开始依次为3.5米、4.5米和5.5米,越往上层高越大。


起初,建筑师考虑过根据教室和图书馆的不同功能进行区域划分,但最终决定每层都设置一个教室和一个图书馆,因为建筑师相信不同功能的融合能够激发学生的潜力。教室采用了开放式学校的设计风格,结构中的承重墙(RC墙)在每一层的布局、尺寸和形状都不尽相同,且上层的墙体跨越了下层的两堵不同墙体,这样上层的荷载就能均匀地传递到下层。这种随机的墙体结构营造出了一种类似巢穴的建筑形态,其中各种空间松散相连,高中生可以在这里进行多种多样的活动。



在设计将教室与图书馆融为一体的新型学校建筑时,建筑师摒弃了用于管理学生的传统封闭式教室,而是构想了一个图书馆与教室能够相互启发、促进自主发现、学习和建立关系的环境。首先拆除矩形教室的墙壁,与外部空间建立联系。通过最大限度地减少室内外的界限,使建筑对外部环境更加敏感,创造了一个更加流动的空间,从而使整个校园充满活力。



摆脱了传统教室规划中整齐划一的方向性布局,墙壁的排列变得更加随机。在这个开敞的环境中,墙壁轻柔地环绕着教室,使用者可以自由地形成自己的空间,创造出一种类似巢穴的布局。










项目图纸

△一层平面图

△二层、三层平面图

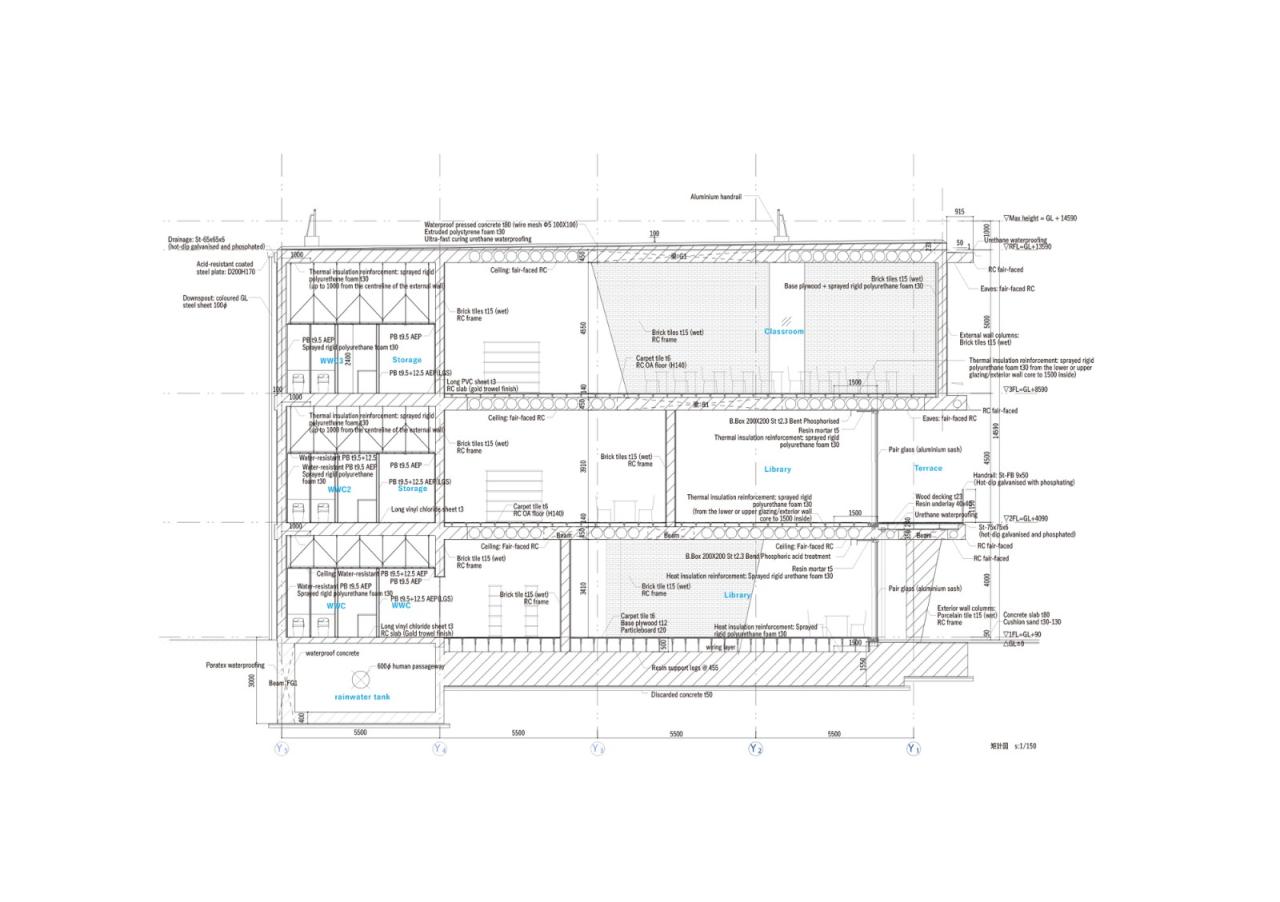
△剖面图
项目信息
建筑师:Fukei Co.,kousou
面积:1419m²
项目年份:2023
摄影师:Shigeo Ogawa
主持建筑师:Yoshiyuki Kawazoe
设计团队:Midori Oshima, Daisuke Komatsu
建筑师:Yoshiyuki Kawazoe, Midori Oshima , Daisuke Komatsu
建筑事务所:Fukei
地点:日本,神奈川县

BIM建筑网





评论前必须登录!
注册