
眼石汤泉位于京北燕山支脉雾灵山脚的一处斜坡之上,西侧毗邻山崖,东侧接壤河谷冲积平原。场地坐落在自然景观和居住区的交界处,四周被茂密的杨树林包裹,地表生长着芦苇与杂草,滚石散落其间,一条蜿蜒的小溪自北向南流淌。树林外缘不远处是阿那亚新建的度假社区,从高处望,连绵起伏的群山在云雾中时隐时现。人们从社区前往汤泉,需借道林中小径,穿过杨树林进入一片开阔地,近乎垂直的崖壁赫然出现在前方,仿佛步入了一个“秘境”。



为了减少体量对周围树木和原始地貌的干扰,设计团队将建筑主体底层架空。混凝土骨架作为承重结构,通过立柱与土地相接,宛如一座被轻置于山坡之上的“温泉仪器”。暴露在外的混凝土“粗粮细做”,采用深凿毛工艺处理,呈现出岩石般的抽象质感,以回应场近处崖壁的地貌特征。



建筑高 23 米,顶部设有八个细长的圆柱形光筒引入自然光,向下弥散,塑造了幽暗的汤池空间氛围。从社区远观,建筑仿佛隔空降落,隐匿于山林之间,又持有一种独立秩序的姿态,形成一种与自然并置的“对话”。汤泉空间由两部分构成:西侧为垂直布局的功能区,东侧为竖向交通、服务核,两者通过透明的水平走廊相连。垂直展开的空间布局能够尽量减少建筑的基底面积,同时得以充分利用空间高度的变化,实现人们与杨树、崖壁和远山等多维度的视线联结,建立起对自然的丰富感知,营造出蒙太奇般的层间场景转换。



汤泉首层的空间中央是一座 5 米高的柚木“盒子”,作为集接待、沐浴、理容等功能于一体的更衣区。两排高侧窗位于走道上方,在引入自然光和通风的同时保证了空间的私密性。二层为休息室,高度位置与杨树树冠中部平齐,四面被落地玻璃围合,自然景观笼罩室内。当上方悬窗开启,微风在这里穿过,休息厅成为一个漂浮于林间的“凉亭”。天花下方悬挂着八个由混凝土浇筑而成的圆盘吊灯,在夜里,光线通过天花的反射晕开,圆盘的形态也暗示着建筑顶部光筒的存在。




泡汤功能分布于第三层,藏于光筒下的汤池被弧形墙体包裹,包括了不同温度的泡池、冰桶区、淋浴区、挂衣区和饮水处。底部空间幽暗、静谧,天光通过凿毛后的混凝土内壁变得更加柔和,微微照亮至下方的水面,波光反射在弧墙和天花上,光、水、雾在此动态交织,相得益彰。泡汤时,透过西侧的条形长窗,视野可以延展至深谷、崖壁,以及将建筑层层包围的杨树林。作为社区中的公共设施,眼石汤泉创造了一种带有神秘感的空间知觉 —— 某种跳脱日常生活的独特感受。建筑作为媒介,在一定程度上赋予了生活更多元的身心体验,成为连接访客、居民、社区与自然的纽带。


















项目图纸

△草图

△草图

△草图

△模型图

△模型图

△总平面图

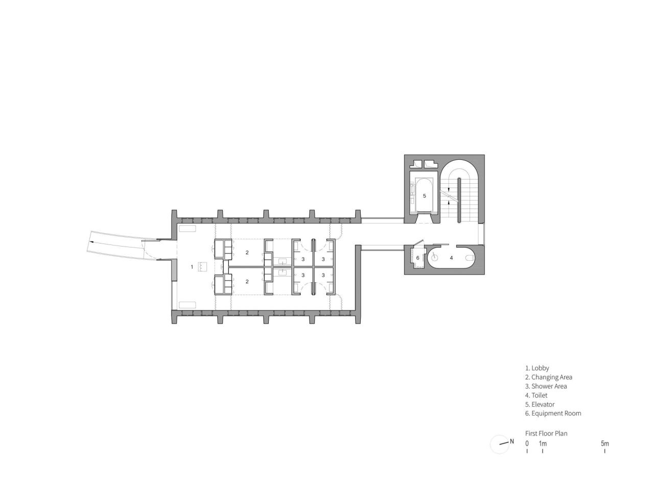
△一层平面图

△二层平面图

△三层平面图

△剖面图

△剖面图
项目信息
建筑师:直向建筑
面积:560m²
项目年份:2024 年
摄影师:刘国威,田方方
主持建筑师:董功
项目建筑师:赵亮亮,谭业千
设计管理:张菡
施工管理:赵亮亮,李锦腾
驻场建筑师:谭业千,张志逸(实习),王维琛(实习)
项目成员:李嘉慧,孙颖艺,曾子豪,王飞宇,张力文
合作设计院项目建筑师:肖尊石
合作设计院建筑师:陈太安
结构设计:程俊,杨雨薇,彭礼
机电设计:史新凯,徐定定,张杰
委托方:承德阿那亚房地产开发有限公司
施工方:承德宏盛建筑安装有限公司,北京万丹绘建筑装饰工程有限公司
灯光设计:栋梁国际照明设计
幕墙顾问:阿法建筑设计咨询(上海)有限公司
景观设计:上海翰祥景观设计咨询有限公司
合作设计院:上海都市建筑设计有限公司
家具设计:吱音
标识设计:北京偲迪文化传媒有限公司, 北京图石空间创意设计有限公司
地点:承德市

BIM建筑网





评论前必须登录!
注册