
本项目为何家村老年之家。何家村地处杭州西南,位于龙坞茶山间的峡谷区域。村民主要以茶叶种植制作为业。老年之家是为村里老年人提供休闲娱乐、健康服务的小型公共空间。项目场地原为村民住宅用地,位于密集民宅群中。北临村庄次干道,东、南两侧毗邻村民住宅,西侧小路联通次干道与村庄主道。与原生态农村相比,何家村的空间环境不提供乡土建筑的符号化形象,也缺乏特色的建构传统与建造工艺。如何在面目模糊的乡村空间环境中,识别出表征环境特点的空间实相成为该项目主要的设计难点与突破口。


农村住宅作为场地周边主要建筑类型,是设计研究的主要落脚点。设计希望通过对农村住宅组成、元素、空间等要素的沿用、转译与重构,实现乡村性表达与公共性塑造,也为老年人塑造出回“家”感受。



沿用:村民生活的空间呈现场地周边的沿街村宅多具有“低层辅房+多层主楼”空间组合特征。辅房为村民生产生活方式的产物,主要功能为茶叶的储藏、加工、销售;在经济方式发生变化的今天,部分也演化做休憩、会客等多功能空间。



设计沿用“辅房+主楼”形态组合,将原先与主体住宅并置的辅房空间嵌入到主体建筑靠街侧,延续街道界面,化解紧张的道路关系,形成过渡式半公共空间。辅房形象取用独立的圆柱支撑在延伸向街道的薄板与座椅围合成的基础之间,在玻璃移门完全打开时,呈现为公共的亭台与聚场,构成往来行人与老人停留聚集的日常背景。



雕塑:在地元素的提取重组老年之家的主体形象则是来自于对在地元素的提取重组。以坚实建筑墙体与厚重坡屋顶的组合成的正面形象,为来访的村民塑造出常规村宅的熟悉感,而自转角位置墙体倾斜而下,与屋顶脱开,则强化出街道转角动势,也为二层空间向南打开巨大的隙口,创造出超越住宅尺度的雕塑性和体量感。挑出的坡屋顶取用茶叶的轻盈形态,自街角向邻宅倾斜,形成柔和的场地覆盖。底层的基座、转角处的长窗、微弧的正立面等形式,均来自对村宅处理建筑尺度、地形关系手法的拟仿,试图以质朴的方式,在公共建筑的完整形象与乡村住宅的日常尺度间捕捉到微妙的平衡感。



变形:农宅空间的展开与变奏农村住宅的内部往往以“走廊-房间”为结构,形成自外向内、自下而上的私密感递增序列。而设计试图通过对此序列的借用与变形,形成熟悉而陌生的公共之家。一层自外而内的弧面-斜面-直墙三界面,以洞口相连,形成打开-半打开-封闭的三个“房间”序列,为老人的饭后相遇、观影聚会、棋牌娱乐塑造出私密性递增的功能空间序列。楼梯自一层转角处转折向上,经由洞口导向高耸明亮的二层空间。在二层,健康中心与儿童活动室通过连桥相连,与一层自通高处形成实现视觉互动,营造出“同一屋檐下”的开放感受。室内整体以白墙与浅色橡木为基底,通过体块感暖色界面进行空间包裹,为使用者创造居家般的温馨氛围。


总结:突破符号化与类型化的乡建尝试项目试图突破符号化、类型化的乡建设计框架,通过识别、提取、重构真实的当地建筑现实,给逐渐丧失特点的乡村环境带来陌生却熟悉的面孔,为何家村老人创造出新鲜却亲切的“家”。












项目图纸

△场地建筑类型研究

△模型图

△模型图

△总平面图

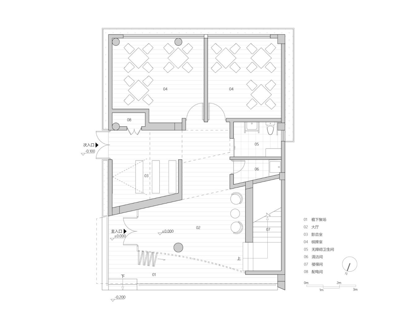
△一层平面图

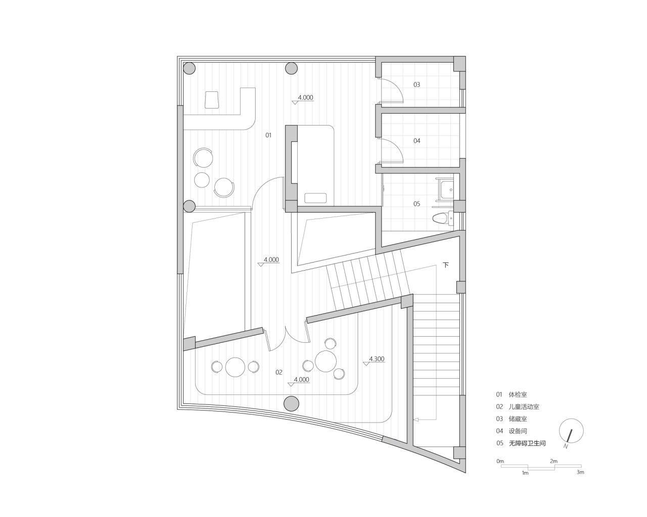
△二层平面图

△立面图

△立面图

△立面图

△立面图

△剖面图

△剖面图

△分析图
项目信息
建筑师:由牧建筑
面积:230m²
项目年份:2024
摄影师:ArchNango,由牧建筑
厂家: Bunny Baby,Hisaishi,Nippon
主创设计师:林剑博、杨嘉桐、钱盛宇
施工图设计:方韵平、万林海、姚超超、朱笑生、金畅、王鹏涛
项目统筹:董莳
委托方:浙江省杭州市转塘街道西湖区何家村村委
地点:杭州

BIM建筑网





评论前必须登录!
注册