
2017 年,MORFEUS arkitekter 受客户 Astri 和 Henrik Botten Taubøl l之托,为其最近继承的位于奥斯陆 Sorbyhaugen 24 号的房产设计新居。尽管原房状况不佳,但客户还是共同决定重建、改造并扩建这座 1933 年的老宅。最终成果是一座当代风格独特、兼具当地历史底蕴的建筑杰作。该房产位于奥斯陆的乌勒恩区,坐落在一道向西倾斜至小溪 “Makrellbekken” 的山脊上。地形西高东低,落差约 30 米,四周高大的松树环绕,西南方向可俯瞰奥斯陆峡湾的壮丽景色。


房产中的原住宅建于 1933 年,曾是客户祖母的居所。这一街区典型的住宅是早期的功能主义木质别墅。而位于 Sorbyhaugen 24 号的这座原住宅并无特别的保护价值。因此,设计团队重新引入了典型的功能主义细节,以及内外墙的色彩运用,但在建筑表达、细节处理和楼层布局上则加入了更现代的元素。



原住宅的楼层布局走廊空间多,房间分隔且独立。而新住宅的楼层布局则几乎与之相反:围绕着一个由厨房、洗漱间和浴室组成的核心区域,分布着宽敞开放的起居空间。从一楼起居空间上下贯通的开口设计,使不同楼层间的联系更加紧密,也为原本层高仅 2.4 米的住宅增添了新的开放性。





房产位置优越,可远眺奥斯陆峡湾美景,近观高大的松树环绕。原住宅因窗户较小,与周围环境的接触有限,而现在则通过从地板到天花板的落地窗将美景尽收眼底。内外墙的色彩运用主要受功能主义时期的色彩方案和客户祖母多彩人生的启发。该项目实现了高度的可持续再利用。保留了现有的地板梁、烟囱、壁炉和大部分外墙结构,并继续使用。同时,设计团队为其安装了新的门窗,对外墙和屋顶进行了保温处理,以满足当今的能效标准。如今,这座住宅已焕然一新,迎接新一代主人的入住,并有望在未来 90 年里继续传承。









项目图纸

△总平面图

△一层平面图

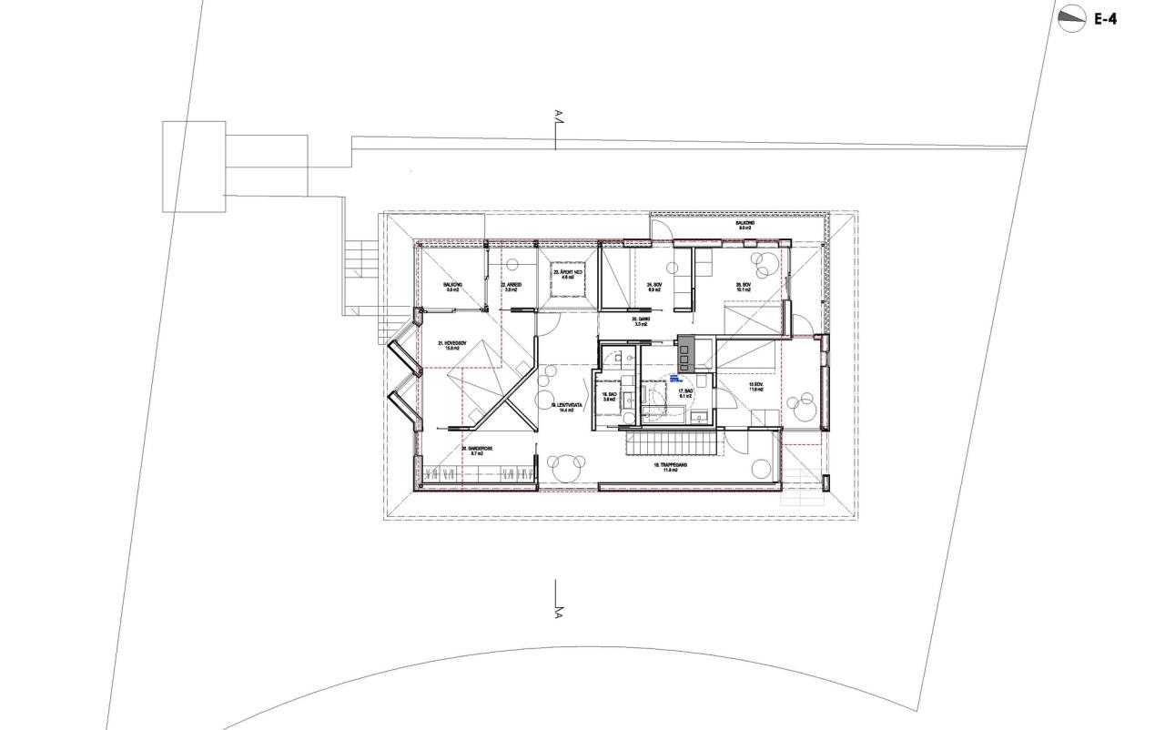
△二层平面图

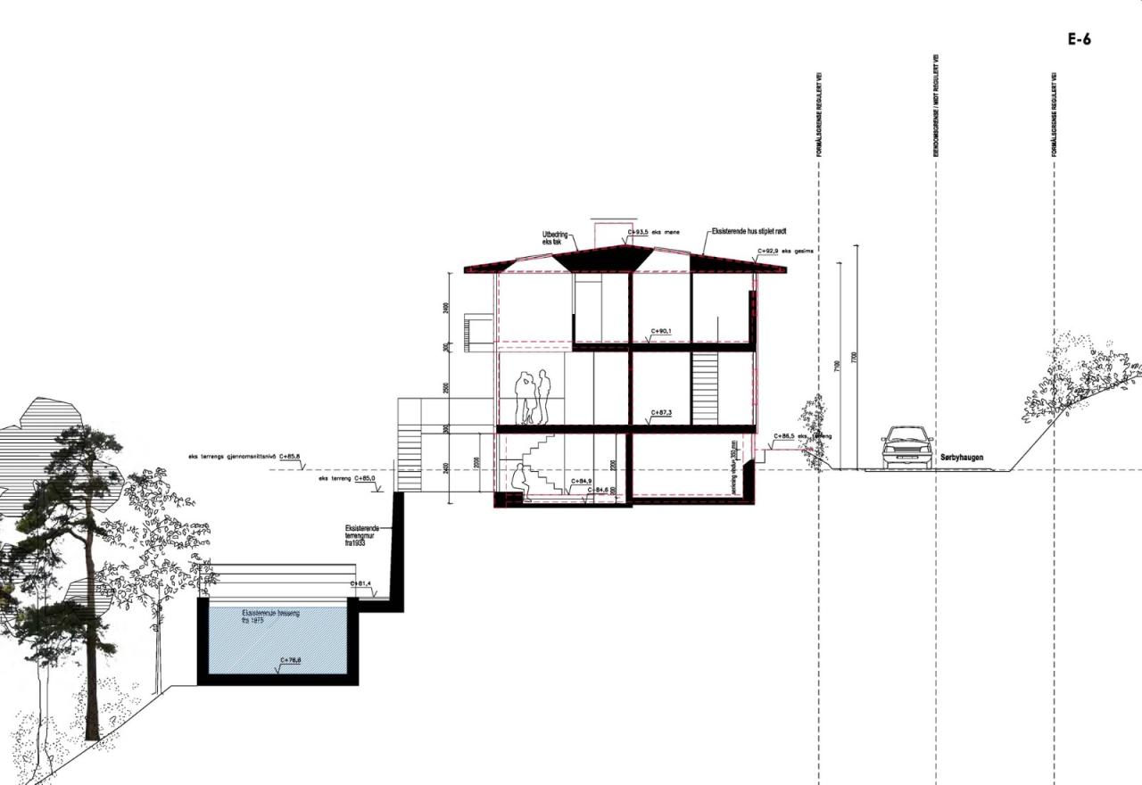
△剖面图
项目信息
建筑师:MORFEUS arkitekter
面积:260m²
项目年份:2022
摄影师:Finn Ståle Feldberg
厂家: FLOS,Svane,Vileroy & Boch,nordvestvinduet
主创建筑师:Caroline Støvring, Cecilie Wille, Matthew Dylan Anderson, Mari Høstmælingen Grennæs
施工团队:Tømrermester Øivind Frivoll AS
地点:挪威,奥斯陆

BIM建筑网





评论前必须登录!
注册