
微风礼堂坐落于上海最重要的纪念性公园——鲁迅公园内。它的前身是鲁迅纪念馆南侧的一片杂树林,被栅栏划归为公园的边角,沦为城市发展的碎片而被人遗忘。2023年,SHISUO是所对这片场地进行重新梳理——散落在场地中的一部分树被移栽到建筑南侧,与纪念馆前原有的一排树构成步道,也为新建筑提供了缓冲的边界;其他树被移栽到场地两翼,形成一大片围合的空地;大型乔木与竹林则被保留,新置入的动线与它们巧妙应和,成为路径转换中的景观,这些调整赋予场地更多的公共性。西侧的世界文豪广场林木荫蔽,城中的老人们在这里聚会谈天、唱歌跳舞,是这里每天的日常,而微风礼堂就坐落在它的旁侧。


设计需要解决两个问题——面对有限的造价预算和施工周期,如何实现高品质的建造;面对周围杂乱的现状,如何塑造地标性的精神建筑并使之与周边环境相协调。



主体建筑由羽翼般的钢结构屋架与地景般的基座组成,屋架悬浮于基座之上。纤细的钢架阵列排开,轻盈通透的同时平衡了用钢量与结构效率。截面仅有100*150mm的工字钢柱支撑起长度42m,跨度15m,高度12m的开放空间,服务于婚礼、活动、展览与集会的需求。屋面材料选用预制穿孔板,单元式的组装保证现场快速施工,其质密多孔的材料提供了不同尺度的视觉感受,乍看简约,细观有物。双层穿孔板也成为内部空间与外部环境之间的过滤器——阴天时沉静,晴天时和煦。屋面的形体在入口处异变为掀起的切口,邀请人们进入。内部空间高耸而阔大,犹如空白画布,容许使用者在后续增添色彩。



低矮的屋檐过滤了对面商业街的嘈杂,只露出水池的倒影与绵延的草地。在这里,气流、光线、鸟鸣穿行而过,杂乱的世俗却被阻隔在外。地景般的基座与场地发生多样的互动,或成为拾级而上的踏步与观景长凳,或成为一道连接建筑与草地的虹桥,又或者变化为亲水平台。



在内部,基座向上耸立并凝固成为一个抽象的房子,让人想起静默无言的碑或塔。它背后峡谷般的楼梯指引人们来到更高处的平台,眺望屋架的框景与光影的变幻;两侧条窗则将光线引入内部,人们在这里回看入口的景象。每日清晨,太阳从它的背后升起,光晕会赋予它神秘而神圣的色彩。



我们有意刻画它神圣的一面,因为神圣空间是为了歌颂平凡日常的诗意时刻。在世俗与神圣的区分与并置之下,人们得以发现生活并不是均质的。哭与笑,失去与得到,世俗与神圣……都是构成一个人的必要部分。这一切存在于每一个人的身体中,而神性总是出现在日常的旁侧。


当从城市道路进入,踏上古朴的条石台阶,穿过一从竹林,碎石在脚下沙沙作响。用手握紧移门,也许会留下些许锈迹。伴随着它的滑动,进入甬道,缓坡逐渐抬升,在这个过程中看不见任何礼堂的痕迹,只有垂落的树影和长长的甬道。阳光经过甬道尽头的切口投射进来,指引你再次进入一片碎石庭院,终于得以凝视隐匿在枝杈背后的立面。再走进它,进入屋檐的阴影之下,随着脚步拾级而上,外部世界的痕迹被进一步剥落…… 脱离的路径经过数次转折,将礼堂的主体空间悬浮于环境之外,在重复不断地“隐与显”后,让抵达的渴望变得绵长。



微风礼堂被视为一个承载城市集体记忆的庇护所,它除了具有震撼、高耸、超尺度的仪式空间,也充满了人体尺度的细节与材料处理——低垂的屋檐有意将雨水引流至水池并收集起来,尽可能少的借助人工补给;双层穿孔板依靠屋架的廓形实现了风拔的效果,屋脊处留出的间隙与水池的蒸发联动,形成了微风流动的局部气候,哪怕在酷热的夏天,也有习习凉风穿行其中;二层平台内,米色灰泥触感温柔,赋予了空间肌肤般的纹理。条窗的扶手转化为圆弧面,更容易与手掌贴合,让人得以更久的停靠;数量充足的插座隐藏在地面与立柱背后,屋脊上的吊点留足荷载,为活动布置提供了多样的可能;视线所及,屋架的受力逻辑被清晰的展现,让建构本身成为刻画空间的细节。



对于细微之处的关怀不止于此——施工时,我们发现会有小动物到此喝水,便说服业主不在水池投放除藻剂。建成后,这里成为公园中众多小动物的水源地,它哺育着诸如鸟类、蜥蜴、流浪猫、狗这样的小小生灵;而在雨夜,礼堂则成为了它们的避难所。从城市到人,从自然到动物,这座建筑张开环抱并滋养所有的生命。至此,在树林、历史纪念馆和商业建筑的环峙之中,一座向城市开放、与周围环境融为一体,呈现出轻盈、通透、仪式感的现代礼堂得以落成。


在开放后的短短半年里,微风礼堂成为了城市公共活动的发生器,承办了一系列具有社会影响力的公共文化活动,如樱花季文化市集(银盐市集YINYAN SPACE)、首届幸福家居展(小红书RED)、国际瑜伽日活动(PURE YOGA)、治愈诗歌展(SOUL APP&上海市精神卫生中心)、罗意威秋冬时装发布会(LOEWE)等。不仅创造了巨大的经济效益,提升了城市空间的品质,也受到了市民的追捧。借助这些公共活动的发生,微风礼堂在社交媒体中收获了超过3000w的阅读量,一举跃升成为上海艺文新地标。我们期待,在不远的未来,这座建筑会为人们创造更多幸福的契机,在时代流转中成为集体记忆不可或缺的一块重要拼图。


建筑总会消失,而意义则指向不朽。在每一天的落日时刻,当太阳穿过林间的枝杈照亮微风礼堂,动人的光影浮动在它持重而恒久的三角形立面上,在那短暂的时刻之间,抚慰着启程归家的人们。神圣与日常,看似完全不同的时空,人的生活总是发生于二者之间,在这之间不断地转换中,我们得以抵达新的崇高。


项目图纸

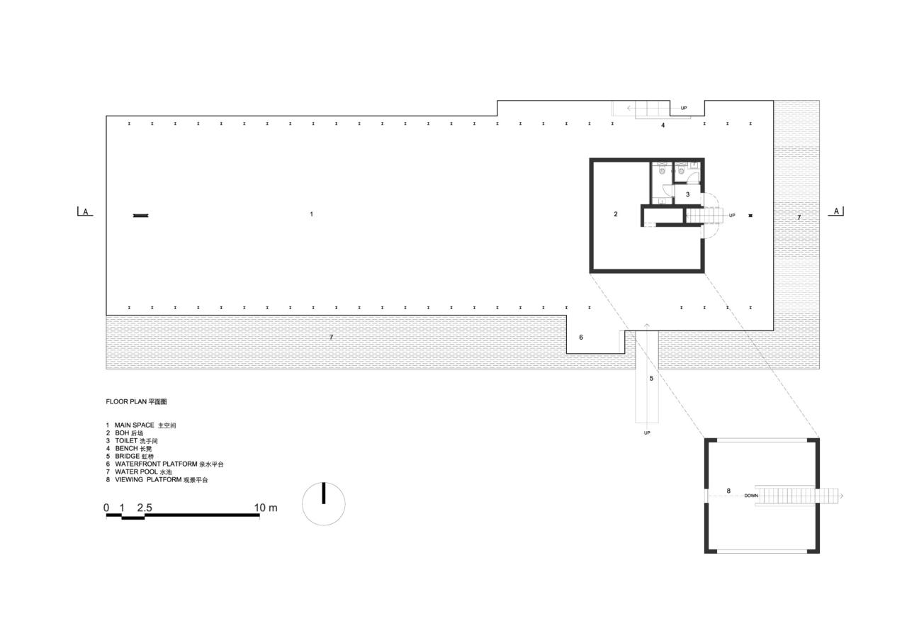
△总平面图

△平面图

△立面图

△立面图
项目信息
建筑师:是所设计
面积:680m²
项目年份:2024
摄影师:朱润资,吕晓斌,DONG建筑影像,撒尼夫,叶建源
厂家: CEMIMAX赛迈发科技,涵氧生态壁材
主持设计师:撒尼夫、长山
设计团队:林子涵、张涵
景观顾问:上海简町景观设计-金寅寅、李梦珠
结构顾问:iStructure-杨笑天、吴琨营
灯光顾问:昇照明设计事务所-洪昇霖、刘婧怡
委托方:长远文化集团
地点:虹口区

BIM建筑网





评论前必须登录!
注册