
泰国开发商MQDC精心打造的六善酒店住宅The Forestias项目首期已圆满竣工。该项目严格遵循The Forestias总体规划的核心理念,其豪华别墅设计灵感源自泰国传统建筑,旨在实现最高标准的可持续性、福祉以及与自然的和谐共生。该项目将由附近的六善酒店The Forestias提供全方位服务,并致力于延续其开创性的健康理念、匠心独运的体验设计以及对当地社区和环境的深切关怀。

Foster + Partners合伙人Sunphol Sorakul表示:“六善酒店住宅The Forestias是我们总体规划边缘的一处私密绿色天堂。它提供了无与伦比的生活体验——住户可以享受到促进身心健康的最优质服务与设施,同时营造出强烈的社区归属感。每栋别墅均经过精心设计,以最大化观赏周围壮观自然景观的视角,并强调使用优质材料打造高度灵活的居住空间,满足全家庭成员的需求。”

别墅居住区采用架空设计,不仅提升了观景效果,改善了住宅的自然通风条件,还在下方空间内设置了停车位和机电设施。别墅首层设有最先进的餐饮与起居空间、祖父母卧室以及一个遮阳庭院,成为家庭团聚的温馨中心。别墅后方露台设有私人无边泳池,仿佛与项目中心的环礁湖融为一体,而大型住宅的后方露台则与森林相连,实现了室内与室外的无缝衔接。别墅上层设有额外的卧室和宽敞的遮阳露台,供住户社交、休闲或练习瑜伽。

别墅采用独特的通风设计,内部配有滑动百叶窗系统,使空气得以在别墅内自由流通,为住户提供了最大的灵活性。起居空间可以打开,形成更大的公共区域,也可以关闭以享受更多私密性。别墅外观经过精心设计,旨在平衡周围景观的观赏效果与住户的隐私保护。首层的木质遮阳屏采用当地竹材制成,上方则配有铝制防雨屏和石材覆层。这些遮阳屏不仅提供了遮阳效果,还柔和地将光线引入起居空间,同时展现出优雅的美学设计,反映了当地文化特色,保持了居住的私密性。一个大型波浪形铝制屋顶(配有木质吊顶)借鉴了自然形态,增强了排水功能,并配备了光伏面板,为别墅提供能源。

住户还将拥有自己的会所,内设私人健康中心和大型无边泳池,与环礁湖相连。会所的网格壳自由跨度木结构打造了一个灵活多变的活动空间,可容纳多种不同的活动。

项目图纸

▲总平面图

▲总平面图

▲架空层平面图

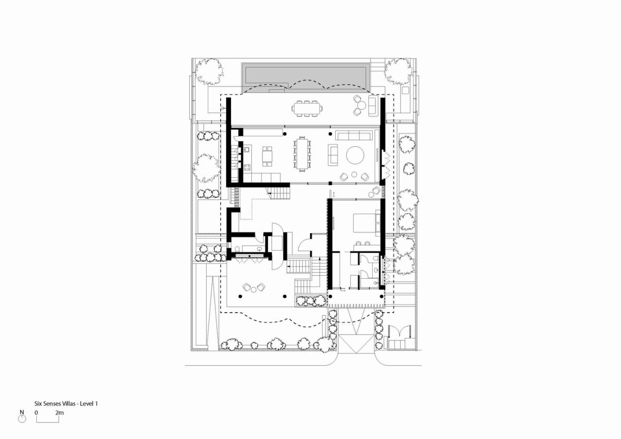
▲一层平面图

▲二层平面图

▲立面图

▲剖面图

BIM建筑网





评论前必须登录!
注册