
在设计中,设计团队不仅考虑户主的舒适性,也回应村落的需求,通过设计小口袋、猫窝、鸟窝和面向街道的窗口,创造了一个开放又私密的环境。尽管贴线要求高,设计团队积极回应公共空间需求,提升了空间利用率,增强了邻里互动,让村民感受到归属感。


设计中的每个细节,如门、砖墙,都传递着户主的生活态度与审美追求,为村庄生活增添了温暖与活力。 在平面设计中,门厅正对院落,客厅与餐厅通过可开合屏风分隔,形成灵活空间。保留老葡萄根,预留种花空间,形成两个功能不同的院落。入户庭院作为半公共空间,围绕苹果树花坛布置座椅,提供等候与玩耍的场地。内院营造出安静、私密的活动场所。



画室设在老房子框架内,保留历史墙体,引入北向天光,提供充足自然采光。主卧设有独立卫生间,结合窗口形成多种功能,确保隐私与便利。客卧和宿舍家具结合不同卧室功能,形成多样的空间使用。 在梁家庄村的建筑项目中,传统与现代融合展现了独特的建造性。施工过程中,采用土办法应对材料采购困难和当地施工水平限制。



墙体设计保留石质基底和红砖墙裙,内侧采用轻钢龙骨与石膏板结构,部分土坯被重复利用,实现现代与传统的和谐共存。设计中运用瓷砖与涂料,旧家具经过改造赋予新生,实现可持续建造,保留的老建筑采取内保温措施,新建部分实施外保温策略,屋顶装配太阳能光伏板,提升可再生能源利用率。 梁家庄的探索是对乡村未来的思考,追求美的同时,让生活变得真实与温暖。在理想与现实之间,寻求和谐共存的可能。



未来的乡村设计应更关注人们真实的生活需求,让建筑成为情感与记忆的承载体,让乡村的每一个角落都感受到生命的交响,找到心灵的归属。















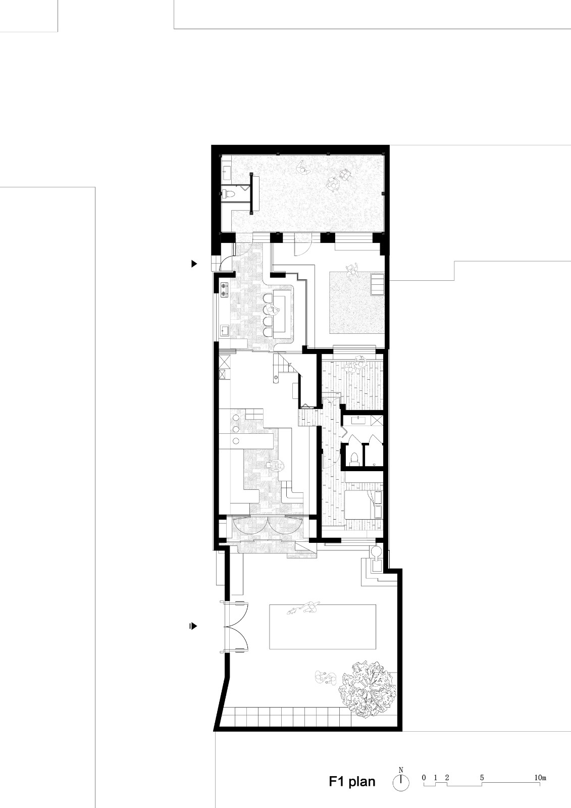
项目图纸

▲一层平面图

▲二层平面图

▲剖面图

▲剖面图
项目信息
建筑师:上海交通大学奥默默工作室
面积:245m²
项目年份:2024 年
摄影师:苏圣亮
厂家: 上海林内有限公司,东鹏瓷砖,北新国际木业有限公司,北新国际木业有限公司,北新国际木业有限公司,四川楚风新能源科技有限公司,四川楚风新能源科技有限公司,恒洁卫浴集团有限公司,恒洁卫浴集团有限公司,法国SFA,法国SFA,法国SFA,派雅门窗,派雅门窗,派雅门窗,立邦中国,青岛易来智能科技股份有限公司,青岛易来智能科技股份有限公司
主创建筑师:张海翱
设计团队:李迪,徐航,潘文琪,杨格,张明蕙,吴昌龙,李依杭,唐玲,花红志
学术指导:于洋
灯光设计:徐天择
软装设计:刘畇妡
驻场设计师:徐羽伦
施工方:中泽荣安(北京)建设有限公司 孙雅茹, 郭井全, 王宗凯
节目合作方:上海东方卫视梦想改造家
地点:太原

BIM建筑网





评论前必须登录!
注册