本案是一个旧厂房更新改造项目。项目位于云南昆明M60文化创意园区,前身为上世纪80年代创立的昆明蓄电池厂。在城市更新的大背景下,老厂区被改造成一个融合了消费与办公的创意园区。原先宽敞的车间被分隔成若干个空间单元,出租给商户和一些小规模企业使用。


▲项目概览 ©张雷
12米高的厂房,保留着最基本的工业建筑元素:粗壮的牛腿柱、纤细的钢架承托着单薄的坡屋顶。上一任业主搬离后,内部被刷白,掩盖了大部分工业线索,留下巨大空间体量。

▲原有的屋顶结构被保留并为室内提供充足采光 ©张雷
业主一直梦想开一间书店,于是找到这个独特的空间,她希望能够让这个空间成为一个可以独处安静阅读,也可以相聚分享交流的文化空间。

▲一层阅览区 ©张永彬

▲二层阅览区 ©张雷

▲室内兼做展陈空间 ©张雷
这样特别的大空间在城市中已经不多见。我们希望新的改造方案能够尽可能多地保留住厂房原有的特征,同时还满足书架陈列、会议洽谈、餐饮聚会、休闲阅读等功能。

▲一层水吧台及就餐区 ©张雷

▲二层洽谈打卡区 ©张雷
我们用厂房的一整面墙设计了一个“巨幅书架“,使之成为空间中最核心的视觉重点。并且用心设计了空间中的交通步道,穿梭在各层书架和空间中各个功能区域。让使用者可以在厂房中与书墙之间漫游,充分的感受旧厂房空间独特的空间与光线氛围。

▲设计概念分析 ©素造建筑


▲连接书墙及各空间的交通 ©张雷
这个项目中,交通流线是设计中重要的一部分。首先,厂房的空间位于园区内两条平行道路之间用地的中后部,两条路之间并没有链接的通道,我们希望该空间能够开放成为链接两条园区道路的“过道“,激活园区区域互动的同时,也希望更多的客人可以进入到项目的空间内部。


▲东西向的空间被打通 ©张雷
其次,在利用空间中最高耸的墙面设计了一个通高的书架墙,并在书墙前设计了4层通道,能让人轻松的拿到书本,随着逐步登高接触高更高层书籍的同时也逐步接触到厂房中更高的空间,可以逐步俯瞰整空间内部。最后,与各层书架通道联系的交通将客人引导到我们新布置在厂房内部不同标高处的休憩空间。

▲交通分析 ©素造建筑


▲联系各层书架间的交通 ©张雷
设计中,我们希望新植入的空间不要破坏旧厂房的层高高空间,保留下原有的建筑构件与结构构件。同时,新置入的空间能够与老建筑产生积极的化学反应,成为两套相互独立,又彼此共生的新空间。

▲厂房另一侧的阶梯 ©张雷


▲连接二、三层的阶梯 ©张雷

▲连接二、三层的阶梯 ©张雷

▲三层洽谈空间 ©张雷
城市化进程放缓的今天,老建筑的改造更新逐渐成为越来越重要的设计议题。我们需要将其改造成为满足当下商业需求新空间,更重要的是,对于有历史特征的空间来说,如何尽可能保留它原有的建筑特征,讲好建筑物本身的历史故事,也是我们设计中至关重要的思考。

▲室内空间 ©张雷

▲室内空间 ©张永彬

▲西立面 ©张雷

▲东立面 ©张雷

▲东立面开窗 ©张永彬
项目图纸

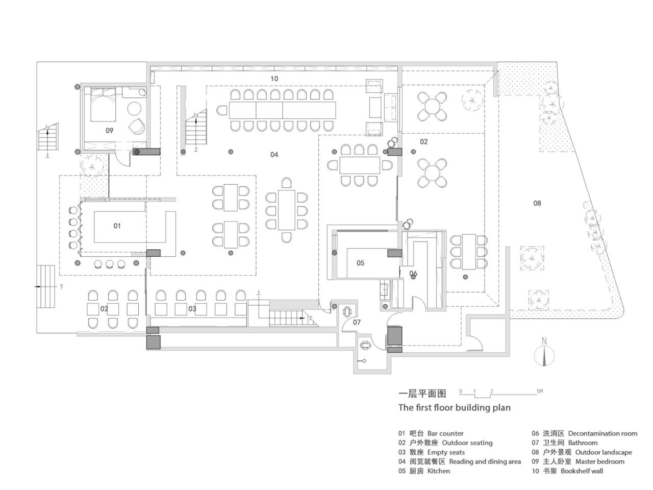
▲一层建筑平面 ©素造建筑

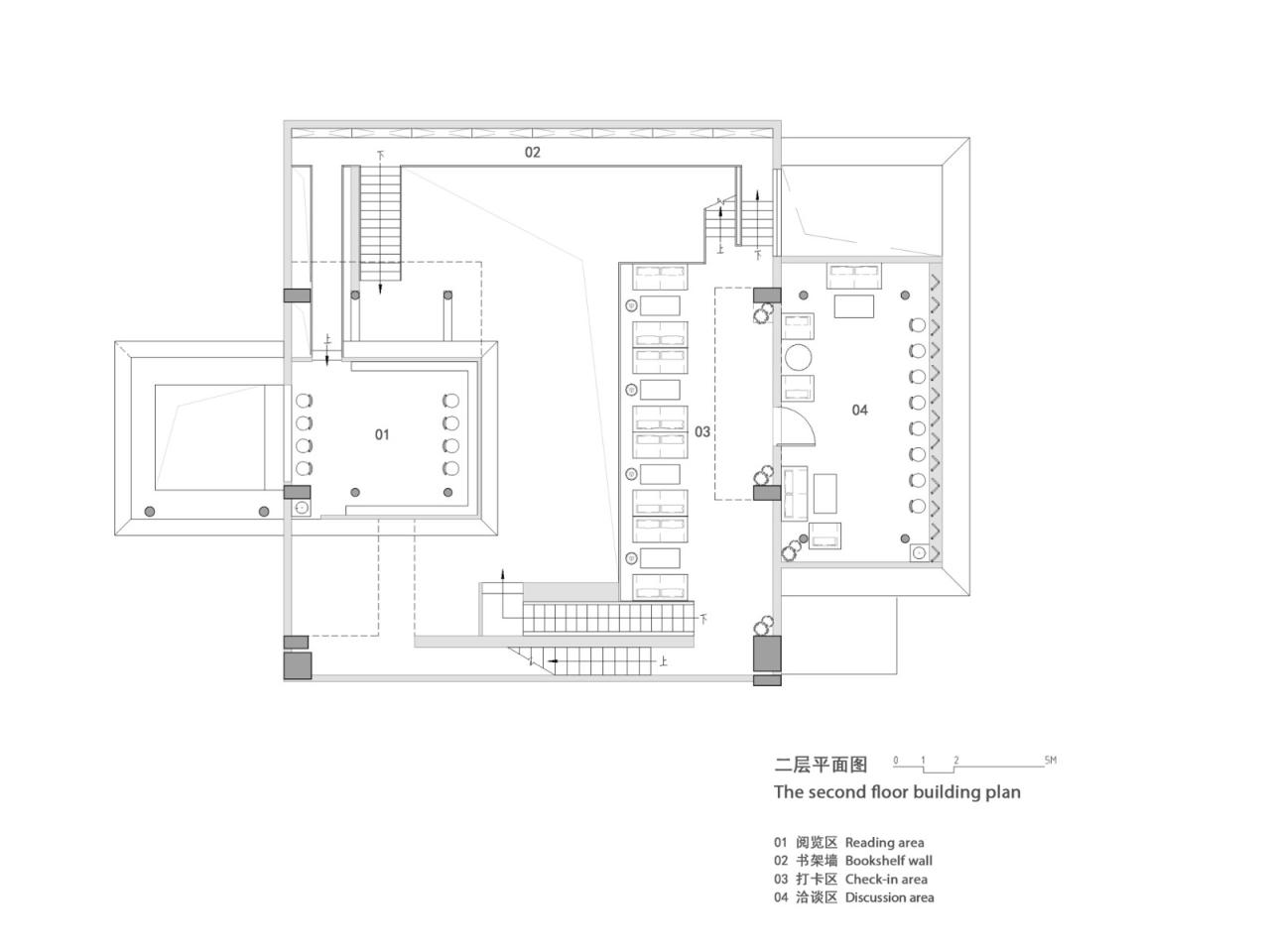
▲二层建筑平面 ©素造建筑

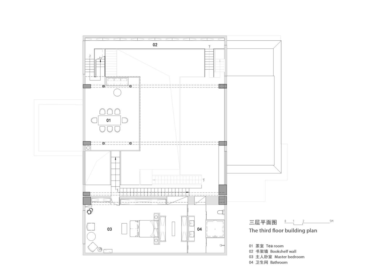
▲三层建筑平面 ©素造建筑

▲建筑西立面 ©素造建筑

▲建筑东立面 ©素造建筑
项目信息
项目名称:接梯空间:旧厂房,新书咖
设计方:素造建筑
项目设计 & 完成年份:2023年9月&2024年5月
主创及设计团队
主持建筑师:董文、杜杰
项目建筑师:尹晓文
项目团队成员:郭旌、赵胜超、管宇燕、李睿杰、周凌、秦鸣巍(实习)、王慧涵(实习)、杨涵(实习)
项目地址:云南省昆明市五华区 普吉路M60文化创意园内
建筑面积:500㎡
摄影版权:张雷、张永彬

BIM建筑网





评论前必须登录!
注册