
树木长到我的窗前,如沉默大地的渴望之声。——泰戈尔《飞鸟集》
南溪欢乐田园野趣酒店树屋位于宜宾市南溪区。对设计机构来说这个树屋是树屋产品的2.0版,其1.0版是2019年建成的杭州开元森泊度假酒店树屋。湘湖树屋在文旅市场获得了热烈的反响,在短时间内便回收建设成本并持续盈利。它也获得了国内外媒体的关注与报道,成为广告拍摄与网络传播的取景地,美国著名艺术类网站My Modern Met主动撰文向全世界热情推荐了这个文旅产品。

△湖畔树屋 ©三棱镜
其后受宜宾南溪业主方的邀请,WH studio承担了树屋新产品的设计任务。在业主的支持下,工作室进行了树屋2.0版的全新探索。1.0版本突出与自然元素的融合,取自原始的“巣居”意象;2.0版更强调抽象的有机与空中悬浮的状态,特别从“树叶的结构”中获得了启发。

△几簇叶片 ©三棱镜
植物的叶片可能是地球上最普遍的生物样貌,作为有机体覆盖了最大的地表。从结构角度看,几乎所有的叶片(除了浮游植物)都是悬挑结构,需要解决的矛盾是,更大的悬挑既带来更多的受光量,也带来了风雨中更大的脆弱性。在漫长进化过程中,植物叶片发展出了多种叶脉,在提供养分的同时作为叶片的结构支持。叶脉在植物学上可划分为三大类型:叉状脉、网状脉和平行脉。平行脉多见于细长的叶片如竹叶;网状脉由主脉和次脉构成多级结构,是比较多见的类型;叉状脉是叶脉从叶基生出后,呈均匀的叉状分枝。其中叉状脉是古老的类型,在种子植物中已很少见,最典型代表的是银杏。

△植物叶片的主要类型(根据网络资料整理)

△银杏叶的叶脉与结构 (图片来源:视觉中国)
在设计者的眼中,银杏树叶有一种“古典的优雅”。作为现存最古老的树种之一,银杏被誉为“植物界的活化石”,其形态已经维持了1亿年以上,经历了无数沧海桑田和生物大灭绝事件而顽强存活下来。银杏的叶片呈扇形,叶脉结构简洁清晰,比例匀称,实现了承接阳光雨露与抵抗狂风骤雨之间的完美平衡。

△林中的晨曦 ©三棱镜

△立体的簇群 ©三棱镜
南溪树屋的基本单元以银杏叶为原型,结构形式类似叉状脉,由根脉出发向外均匀分散,承托起扇形的平面。与植物叶片上下之间适当错开以获得更大受光量类似,树屋在不同高度设置了错落有致的客房单元,大致朝向主要景观面但角度各不相同。各单元的结构和空间相互独立,既呈现自然有机的状态,也避免了大悬挑钢结构的微小颤动带来干扰。

△树屋单元结构示意图 ©WH studio
就像树干扎根于大地而枝叶伸向苍穹,树屋整体以三根钢柱和主梁构成主体框架,形成稳定的三角形结构,承载了整幢楼的大部分荷载;叶脉状的一丛结构柱对悬挑底板起到了重要的支撑作用,它的扇形底面与屋顶的扇形斜面、以及二者之间的小尺寸钢柱(包括窗框)共同形成了悬浮的结构单元。

△整体轴测图 ©WH studio
客房单元的扇形平面与树屋的观景需求十分契合,内部空间构成简洁明快。靠内侧的部分适合卫浴空间的私密性和尺度感,一道独立的直墙分隔了入口空间与居住空间,并构成了环形流线,外侧长约12米的弧形阳台提供了无比开阔的观景视野。


△空中住居 ©三棱镜
树叶是轻盈的,也是坚韧的,纤细的弧形柱与大尺度的悬挑营造出轻松的漂浮感。尽管建筑本身没有直接使用具体的树木元素,仍然带给居住者“栖身枝头、浮游苍穹”的自然氛围。


△栖身于枝头 ©三棱镜
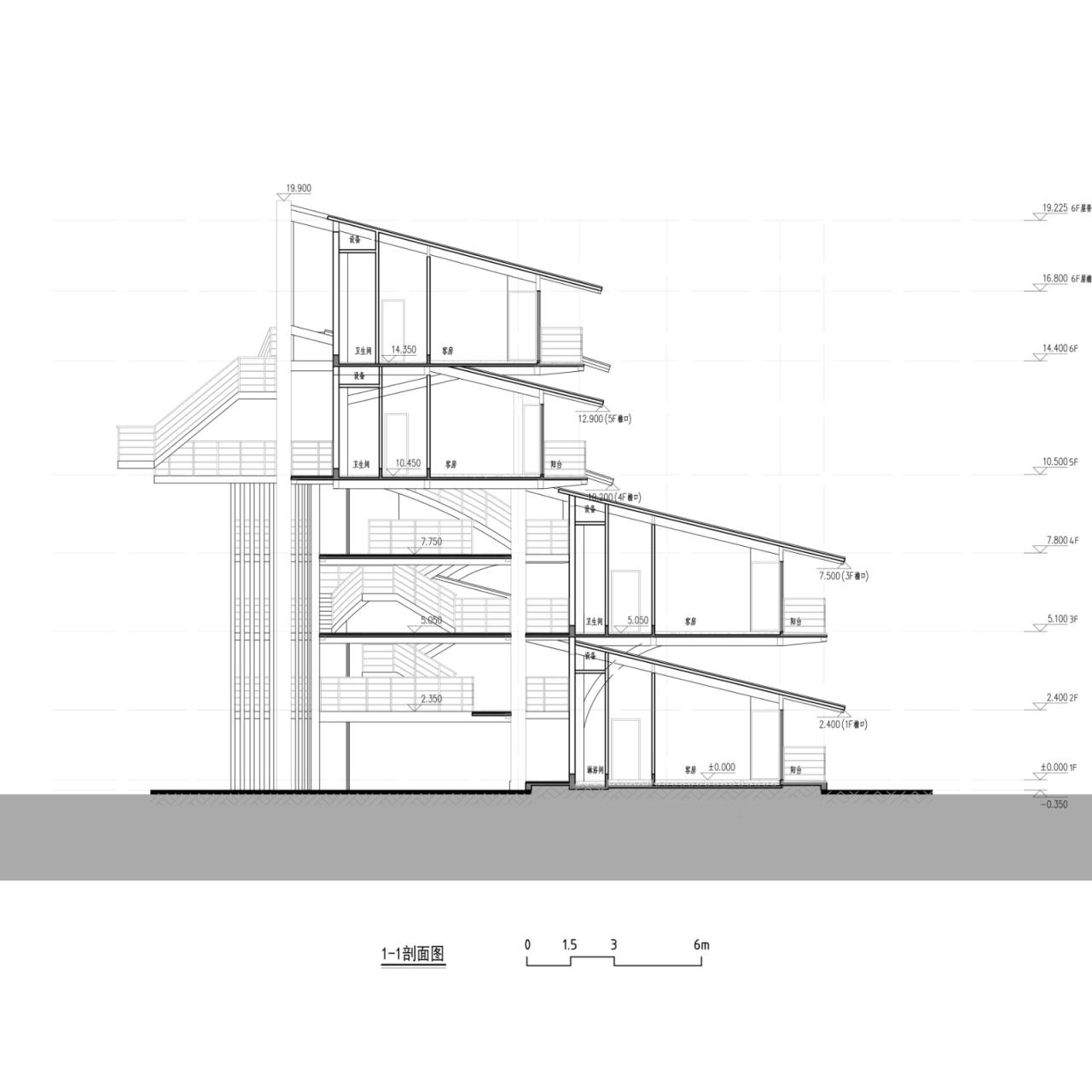
建成的三幢建筑每幢包含六个客房,各自位于不同的标高,最高处的楼面标高为14.4m。图审部门要求每幢树屋必须设置两部疏散楼梯,给形态和空间处理带来了很大的挑战。最终定稿的方案中两部楼梯分别位于主体框架的内部和外侧,提供了一隐一显两种不同的攀登路径。每层的室外平台形态各异,为客房单元提供了室外交流和亲子活动空间。

△外部楼梯与平台 ©三棱镜

△客房内部 ©三棱镜


△暮色中的露台 ©三棱镜
古人云,“我欲乘风归去,又恐琼楼玉宇”,天宫楼阁或许高处不胜寒,而取法自然、既非聚居也非孑然独处的树屋体验可能更为宜人。或凭栏远眺,听鸟鸣啾啾、清风过耳;或好友把盏临风,与邻人遥相应和,于熏然神游方外之际,一窥“与天地并生、与万物为一”的逍遥之境。

△晨光中的树屋 ©三棱镜
项目图纸









项目信息
项目名称:南溪欢乐田园野趣酒店树屋设计
主创设计:王晖/王晖建筑工作室
方案设计团队:丁褚桦、刘梦嫚、叶子超、叶云帆
施工图设计团队:胡斌 周莉 王轶楠 曾晨 杨君发 卢芊 代晓寒 欧智
建筑面积:(3幢)1689.12㎡
设计时间:2022-2023
建造时间:2023-2024
项目顾问:曾飘 唐庭
地址:宜宾市南溪区长江村
业主:宜宾南溪仙源文化旅游发展有限公司
摄影:重庆两江新区三棱镜文化传播有限公司

BIM建筑网





评论前必须登录!
注册