
该设计团队在租赁建筑项目领域积累了一定的经验,在完成了“五番町楼梯(ESCALIER Gobancho)”和“神保町楼梯(ESCALIER Kojimachi)”这两个项目之后,设计团队有机会设计了位于四谷站附近的第三个租赁建筑项目。


设计团队一直致力于为构成城市大部分的中小型租户建筑实现商业和社会价值的双重目标,由于规模经济以及开发商和建筑商的合作,设计团队得以实现前两个项目中因各种原因未能达成的目标。


建筑体量在西侧和北侧之间来回穿插,形成了一个作为过渡区域的阳台,有助于提升建筑的商业潜力。




项目图纸

△项目生成图

△基地示意图

△基地示意图

△平面图

△立面图

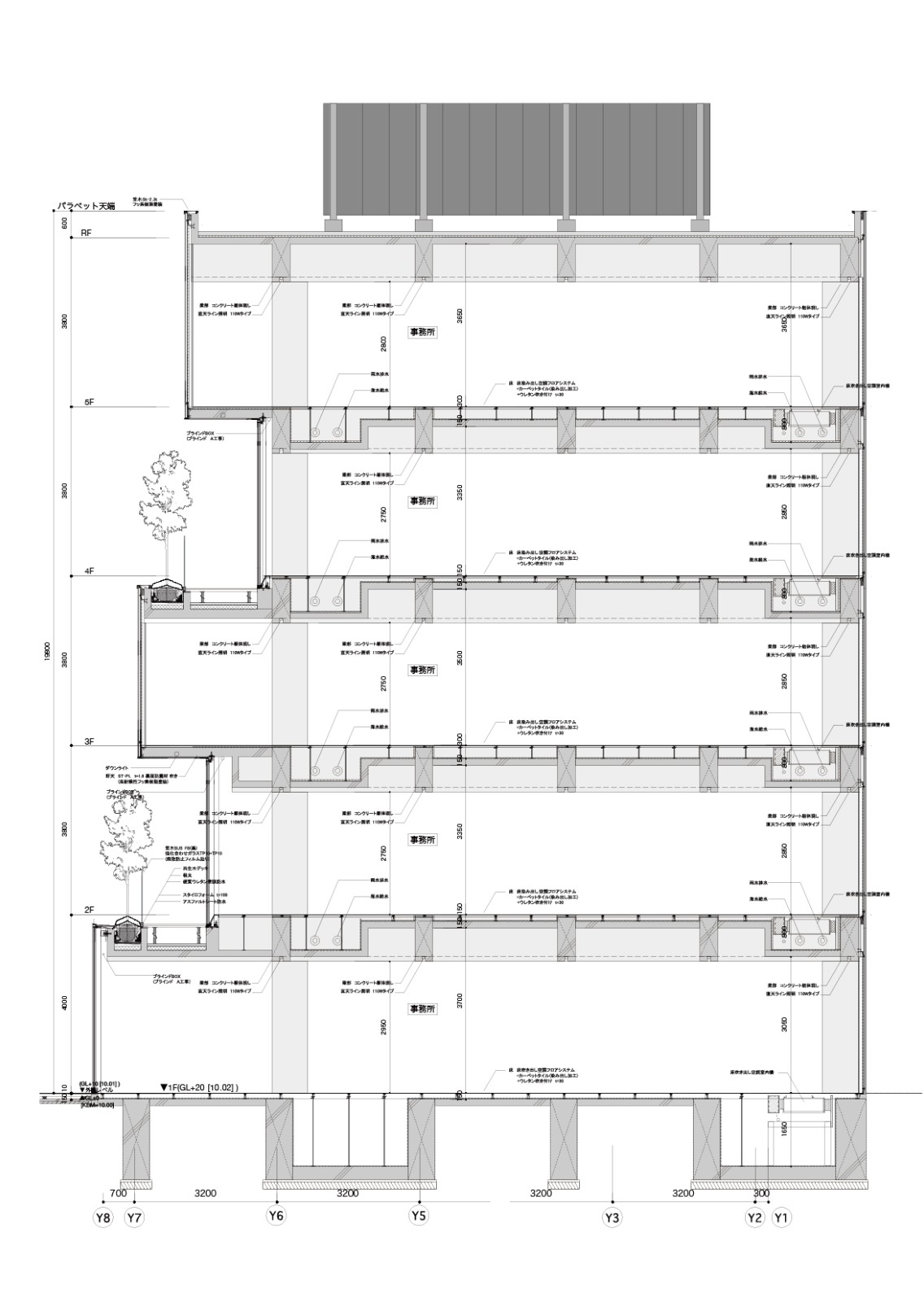
△剖面图

△剖面分析图

△剖透视

△细部结构大样图
项目信息
建筑师:ETHNOS
面积:1177m²
项目年份:2023
摄影师:Keishin Horikoshi /SS
主持建筑师:Tatehito Sakurai
地点:日本,东京
微信公众号:xuebim
关注建筑行业BIM发展、研究建筑新技术,汇集建筑前沿信息!
← 微信扫一扫,关注我们+

BIM建筑网





评论前必须登录!
注册