
第一次看现场的时候,场地上几颗柿子树已经挂果,当即决定要想办法把这些柿子树保留下来,那就要把三栋民宿客房,做做外形的切割和退让。



设计团队将 ABC 三栋民宿形成一个向着草坪和池塘的围合,因为自身的切角形成了形态互补的关系,群体之间又有着一种向心力来统一。ABC 三栋用一个细柱钢结构连廊相连,保留的老宅只剩下墙垣。ABC 三栋正负零处在和老宅同一个水平面上,它们与南侧草坪的高差用看台式台阶来处理,这些台阶周边的挡土墙取材于村落里垮掉的老房子的墙体毛石。


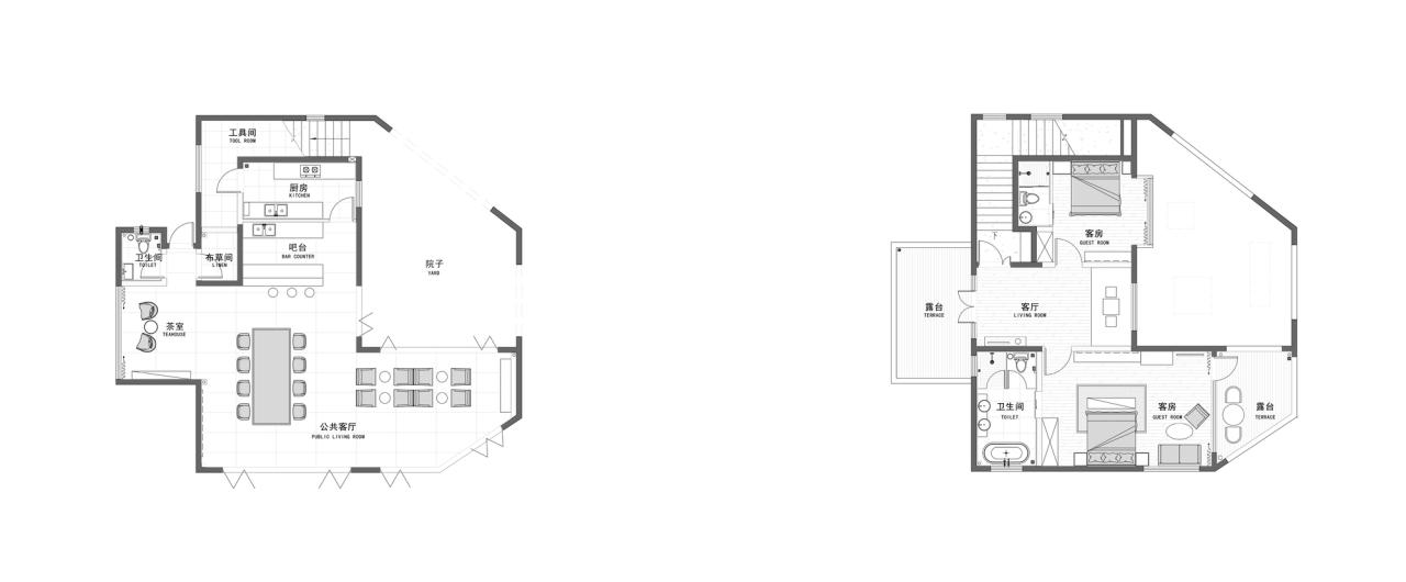
三栋民宿都是一个平面母体的变异,建筑平面都是L形的实体+一个虚的内院,但空间却有着不同的参差:A 栋内院被封了屋顶,开了天窗,形成一个半室外的灰空间;B 栋和 C 栋内院都是露天的; B栋的客厅则贯穿了两层空高,而屋顶也布置了天窗。


在立体形态上,三栋的母体是顶面被斜切后的六边柱体,各个立面和顶面则开挖了各种不规则多孔布局。




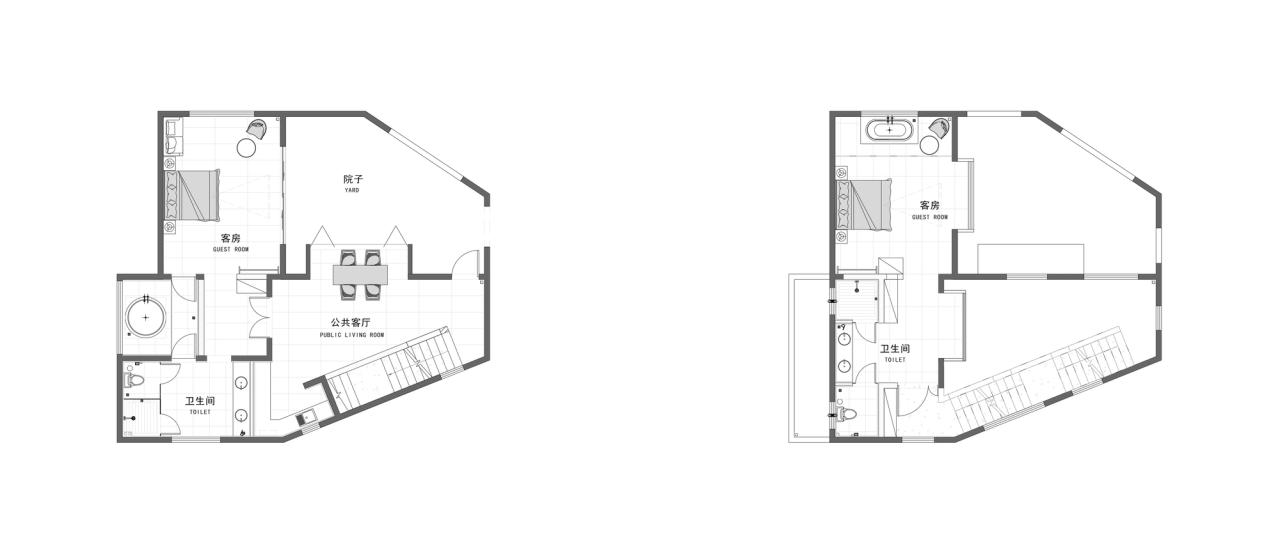
A 栋面积最大,一层稍微高点的设计方便作为公共餐厅和客厅之用。它面向池塘和入口道路一侧是完全可以打开的落地玻璃折叠门;面向西面的老宅的玻璃窗,落地无框,可以看到泳池。保留的几棵构树从木地板上生长出来。二层是两居室的套房,露台的墙体开洞正好把户外保留的柿子树形成了框景;客房内的长条窗则开向了门前的法国梧桐的一个枝条;卫生间浴缸边的大无框玻璃窗则对着法国梧桐的主干。



B 栋亮点在于两层高的客厅和墙面、顶面多孔的开窗;另一个亮点,是卫生间单独的圆形浴缸,一侧就是落地玻璃。



C 栋一层做了粉色布局;二层结合比较高的层高做了滑滑梯,卫生间马桶上边的横向窗户,也是最佳的取景位置。


三栋民宿的外墙都是木纹清水混凝土。不需要保温功能的院子外墙、楼梯间外墙,就是双面木纹清水混凝土;房间外墙就是单面木纹清水混凝土+内保温处理;在浇筑顺序上,完成一层清水浇筑后,等拆模后再完成二层的支模和浇筑,一二层之间用一个工艺缝来分开。



三栋民宿内在核心是其适宜的尺度和人在其中的游走关系。自然、素材与身体,是这几年该设计团队做小建筑所总结的一个基本逻辑,是手法,也是哲学。







项目图纸

△建筑模型

△建筑模型

△建筑模型

△建筑模型

△建筑模型

△建筑模型

△建筑模型

△建筑草图

△总平面图

△平面图

△平面图

△平面图

△剖面图

△剖面图

△剖面图
项目信息
建筑师:UAO 瑞拓设计
面积:607m²
项目年份:2023
摄影师:然也空间建筑摄影,此间建筑摄影
厂家: 森普,雅美特
主创设计师:李涛
建筑结构:张杰铭、谈平、龙可成、孔繁一
景观规划:陆洲、申剑侠、张坤、林静、付余
室内设计:晏罗蒂、杜雯欣、周柏涛、白玉凡
实习生:何岱恒、肖博洋
施工方:武汉楚耀建设工程有限公司
委托方:湖北中科农合发展有限公司
地点:武汉

BIM建筑网





评论前必须登录!
注册