
乌镇堤上酒店毗邻京杭大运河,坐落于“中国最后的枕水人家”乌镇风景区西北角。酒店是景区内体量最大的酒店,包含了 493 间客房及各类餐饮、康体功能空间。项目外立面以陆上行舟,卧枕堤上为设计概念,犹如一艘三桅船帆停靠在港湾。


项目外立面创造性的将中国传统元素和现代的材料及建造技术结合在一起。裙楼外立面上的竹纹遮阳铝板起伏蜿蜒犹如水浪怕打船身激起的涟漪。塔楼覆上遮阳板后正似升起的风帆,行将远航,同时通过微妙的颜色和深度变化营造出阳光下帆面的星星点点、光影变幻。傍晚通过外立面泛光照明的设计更是反映出渔火人家,孤帆远影的诗意场景。


另一个亮点是在“夹板”上的悬挑泳池,让人徜徉在古镇空中和运河之上,满眼水天一色。暮色降临,全景灯光营造出一幅诗意的画面,让人想起渔火和孤帆的影子。



本工程的幕墙形式多样且复杂,利用参数化设计技术和创新的制造和安装细节,裙楼和塔楼都实现了最初的设计愿景。塔楼立面标准层为双单元式幕墙(内侧玻璃单元及外侧蜂窝铝板遮阳板单元),提高加工效率的同时也增强了制作精度。其它的幕墙形式包括双层框架式玻璃幕墙加遮阳板、蜂窝石材幕墙、蜂窝铝板幕墙、钛锌板屋面、各类雨蓬等,也增加了酒店建筑的丰富性。










项目图纸

▲分析图

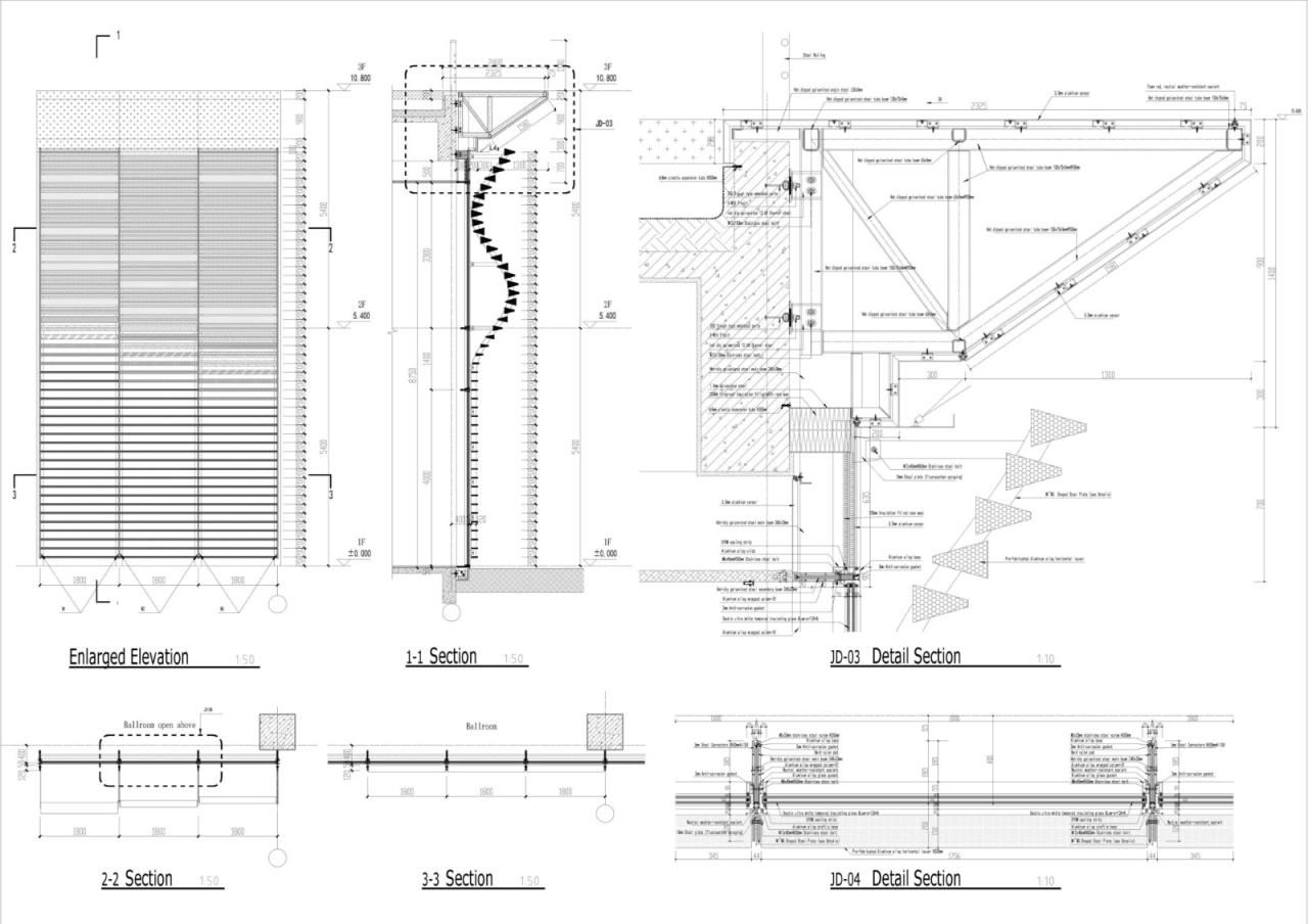
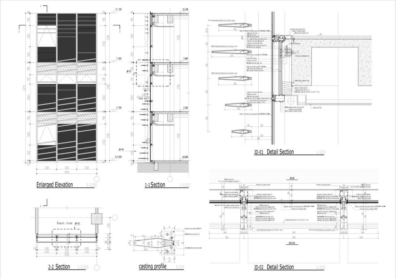
▲细部结构大样图

▲细部结构大样图

▲分析图
项目信息
建筑师:直线建筑
面积:84124m²
项目年份:2023
摄影师:朱润资
主创建筑师:曹子劼
设计团队:曹子劼, 武欣, 柯思明, 董人溯
合作团队:浙江大学建筑设计研究院有限公司
照明设计:上海秉思照明设计事务所
委托方:乌镇旅游股份有限公司
地点:嘉兴
微信公众号:xuebim
关注建筑行业BIM发展、研究建筑新技术,汇集建筑前沿信息!
← 微信扫一扫,关注我们+

BIM建筑网





评论前必须登录!
注册