
场地位于阿那亚雀跃镇南侧,街区内共有 12 栋独立小建筑,由十二家国内餐咖酒品牌入住运营。结合跳海的经营理念,设计团队真诚的希望可以把街区真正「街区化」,让来到这里的人们拥有公共生活。因此,建筑空间的公共属性表达成为本项目的核心目的。



街区内部,各建筑体量之间的咬合关系自然形成了曲折的街道空间,给每一个独立单元彼此留出了交往的条件,加之运营内容的集群需要,设计团队将首层全部打开,拆除掉所有可拆除墙体,在视线上将南北两个小广场连通,同时把室内空间场景向外呈现,吸引人们的到达。



原建筑功能设定为艺术家工作室,建筑内部空间空白。原功能倾向于居住办公,垂直向结构设计采用了 3 m 的模数进行预留,这样的层高条件并不利于商业功能的植入。同时,外立面的开窗考量可能的小空间划分,设置的相对均匀,使得内部光线变得平均。其次,新功能对所有使用者视线上「看与被看」的关系需要重新确立。以上是设计团队在本次设计工作中需要重点解决的技术问题。




为了削弱层高的压抑感,设计团队置入了几个不同尺度的垂直空间,打破二次结构后相对低矮的平层空间的封闭性,不同向性的空间彼此交错,使得整体空间连续流动。同时,设计团队把东侧局部出挑的方盒子上下结构板打通,得到一个悬浮的中庭,将建筑内外连结。





南侧入口上空,设计团队在二层增加了一个悬挑的盒子,使用者可以在这个小空间内向南望去,有完整的阿那亚北岸景观,同时使用者在这个透明界面内的活动,也会被人们观看,成为他自己的「个人舞台」。





对外墙的采光进行调整,使屋面天窗进入的光线成为主角。空间内部的原始结构及墙体全部裸露,新置入的体量以砂浆拉毛为面层材料,在整体质感上保持一致。









项目图纸

△轴测图

△分析图

△总平面图

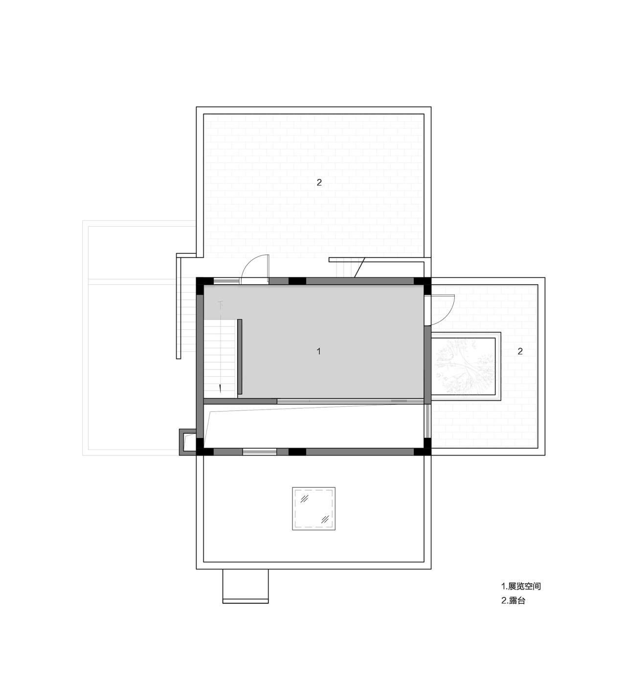
△一层平面图

△二层平面图

△三层平面图

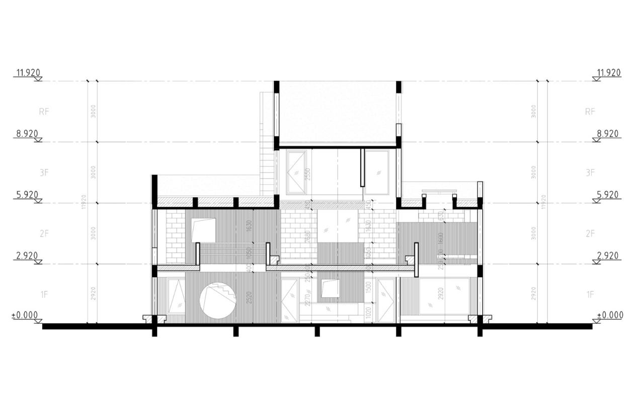
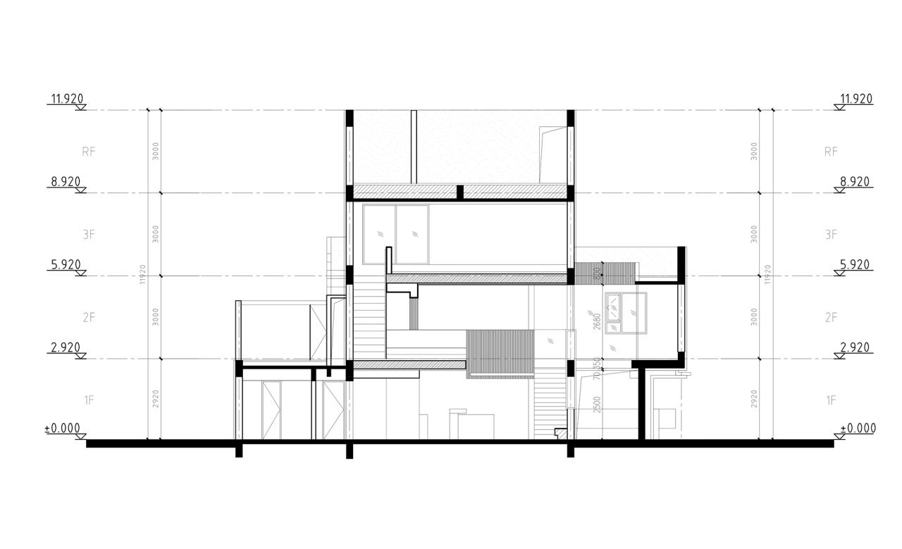
△剖面图

△剖面图

△立面图

△立面图
项目信息
建筑师:M.S.A.A. 不山建筑
面积:293m²
项目年份:2024
摄影师:Hirono
厂家: TERRACO,Veneroth,Yundi
主创建筑师:李子晗
景观设计:M.S.A.A. 不山建筑
委托方:阿那亚 + 跳海
地点:秦皇岛

BIM建筑网





评论前必须登录!
注册