
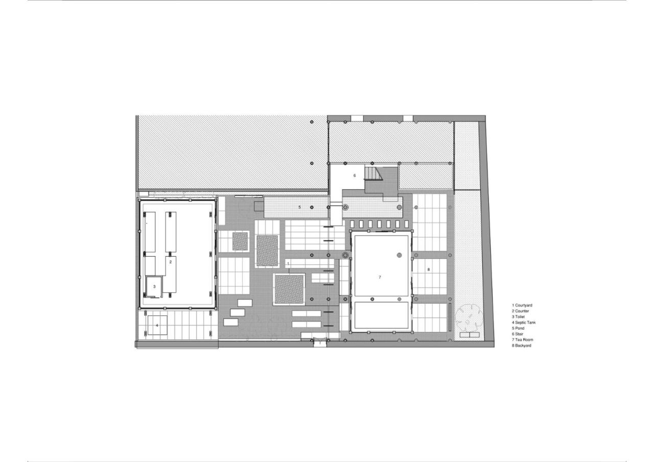
场地位处莫干山脚下仅存的一幢典型的抬梁式重檐五开间江南民居。古民居建成时间已超过百年,改造之前建筑已呈半荒废状态。委托方希望在保留完整的原始特征和工艺氛围的同时,将古建筑及庭院改造为一个当代的、轻松的茶空间。



经过完整的测绘和结构安全性检测后,古民居的主体梁架结构在完成除虫处理后原地保留。大量破损的二层地板、屋顶檩条、夯土山墙、屋瓦等按照设计团队的要求使用了原始的工艺和材料进行了恢复性修缮。建筑中精美的窗棂、壁画、墀头以及雕花梁,作为在地营建传统和文化符号的代表,被完整保存用于欣赏。



为了引入大量自然光和空气,设计团队裁切掉使古民居室内空间阴暗封闭的部分表皮、屋面和二层楼板,并让庭院的水景穿过立面进入室内。因裁切而暴露出的批檐和柱子在屋前和屋后创造出两个面向庭院的檐下空间,南北透的布局让风可以穿堂而过。局部拆除的二层楼板产生了大屋檐下的挑空空间。这些“修剪”手法模糊了建筑的内外边界,创造了陌生而充满活力的空间体验。



为了提升场地的舒适程度及功能需求,设计团队使用钢结构构筑了两栋自承重的玻璃屋。一处插入古民居中,与历史建筑的原始梁架进行穿插。在保留古民居整体视觉观感与传统抬梁结构的前提下增加了气候边界,便于客人在舒适温度中饮茶。一处独立建于庭院深处。其内部使用了与木梁架相呼应的竹钢材质来对茶饮吧台、卫生间和遮阳顶棚进行构筑。复合竹顶棚抽象模拟了老屋中的木头梁架,还原了与古宅屋面近似的反宇向阳效果。



两处新增体量形式相同,规模相当,分列于古宅内、外,既是并置也是互文。玻璃边界与竹、木两种构造清晰组合,形成了丰富的空间体验。当代建构与传统构造,一内含,一外裹,在庭院的两侧霸气对立。













项目图纸

△轴测图

△一层平面图

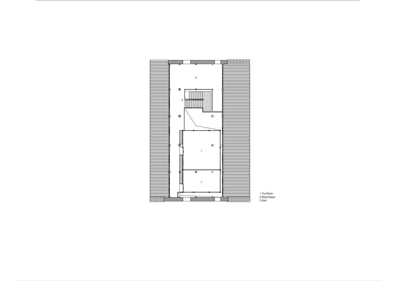
△二层平面图

△剖面图
项目信息
建筑师:奥室建筑
面积:380m²
项目年份:2024
摄影师:Wen Studio
厂家: Nippon Paint
主创建筑师:杨奡
设计团队:杨奡,詹梦婕,樊芷茜,陈宇凡,吴静雪
结构设计:胡晓劼
平面设计:DizzyLab
修缮设计:卜建民,刘明云
委托方:山庾茶肆
地点:湖州市

BIM建筑网





评论前必须登录!
注册