
蓝舍艺术空间坐落于有千年水乡美誉、具有浓厚岭南文化底蕴的广东顺德逢简水乡。此地历史上为著名的乡村旅游景点,现存大量的古桥、古祠和古树,禅佛文化浓厚,朴实自然,有独特的文化产品与蜚声国际的顺德美食。由于乡村设施和配套跟不上当地生活质量和外来旅游的增长需求,周边问题也逐渐显露,例如缺乏文化艺术展示和交流场地、住宿和接待设施质量欠佳、交通拥堵、餐饮质量有待提升、旅游服务配套急需改善等。



项目的本质是一个在乡村振兴语境下的建筑活化改造。设计上需要把 2 栋空置的房子和1个带有河涌的花园重新活化利用,把当代文化艺术空间和高质量酒店接待设施植入其中。项目总改造面积 5030 平方米,包括利用现有建筑创造一系列展示超过 20 位艺术家作品的美术馆空间,29 个精品酒店客房,3 个特色餐饮空间,1 个具有岭南特色的户外花园,同时保留和提升现有的河涌生态景观。


该项目旨在打造一个新时代文化艺术空间,面对未来逢简,展现特有的水乡情怀,树立弘扬东方美学价值的新标志。对于项目而言,如何扬长避短,既有效地利用周边人文资源,又不被这种喧嚣所影响,营造一种专属的宁静空间,将岭南文化融入其中,是值得深思和研究的问题。



设计团队希望利用现代设计语言,对古典岭南美学进行传承和创新,通过一些在地工艺的应用,将旧有空间赋予以新的使命。建筑、园景、室内、艺术品策展、灯光佳为建筑师一体化的设计,内敛却蕴含能量,以一种谦卑而自信的姿态,深度诠释岭南文化的价值。



建筑外立面用朴实的材料创造出新的设计语言,响应低碳节能、通风采光的需要,同时体现岭南文化中敢于超越传统、进取创新的意识。设计上大胆利用本土材料和工艺本身焕发出来的魅力,重新启动场地,构建一种情感丰富的生活质量,以及开放多元、互通交流的社会精神与人文价值。



对岭南气候的考虑是本项目极为关注的方面。岭南为典型的季风气候区,高温多雨。在设计上,本案采用陶砖作为主要的立面语言。陶砖本身质感细腻,具有良好的透气性和透水性,在被动式节能上有明显提升效果,有助于改善室内环境。针对不同楼层功能,采用不同的组砌方式,在优化建筑性能的同时也为建筑立面增色。






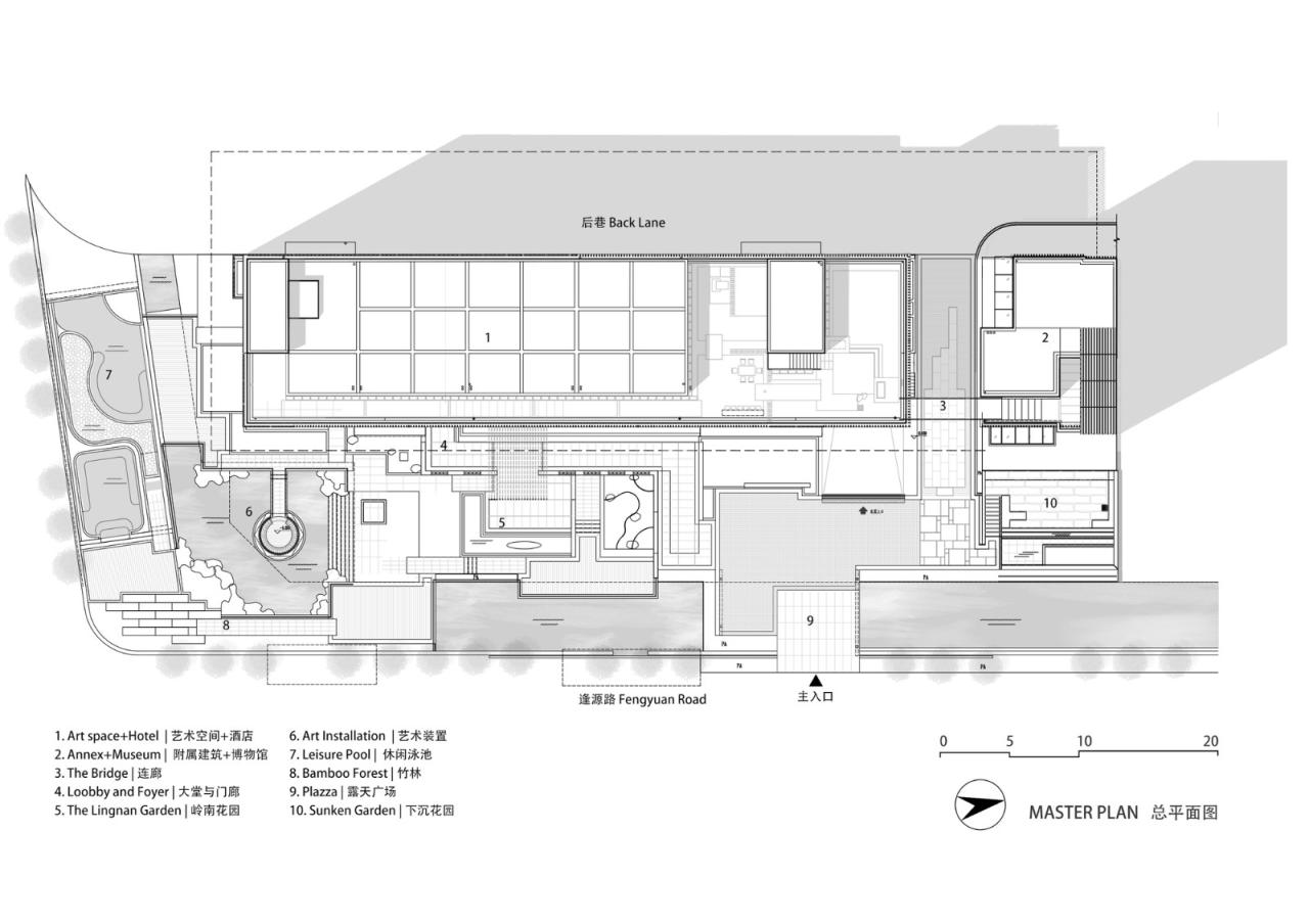
项目图纸

△总平面图

△平面图

△剖透视

△细部结构大样图

△细部结构示意图

△细部结构分析图

△功能分区

△分析图

△分析图

△分析图
项目信息
建筑师:ADARC 思为建筑
面积:5030m²
项目年份:2021
摄影师:林力勤
主创建筑师:丁劭恒
设计团队:思为国际建筑师事务所有限公司
施工方:蓝舍酒店管理有限公司
景观设计:当岱景观
合作设计方:思为国际建筑师事务所有限公司
照明设计:高敦照明
艺术顾问:艺珀Artlink
委托方:蓝舍酒店管理有限公司
地点:佛山市

BIM建筑网





评论前必须登录!
注册