
该地块位于奈良县北葛城町,是奈良县人口最多的城镇。该项目主要任务是在住宅区建造一座单层钢筋混凝土附楼。


这座建筑与现有的主屋分开,作为招待客人和促进交流的地方。它不包含浴室,只有最基本的水利设施,其目标是创造一个可以体验光线和材料之美的空间。



该结构采用墙体构造设计,以消除空间中的横梁和立柱。中心位置设置了一个大型天窗,让光线在一天中发生变化。用于装饰的黑色谷崎纸轻轻包裹着光线,传递出四季和天气变化中天空的各种变化。



在小庭园(tsuboniwa)的一侧,设计团队设置了一个狭缝开口,以引入从地面层墙壁上反射的自然光。


近年来,随着大多数交流都转向了社交媒体和互联网,人们对能辅助他们线上沟通和办公的空间产生了需求。设计团队创造了一个空间,它允许人们进行与日常生活不同的丰富交流,同时确保在人口稠密的住宅区内也能得到隐私上的保护。








项目图纸

△ 平面图

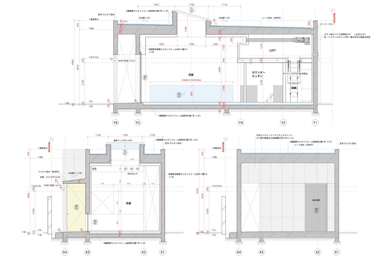
△ 剖面图
项目信息
建筑师:Akihiro Tai Architectural Design Office,Koyori
面积:42m²
项目年份:2023
摄影师:Junichi Usui
合作方:Akihiro Tai
内部结构:Rakusei Giken Co., Ltd.
日本纸艺:Wataru Hatano
家具设计:Akitomo Furniture Manufacturing Studio
建设单位:Takagishi Construction Co., Ltd.
结构设计:Takeshi Kaneko Structural Design Office
灯光设计:ModuleX
地点:日本,高丽

BIM建筑网





评论前必须登录!
注册