
01历史背景
昔日“文化宫殿”
工人文化宫也被称为“文化宫殿”,起源于苏联时期的工人俱乐部,是工人在换班后可以重新创造、社交和学习的空间。中苏友好时期,全国各地参考苏联模式和风格,掀起了建设工人文化宫的热潮,建造起一批标志性建筑。常州市工人文化宫建于1957年,是一座中西风格结合的建筑,也是常州市曾经的十大建筑中为数不多完整保留下来的一座。


20世纪七八十年代,工人文化宫盛极一时,是职工文化娱乐活动的主要场所,承载着一个时代的荣光和几代人的集体记忆。然而,从90年代中期开始,在市场经济的浪潮冲击之下,文化娱乐场所得到极大的丰富,全国的工人文化宫都开始衰落,失去了昔日的辉煌与荣耀。
02现状问题
繁杂的历史印记

△项目区位
常州市文化宫位于城市中心,老城厢的核心位置,周边有文庙、基督教堂、市图书馆等文化传播机构,也有前后北岸历史街区、东坡书院、省常中等办学机构,是文化教育的中心。

这些文化建筑代表不同的历史时期,给文化宫片区打下深刻的历史烙印。如何通过建筑和环境的整治,提升片区的文化特征,使之成为常州老城区的一张名片,是业主和设计师共同面对的议题。
|| 建筑问题
如今的工人文化宫建筑,立面混杂、功能错位、价值淹没、公共性缺乏。同时,多次的改扩建使现场状况复杂,存在消防及结构隐患、图纸缺失、技术标准缺失等诸多问题。
|| 环境问题


通过多次调研走访,发现文化宫地块建筑与环境缺少互动,空间消极;外部空间的连接不畅通,公共性不足;休闲设施缺乏,绿化杂乱。同时存在文化氛围感不足、标识标牌和建筑色彩不统一等问题,亟需对环境进行系统性规划。
|| 交通问题
项目位于老城核心区,地块狭小,内院现状停满车辆,缺少有效的交通组织方式,人车混行。在无法开挖地库的情况下,是否能够有效组织交通,做到人车分流,并满足消防车的通行?
|| 风貌问题

场地内现状文庙大成殿、50年代的苏式大会堂“飞机楼”、80年代的科教楼与2000年后原址新建的大会堂及其辅楼。不同时期不同风格的建筑汇聚其中,有的几经改造已经面目全非。该选取何种风貌去呈现,这既是美学范畴的讨论,也是对历史态度的理解。
03改造策略
重塑场所记忆 活化社会功能

通过现场调研、整理历史资料、了解片区封面规划策略以及跟业主和相关部门的工作坊,梳理出“以历史、人文为主线;以景观、建筑为载体;以功能、活动为内核”的改造框架:
|| 开放共享 打造文化街区

打开文化宫边界,包括场地的边界和建筑的边界,形成建筑与广场互动的空间,通过中心广场和内部若干小节点空间塑造,以及地铁站对人流的拉动,形成开放连续的慢行空间。
|| 疏导交通 步行友好系统
将区域停车协同考虑,通过广场铺地、减速带等设置,打造人车分流,步行友好的街道交通系统。

|| 围绕公益 提升文化内核
对现有功能进行梳理。分别以“剧院/影院”和职工培训“为核心,重新组织大会堂与科教楼功能,充分考虑与环境的互动,提升项目整体文化氛围。
|| 还原风貌 整合建筑语汇
总体设计遵循“修旧如旧”的理念,还原不同时期历史风貌的表达,突出文化宫独一无二的身份名片。在遵循建筑整体风貌前提下,寻求“历史性”和“现代性”的平衡。
|| 景观重塑 创造文化氛围

通过特色景观打造片区文化标签,更新空间公共设施,注重空间的参与性,提供有记忆点的、可游玩、可停留的场所体验。
04改造路径
全方位整合设计 打造“年代博物馆”

本项目采用“调研收集—价值评估—内容策划—确定范围—整合设计”的行动路径,迅速建立专家团队,通过原始资料和人物访谈收集历史信息;委托专业测绘和加固单位对项目现状进行复原评估,作为改造的依据。以还原风貌为主,通过全方位的微整治,在地块内呈现不同时代的缩影,打造“年代博物馆”。
|| 交通组织及空间梳理


基地北侧引入一条单向车行道,将广场上停车腾挪到北侧空地,车行交通跟人行交通分离。同时打通内部广场和周边道路的路径,引导行人进入场地内部,通过“疏导”和“打开”的方式,将中心广场打造成“城市会客厅”。
|| 秩序塑造及功能重构


除了大会堂和科教楼功能的重构,我们对内部公共空间进行梳理,使空间更有秩序。公共性较弱的剧场北侧辅楼,改造成大会堂配套的接待、排练、化妆候场等空间;北立面开设次门厅,使内部功能和城市广场互动。




大会堂两侧原有的疏散楼梯,使用率极低又侵占了外部通道的空间。团队设计了一条连廊连接起不同标高,在用作疏散的同时,也将消极空间整合转化为日常休闲交流的场所,被赋予了更多意义。
|| 历史风貌整合立面设计

在新和旧的取舍之间,设计团队对“旧”的部分进行修护性保护,对“新”的部分采用更“折中”的设计语言,使建筑整体符合“文化宫殿”的调性。

大会堂按照50年代风格进行修缮,同时将2000年后新建的礼堂及辅楼立面与“飞机楼”的风格、材质进行统一。

对于定位“80年代风”的科教楼,设计团队并未对原有图纸进行1:1还原,而是参考图纸并对比老照片,提炼出该建筑的风格和设计语言,进行重新演绎。
|| 永不落幕的“红色幕布”
室内设计延续建筑设计思路,对不同年代风格进行案例收集和元素提取演绎。在大会堂中,以空间的开合创造出具有对称性和序列感的场所氛围。


通过与老同志的交流,得知文化宫门厅也被称为“红厅”,设计团队便以“红色幕布”为灵感,用GRG材料模拟幕布,凝固剧场意象和时代浪漫。



同时,从苏式建筑和年代建筑中提取梁、柱、廊、墙裙及水磨石等特色,通过藻井、半高墙裙、拱门、吊灯等元素让室内空间充满怀旧气息。


为避免不同时代建筑风格产生的割裂感,设计团队将北门厅作为过度空间,在延续大会堂红白配色的同时,加入了木色,风格也更为简约。


再过渡到80年代风格的科教楼,用简洁克制的表现手法,呈现80后的记忆空间。
|| 引导“事件”发生

景观设计以人文、生态、交融为原则,围绕“场所”和“事件”展开,分区营造不同的空间氛围。剧场、科教楼区强调开敞、引导和多样性,应对不同场景的使用需求,使之成为名副其实的“城市客厅”,群众喜闻乐见的公共空间。

广场和科教楼之间的高差,通过平台、踏步、坡道和景墙进行区分,让科教楼半围合的庭院有了一定的私密性,模糊了室内外空间的边界。

另一侧大会堂辅楼新增的北入口,使广场更具有秩序感,入口踏步解决辅楼高差的同时,也成为在广场驻足休息的市民 “看台”,满足了平日、集市、露天电影、开会等不同场景的空间需求。
05总结
历史遗产馈赠城市
本项目作为《常州老城厢复兴发展三年行动》中的重要组成部分,既是源于地方政府改善老城厢环境,提升城市文化底蕴,激活市中心活力的美好愿景,也来自于文化宫功能转型升级的迫切需要,符合人民群众对更宜居的环境和更丰富的文化生活的向往。




对于此类复杂的改造项目,不仅是对外观和环境的整治,更是对建筑内在的系统性提升,虽然面积不大,但是涉及到的专项众多。不仅需要内部专业团队之间密切配合,还需要业主的信任及外部单位的整合能力,一起推动项目的顺利实施。设计团队怀着对常州的深厚感情,通过对场所的重塑,向历史及城市致敬。
项目图纸

▲总平面图

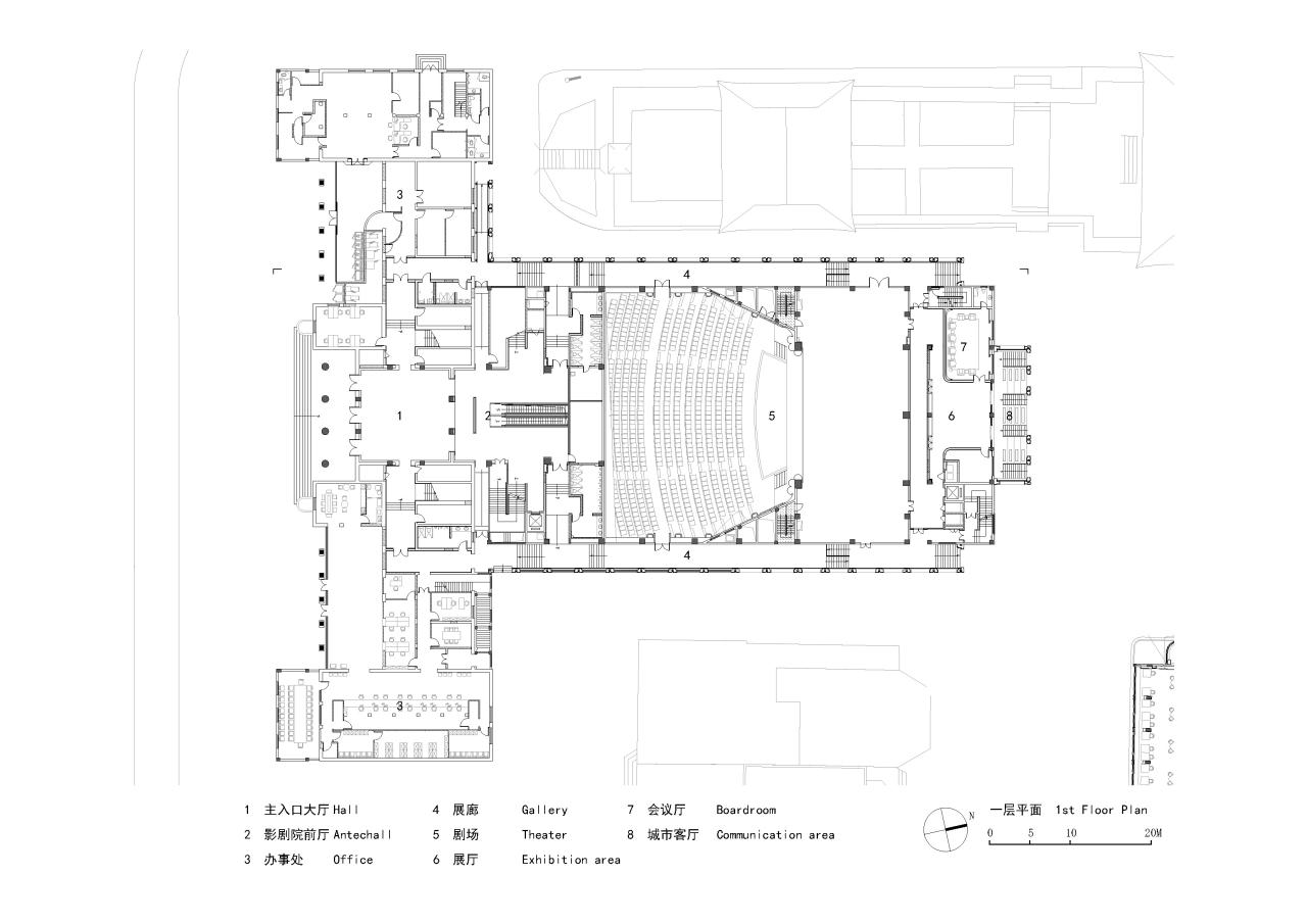
▲主楼一层平面图

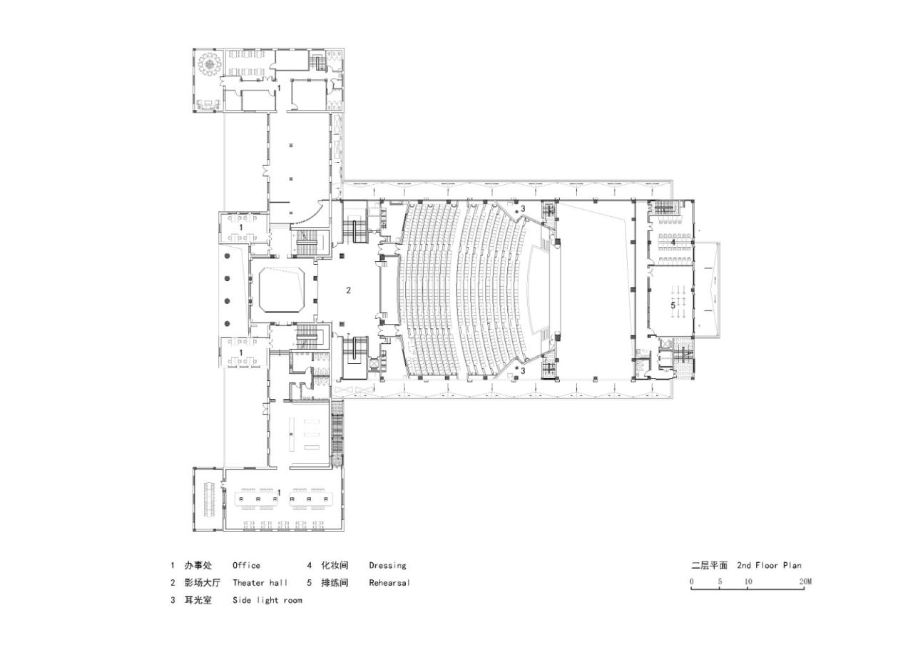
▲主楼二层平面图

▲科教楼一层平面图

▲立面图

▲剖面图
项目信息
项目名称:常州市工人文化宫改造项目
业主单位:常州市工人文化宫
竣工时间:2023.02.28
建筑规模:18740㎡
方案设计:陈涛、邹旦妮、周锦鑫、刘玉婧、周魁
施工图设计:贾杰、张玉江、龚飞雪、江伟山、雷栋、荆烨、朱吴萍、季晓琪、梅滟玲、李叶芃
景观设计:马宾、翟长安、张梦瑶、李娜、曹可鑫、刘东、苏妮
室内方案:寻长设计NARMAL
室内施工图:汪健、韦琦、杨阳、王彬、应兰芳
施工单位:无锡锡山建筑实业有限公司
摄影单位:谢东叡RUI PHOTOGRAPHY

BIM建筑网





评论前必须登录!
注册