
前言
当城市化进程让乡村逐渐成为城市的另一种变体,乡村失去了乡愁,同时又未能获得足够的优势与反哺。面对日益加剧的农村人口老龄化、空心化等现象,如何通过设计重新激发乡村活力并向城市人展现乡间生活魅力,是近些年社会上热议的话题。

▲“母亲住宅”街景 ©朱雨蒙
实际上,随着农村基础设施建设日趋完善,且不再受制于物流不畅和信息不通,如今的乡村有机会与城市互为补充,并连接成一体。当在城市打拼的年轻人想要额外购置住房就近赡养父母,并希望闲暇时能够从繁忙的效率、指标、任务中抽离,感受大家庭的精神慰藉时,近郊便成为了最好的选择。

▲乡村新生活下的居住构想 ©朱雨蒙
不远的未来,乡村将具备流动、多元、互联的特质,提供城市里无法获得的空间体验和生活方式。新的乡村能够吸引新的乡村人,并带来新的社区形态。“母亲住宅”项目正是在此契机下诞生的一个助力乡村振兴的独立实验样本。建筑师重构了乡间现代家庭的生活场景,为房山西营村与北京城区建立新联系提供了一份答案。

▲“母亲住宅”轴测爆炸图 ©CPLUS


▲手工模型 ©CPLUS
母亲住宅
走向乡村新生活
一座带庭院的独立住宅,寄托了大量中国城市家庭对理想居住的憧憬。尽管今天高密度的城市环境已难以向居民提供独属的院落空间,在近郊广袤的土地上却依旧孕育着无限的可能性。

▲暮色下的“母亲住宅” ©刘晶
北京西南六环外坡峰岭脚下,散落着成片的村庄,“母亲住宅”所在的西营村就坐落其间。按照最初设想,这座院子是为退休老人设计的,到了周末也可以成为祖孙三代团聚的场所。为向抚育生命的母亲致敬,特以“母亲住宅”命名。

▲方格网街巷 ©朱雨蒙
村内房屋大多坐北朝南,每块宅基地边界相对规整,密集的农宅和方格型路网勾勒出纵横交错的街巷肌理。“母亲住宅”主入口临着基地东侧的主街,南、北方向皆面朝小巷,西侧院墙与邻居共用。身处实地,建筑师开始在脑海中架构理想中的乡村居住场景,思考什么样的建筑能够符合这一想象,以及未来这里的生活又将发生什么样的改变……

▲住宅东侧沿街立面 ©朱雨蒙
内与外相生
住宅不仅仅是居住功能的载体,也是文化的一种延伸。住宅的“内”与“外”是中国传统建筑文化里重要的一种关系,就像中国古代哲学中的“阴”与“阳”一样彼此依存、互相促进、不可分离。“外”并不是“内”的附属,两者间是相互为用的关系,甚至设计“内”是为了实现“外”。“母亲住宅”建筑与庭院的占地比例接近1:1,通过凹凸的图底关系,展现了两者间的动态平衡。

▲空间生成示意图 ©CPLUS
入户门外檐下的灰空间正处于宅基地中央,是整个院落的视觉中心和象征家庭凝聚力的精神场域。这处灰空间让居住者在一年四季里的日常活动有了更多向室外延伸的可能性,夏夜可乘风纳凉,冬日可在雪中围炉煮茶,逢重要节日,全家人还能在此举杯庆祝。

▲檐下灰空间 ©刘晶
南立面上,各主要房间的窗口如同取景器一样将庭院之中的风景引入室内,淡化了“内”与“外”的界限。而内向的院落既是人与自然互动的场所,又能保护室内私密,就像一个超脱于外在喧嚣的“内向宇宙”。

▲住宅南立面近景 ©朱雨蒙

▲内向的庭院空间 ©朱雨蒙
水平与垂直同构
在建筑空间的整体设计上,建筑师借鉴亚洲传统空间智慧拓展并延伸了水平方向上的空间层次,同时围绕通高的中庭创造出连续且丰富的室内竖向体验。

▲“母亲住宅”剖透视图 ©CPLUS


▲通高的起居空间 ©朱雨蒙
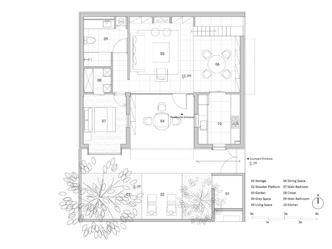
“母亲之家”平面布局由东向西分为三段。靠近主街的厨房及餐厅单元相对热闹,从厨房窗口可以随时观察到院子里的情况。通高的中庭空间位于中段,作为起居活动区连接着各个房间。西侧楼上、楼下各有一组卧室和卫生间单元,安静并确保隐私。二层东侧是一个书房,未来住户也可以自定义使用场景,灵活置换成其他活动空间或者卧室。

▲餐厅一隅 ©朱雨蒙

▲二层书房 ©朱雨蒙

▲二层次卫 ©朱雨蒙

▲二层次卧 ©朱雨蒙
由于是献给母亲的住宅,首层功能布置即可覆盖老年人全部的日常生活需求,且室内外不设台阶,高差全部用坡道解决,保障了高龄使用者的活动范围。

▲首层老人的卧室 ©刘晶
设计还特意开放出围绕中庭的竖向交通空间,不同角度的视线在不经意间产生交汇,使家庭成员的交流更为立体和富有趣味。此外,南立面透明玻璃外墙最大程度延伸了空间纵深,人坐在中庭就能看到院子与天空。面积100多平米的住宅既实现了功能的多样性,又加深了家人的羁绊。

▲“L”字形走廊 ©朱雨蒙
“V”字形屋顶与光线互动
出于对尺度和光线的双重考量,“母亲住宅”的屋顶呈“V”字形,屋脊压低,东、西两翼向外展开。反向坡屋顶的做法在保证二楼房间舒适度的同时,又避免了中庭过高而造成的尺度失衡和空间冗余。从街道视角看,“V”字形屋顶勾勒出轻巧灵动的天际线轮廓,压低的部分则为北侧邻宅尽可能留出视线和采光通道,避免了对邻居的干扰。

▲“V”字形屋顶 ©朱雨蒙
东、西山墙上的凸窗增加了立面的层次和趣味,并连同中庭两道隔墙上的高窗洞形成了“光的通道”。一天中随时间推移而变化的光线沿天花板斜面直达起居空间,让整个住宅从早到晚的活动都充满自然生机。

▲光的通道 ©朱雨蒙
材质与色彩协调
建筑室内外的主要材质色彩皆为大地色系,与乡村环境融为一体。砖、石材、木材、金属、织物以及涂料等各种材料,在明暗光线中交织出不同的温度与质感,带给人自然、质朴、温馨、舒适的感受。


▲楼梯间转角处的玻璃砖墙与黄铜扶手 ©朱雨蒙
项目图纸

▲总平面图

▲首层平面图

▲二层平面图
项目信息
设计方:CPLUS
创始合伙人:程艳春、李楠
主持建筑师:程艳春
设计团队:薄忱、刘晓光、周珂帆
项目类型:住宅
项目状态:已建成
时间:2023年04月-11月
地点:中国,北京
建筑面积:144.2平方米
摄影:刘晶、朱雨蒙
视频:酿影像工作室

BIM建筑网





评论前必须登录!
注册