
绍兴的柴场弄大周画室及其周边区域改造项目是绍兴柴场弄城市有机更新的重要组成部分, 原场地汇聚着毫无“规划”痕迹的自发建造的建筑集群,他们经历了岁月变迁,经历破败、碎裂,这些遗存和散落在周边地面的碎砖一起,构成 SpActrum 谱观实践的场地。



建筑师体察和学习了场地变迁发生的方式,以这些习来的方式和对于未来使用的想象力将这个原本属于私属空间的片区重新组织成为公共空间。在这时,建筑与景观、室内与室外的关系被不断打破重组,探索着场地跨越单体的时空连续性,以及所有建筑最终摆脱建筑的定义,而成为事件之场地。



这个片区内包含原私人院落住宅、老公寓、原工业建筑等各种不同性质,不同结构特点带来的不同视觉风格的建筑遗存,因而对其改造就成为了上述理念的缩影。原大周画室厂房建筑保留了西侧围墙,梳理内院后向内以钢铁、玻璃组合的当代立面向庭院延展。屋顶保留了原建筑构架的基本形式,将檩条延展为屋顶可坐的踏步,在室内,踏步间天光直露下来,保持着原建筑的触感。另一座平淡的小房子则被揭掉屋顶,成为了秘密花园。



随着内部空间的交融,单体建筑意识的消亡,在更大的层面上,这个片区和场地周边更广阔的时空融为一体,并通过屋顶南侧的空中天廊连接到场地,另一侧的星屿。这个片区或是内外翻转、或将不同时期,不同样貌的建筑纳入同一片屋顶,或是将屋顶化身为城市广场,或是将曾经的室内转换为室外的庭院。它们袒露着所属时代的建造工艺,在一个个体间界限融合,所有建筑作为一种可栖局的场地,建筑师以最小的改动将各个时代建筑混合成为可以随时翻阅的时间切片。大周画室片区着意的超越单体的时间与空间的连续性具象的落入人们的感官。











项目图纸

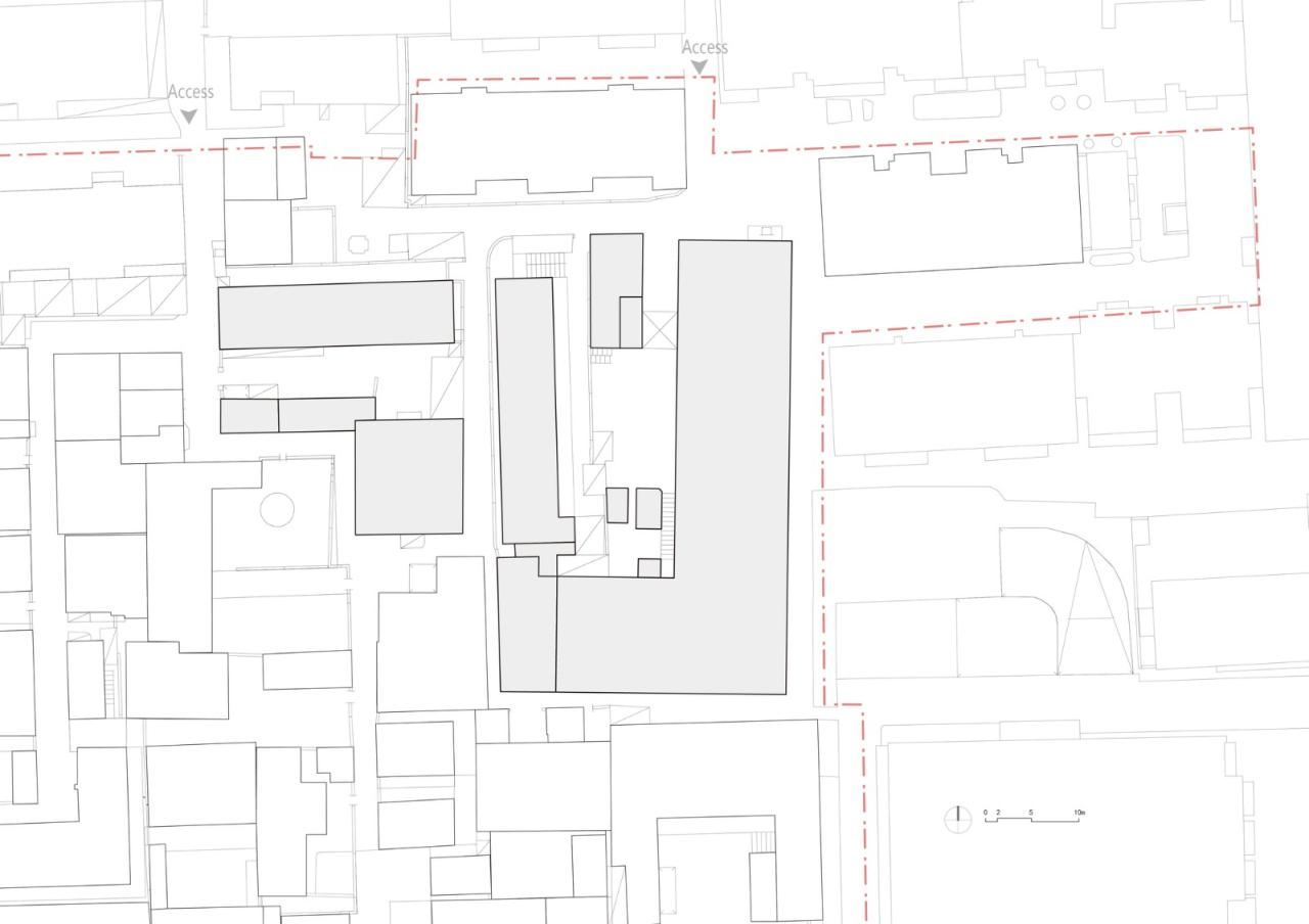
△基地示意图

△原场地平面图

△总平面图

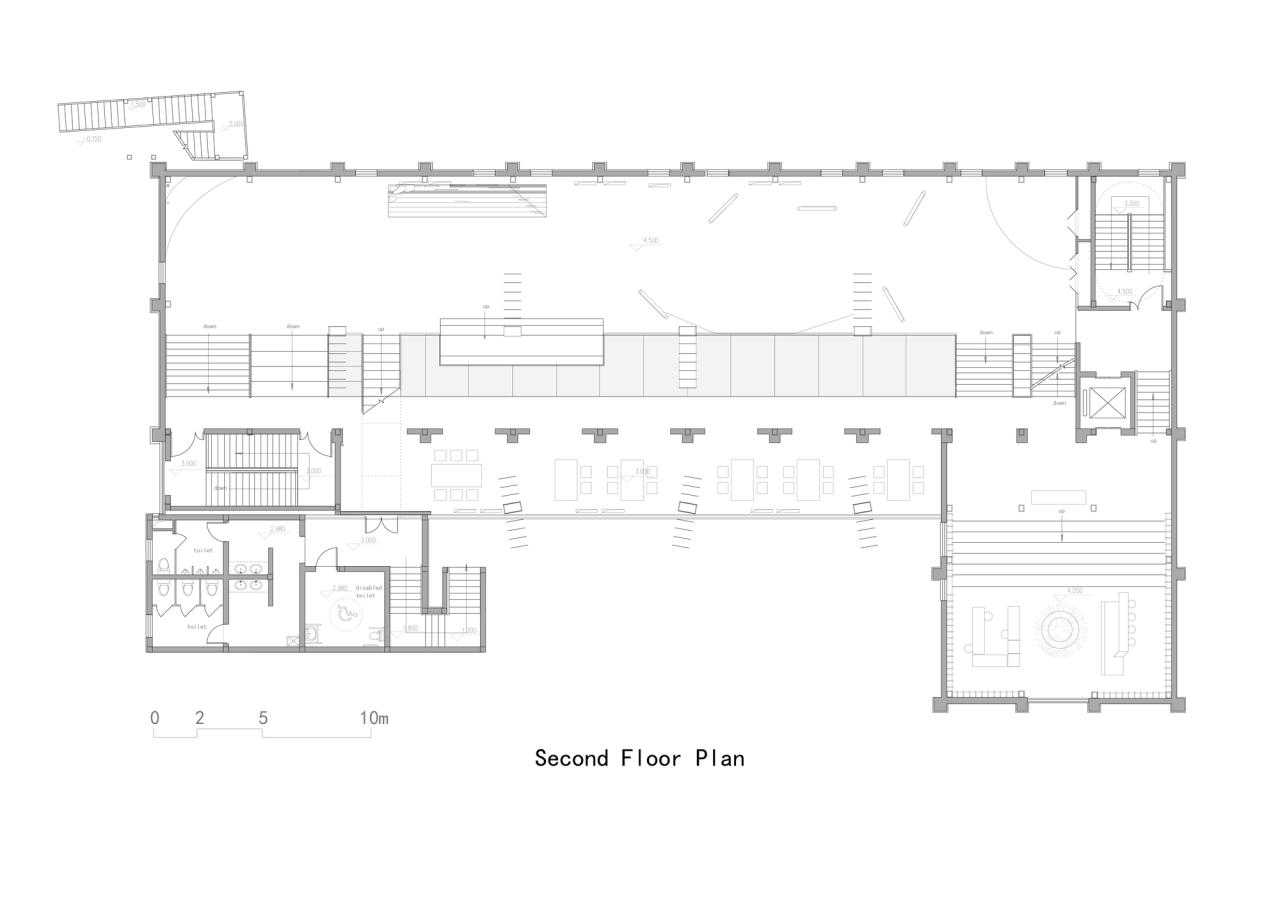
△二层平面图

△屋顶平面图

△立面图

△剖面图

△剖面图

△剖透视

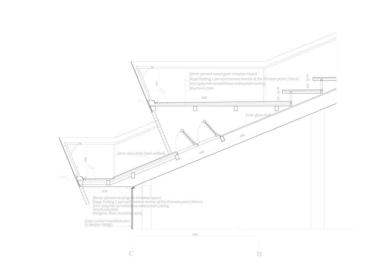
△细部结构大样图

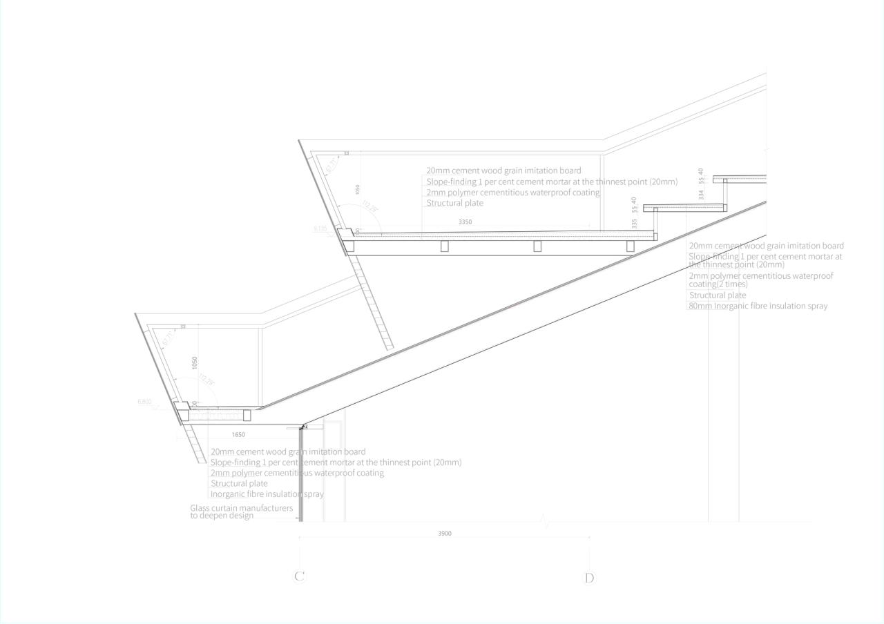
△细部结构大样图

△轴侧分析图

△轴侧分析图

△轴侧分析图

△轴侧分析图

△爆炸图
项目信息
建筑师: SpActrum 谱观
面积: 4586 m²
项目年份: 2022
摄影师:苏圣亮, 朱迪
厂家: 西顿照明
主创设计师: 潘岩
设计团队: 潘岩,李真,唐一萌,李影,陈浩,孟祥龙,ShAil Paragkum Patel,Gregorio Soravito,万金宇
施工方: 杭州萧山广宇建筑工程有限公司
景观设计: 上海普厚景观设计有限公司
结构设计: 中外建工程设计与顾问有限公司
灯光设计: 法国昂特灯光设计
幕墙设计: 公和设计集团有限公司
委托方: 绍兴名城办 ,开元文旅
地点: 绍兴

BIM建筑网





评论前必须登录!
注册