济南市历城区彩石街道东泉村,作为山东省景区化村庄、及第一批国家森林乡村的示范村,其优美的自然风景、质朴的村落风貌,是民宿设计中最想要展现的核心。本案作为业主投资建成的村落规模民宿首开区,分为四座建筑,每座建筑独立成院,形成具备示范作用的小型民宿集群。

项目集群所在的片区,位于东泉村老旧区域,西邻村内的自然河道,河道曾经泉水潺潺,近些年在改造修复的政策扶持下,伴随着乡村振兴的国家政策,联同村落开发保护并行,开始逐渐恢复河道水貌。

△ 村落总平面图,红色区域为本案区域,蓝色区域为自然河道,灰色为村落中的原住民房屋。
因项目地南侧与东侧均与民居相邻,西侧临河道,北侧临村道石板坡路,因此,西侧和北侧是可以打开的风景面,且北侧为地块唯一入口界面。
在建筑设计上,由于项目周边紧邻村民宅屋,本次设计即从周边场地逻辑出发,尽可能减少对村民生活的干扰。把尊重场域周边环境作为出发点,将原生态风景放大强化,让村落景观变得更加鲜明,以景为据,以景为框。


△ 村落周边地理环境

△ 本次设计地块平面图,可以看到1# 到4#建筑分布位置
总的来说,地块南侧为规避吵闹、消防及隐私问题,设计尽量保证了南侧墙面的完整,不产生视线对视的问题。但西侧、以及必要的北侧二层以上位置,保留了大面积开窗,每一栋建筑的开窗位置、均根据室外窗景环及室内观景位置设立,人居环境更贴近自然。
在室内外材料的选择中,设计充分考察了村落的建筑特点,以毛石、夯土、水泥为基本元素构建了整体的民宿群落。



从建筑到室内,本次设计致力于打造出一个既能融入传统村落,又能因地制宜地塑造当地民俗风情的田园居所,根据地形特征因势利导,形成各有特色的四座空间盒子,从而达到远离城市而不远离喧嚣的特征。
01 光影之盒
——1号院 | 软光里
光影之间
石墙与树影交相呼应



1号院,位于地块左上角,西侧临河道,北侧临村道石坡,占据了最优的风景。故设计在西侧和北侧,预留了大面积开窗,同时二层为了不浪费稀缺风景的可能性,预留了一处露台。
室内空间考虑到人的行为适应,1号院被划分出公共客厅、娱乐和居住功能区域,共两层可容纳10人。一层集中为卧室起居,二层是公区,以便从行为上贴近露台风景。

△1号院分隔空间形态
建筑外立面主材质:毛石、夯土漆、木挂板
一层入口玄关两侧做了镂空玻璃砖的点缀设计,将光源通过点状分布的玻璃砖洒落在地面,虚实结合。光成为了媒介,增加人与自然在空间中的互动体验。

△入户玄关
一层分别有三个卧室,西侧是两个两人间,西卧室1带有一个小庭院,西卧室2玻璃砖为主要设计元素,大面积开窗针对室外景观,为限制的可能性下增加风景连通性,东侧卧室为两间榻榻米,拉近人与人的距离。

△一层西卧室

△一层东卧室

二层配合露台,公共空间的餐厅客厅融为一体,可会议、聚餐;室外露台带有泡池,可以亲子嬉戏,露台可以烧烤,面向村落河道,风景尽收,可观景观山。

△二层客餐厅

△二层露台
02 植物之盒
——2号院 | 秘林之境
繁茂雨林,葱郁丰茂
多彩与风情共存



2号院共两层,院落南侧紧邻村民宅院,故仅能在西侧临河道位置,预留大面积开窗,以达到风景最大化,尽可能保持视线通透。如此,2号院如同一个完整紧致的礼盒,将室内空间的分配、以西立面风景而设置。一层紧邻西侧为挑空公共空间,所有的卧室功能归到了东侧,整体可容纳9人。

△ 2号院分隔空间形态
建筑外立面主材质:夯土漆
一层超高挑空的大客厅,带有西侧超大开窗,观景观山,通高的毛石造型墙带有壁炉增加闲适的氛围,室内配有大量热带仿真植物,增加民宿主题性。

△挑空客厅
为了打造植物之盒,一层热带椰子树贯穿两层,室内墙体大面积采用玻璃砖,透光不透人,引进光源,增加乡村景观亲密性。二层主为卧室,玻璃砖墙体与工区绿植呼应,二层卧室因临东侧难以开大窗,故增设两个天窗,白天增加采光,夜晚观星。


△二层室内阳台,连接一二层超高椰子树


△二层卧室
03 粗粝之盒
——3号院 | 一池墅
山石池水之间
回归内心的安宁


3号院共两层,室内空间可容纳13人,是唯一带有独立庭院的建筑。受到西侧1号2号、以及东侧4号的夹击,南侧又紧邻村民宅屋,只能在有限条件下,尽可能利用西北侧空缺,形成自带风景的庭院,同时也将一层挑空的公共空间,尽可能放大建筑通透性,形成可看的风景。

△3号院分隔空间形态
建筑外立面主材质:毛石、木挂板、清水混凝土
挑空客厅作为室内公共空间,紧邻庭院,超高挑空玻璃为室外景色进入室内打造最优条件。


△挑空客厅
折面黑色钢梯成为了室内外双循环动线,室内外活动呼应,室外庭院带有泡池,室内含有娱乐空间,公共空间的内外融汇成为了3号院的亮点。


△室内外楼梯
3号院的卧室较为独立,与公共区域分开,客厅同样有两面超大开窗,一能欣赏远山,二能观赏院内景观。


△二层卧室
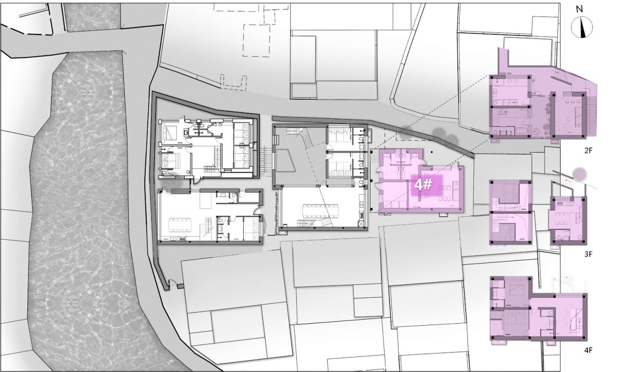
04 叠层之盒
——4号院 | 叠叠堡
避开俗世喧嚣
走进一方净土,茶禅一味



△4号院共四层,室内空间可容纳8人,一层为接待与后勤管理,二层及以上为3处完全相互独立的loft类型客房。

△ 4号院分隔空间形态
建筑外立面主材质:毛石、木挂板、夯土漆
Loft 01和Loft 02,因本身尺度体量小,故将居住的“床”功能抬高为“巢”放置2层,卫浴与休憩板块都位于Loft一层,在极限尺寸中寻找各自的风格表达。

△ LOFT 01轻泥——侘寂极简,在微观尺度中保持视觉简净。


△ LOFT 02聆竹——日式MUJI风,设置浴缸,尽可能在小尺度中完善内脏全面。
LOFT 03为套间,占据顶层位置,在现代性极简中寻找复古美学,含有餐、客厅和两间客房,其中南卧室含有观景极佳的露天阳台。
在施工期间,针对现场情况及周边环境,设计也对原方案做出了一定优化,使空间更加适用。客厅上方墙面增加了书架山墙,充分利用了层高作为主题功能,增加人在空间内的互动,丰富活动场景的可能性。


△LOFT 03忆巢——通过“乡土”和“艺术”的碰撞,还原最淳朴的澄迈乡土风情。
05 结语
作为首开区地块的民宿样板设计,在条件有限的情况下,尽可能使用设计逻辑弥补条件不足。而在功能架构上,设计围绕“亲情、友情、爱情”三种聚合模式,设立了不同的户型,每号院落均有着超大面积的公共空间来弥补场地有限的不足,院落设置不同,也是着眼于城市近郊民宿市场,打造差异化的在地产品。


△乔木的树荫为室外增添了不可替代的自然氛围。
东泉村民宿集群,联通了乡村振兴和绿水青山,设计以文旅融合发展,致力于推动乡村旅游差异化、特色化发展,推进多元功能聚合,营造宜居、宜业、宜游的休闲新空间样板。
项目信息
项目名称:济南东泉村民宿集群设计
项目位置:山东省/济南市
占地面积:732.5 ㎡
建筑面积:1069㎡
室内面积:695 ㎡
设计单位:CCDI卝智室内设计中心
设计/竣工:2021.04-2022.11
设计主持:李秩宇
方案设计:张新雨、浦玉珍、董宇曦、郭启嘉、张澎晖、王欢、曾荟凡、王骁夏
深化设计:白亚玲、吴雯淏、龚磊
设计合作:袈蓝建筑 SYN Architects
业主信息:山乡集团九女峰(泰安)乡村振兴有限公司
酒店管理:后院Rareyard 精品民宿

BIM建筑网





评论前必须登录!
注册