
洱海苍龙现,落笔成字化为村名曰“文笔村”此项目位于大理文笔村。

可遥望苍山洱海
古城在翻云吐雾间
淡淡如烟似仙境
有诗题记
我居北海君南海
寄雁传书谢不能
桃李春风一杯酒
江湖夜雨十年灯






风逐花
诗情散落软软天盘中
剑洗雨
斩不断情雾绵绵
璀璨俗世曲曲折折
云水流觞
剑斩落霞
揉成纁(xun)黄
染遍这曲曲折折
便豁然开朗





引光入室
沉木刻痕
雨后又有多少江湖事初现
剑走红尘里
落茶不夜城
避世缦山中




半山沐雨
云气如仙
暗香藏风
不惊听雨声
初霞雨后晴空
千鹤排云上
小楼隐碧霄





木聚成桌
点缀了荔肉白的墙
西窗如画
天圆地方
穿梭于镜头之间
天水共色




对饮这般天色
苍龙隐于浮云
星月藏于暮霞
你我居于缦山






日沉西窗
疏影斜斜
光飘落于四壁之间
随之窅(yao)然而去
别有天地
犹如仙境



琴弦刻门岁月深
伴点星辰做柜门
玄木旧痕
平安桌上
时无英雄
只有共揽洱海月
共枕一梦



墙有曲折如穴
冰肌玉骨
自清凉无汗
光随着墙弯曲慢慢延伸
穴池满水色如光
水洞风来暗满香




卧看灯火阑珊
回廊烟雨
木构为骨
千年凝聚
回首床前
星萃木留痕
点点滴滴
汇聚成诗



床前沐浴出景
浅淡春山
娇柔柳腰
海棠醉日

对饮苍山
钟灵毓秀
欲醉不还
落晖苍雪
树树如秋
洱海流云
薰风入弦



摘星辰
又恐惊仙人
船载清梦渡星海
复醒才知天在水
仙醉把白云揉碎
扶于琼楼玉顶
百花癞于浮云之间
暗香消魂卷风中开得烂漫


花间风笛
案上品茗
晓看天色暮看云
行云间
只见分花拂柳
浮香绕云间
不远不近的欣赏


其素若何,春梅绽雪
其洁若何,秋菊被霜
其静若何,松生空谷
淡淡的喜欢
不至于乱了初心
败了芳华
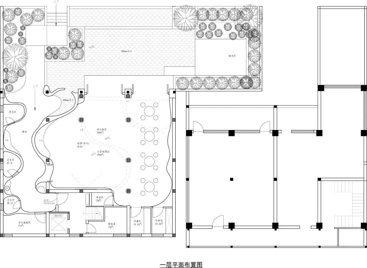
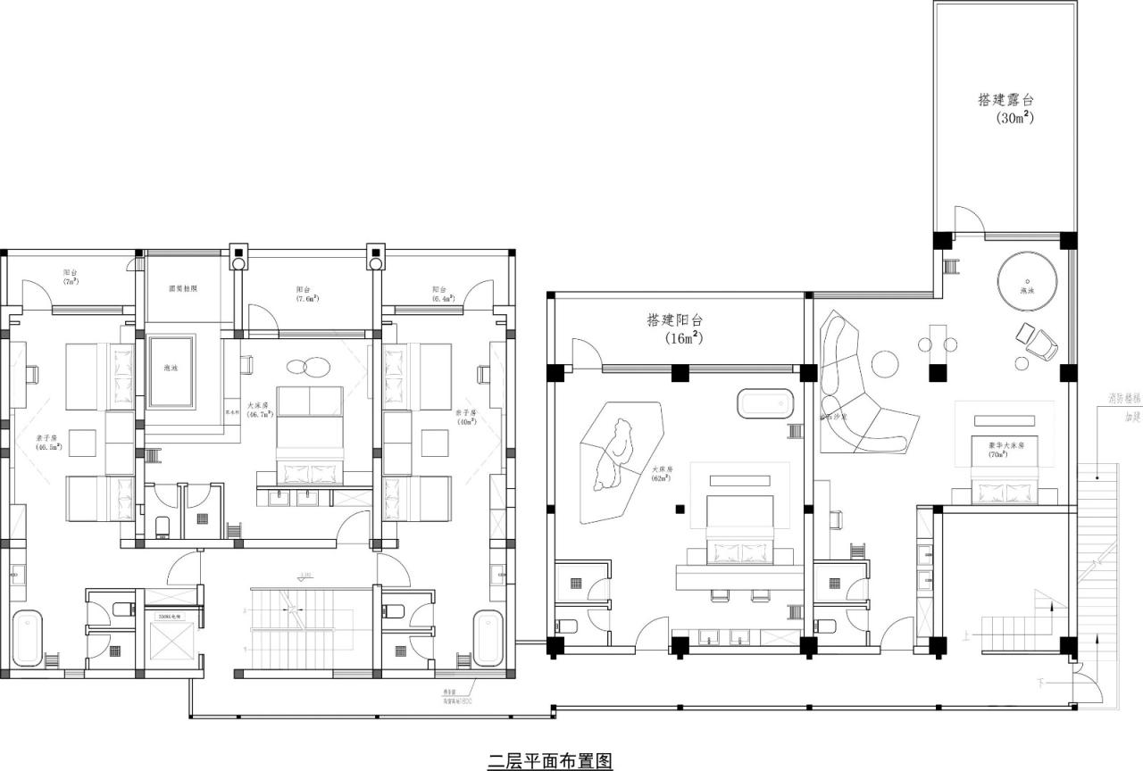
项目图纸




项目信息
项目名称:缦山一色 二期
项目地址:云南 大理
项目状态:已建成
项目业主:缦山民宿
全案设计:长空创作
设计主创:张宝华
参与设计:李泉江 张定远 周林华 王瑞
项目监制:刘思唐
设计面积:1985㎡
设计时间:2023.05
竣工时间:2024.04
项目摄影:王思辰

BIM建筑网





评论前必须登录!
注册