
2024年4月30日,由FTA建筑设计事务所设计的中交·壹里科创云廊开园,项目一期正式交付投入使用。
500米,称之为“1里”,它是马拉松比赛中的最后一段冲刺,也是海洋中一次深潜的深度,这个数字代表着迈向未来的决心,也代表着对未知的探索。在宁波奉化,同样有一个因时代而冲刺的“500米”——中交·壹里科创云廊。


中交·壹里科创云廊地处奉化融入宁波主城区的桥头堡位置,是中交未来城的核心启动区,占地180亩,建筑面积31.5万平方米,分两期建设,一期建筑面积15.6万平方米。北侧和东侧毗邻大欧河,西靠中交未来城的主要货运通道汇诚中路,南临葭浦路,与奉化区城市展览馆隔河相望。
中交·壹里科创云廊凭借优越的地理位置和资源条件,承接宁波的产业外溢,以温暖的产业创新区、全天候智慧园区和高品质园区形象,打通从知识到生产的最后壹里。


01 承接产业外溢,长三角远端成长企业总部基地
2016年奉化撤市设区,大量的科创要素及产业人才持续向“宁波甬江科创大走廊”集聚。宁奉城际铁路的开通加速了奉化融入宁波的进程,为区域承接产业外溢提供了天然的优势。
中交未来城处于宁波甬江科创大走廊的南延线,围绕上海的科技优势和本地制造能力,打造长三角科创远端响应基地,成为创新湾区及走廊中的重要节点。
宁波加速融入长三角一体化背景下,中交·壹里科创云廊作为奉化核心产业区的重点项目,对于提升营商环境、促进产业升级、强化产业链具有重要作用。园区以智能制造、新材料、文化创意为主导方向,集生产、创新、展示、商业功能于一体,致力于成为长三角远端科技创新企业的成长基地,形成企业加速成长的生态圈。


02促进城市转型,M0新型产业用地一号地块
“新型产业用地M0,指融合研发、创意、设计、中试、检测无污染生产等新型产业功能以及相关配套服务的用地。”
随着产业的发展,很多创业基地、新兴科技产业不再需要传统的生产厂房,更多地依托于类似写字楼的办公科研产业空间,M0新型产业用地应运而生。M0融合研发、办公、展览、居住、公共设施等多种功能,通过高度的产业包容性,服务于更多样的产业形态,能够有效降低新兴、科技产业的试错创新成本,吸引科技型企业,有助于产业集聚。
中交·壹里科创云廊所在地块为奉化区城市转型示范区首批启动的一号地块,聚焦智能制造、新材料、文化创意,通过金融服务、技术服务、企业服务、产业链服务、配套服务五大服务体系,为17平方公里中交未来城树立产业地标,为企业总部、城市产业转型升级提供了发展载体与实体。


03 产业生态系统完善,“打通知识到生产的最后壹里”
知识到成果转化的关键在于搭建研发成果对接市场的桥梁,作为产业生态培育的全新平台,中交·壹里科创云廊将以科技创新为主导产业方向,重点引入科技服务、金融服务、商务服务三类服务型企业,打通初创-孵化-加速的企业成长链条,以及创意-研发-小试-中试-市场化的业务发展链条,形成完善的产业生态和科创集聚高地。
中交·壹里科创云廊涵盖展示中心、服务中心、产业大厦、研发总部、中试车间、众创空间、人才公寓及商业配套等多元丰富的业态。通过“云廊500米”,串联起产、创、展、商等功能模块,满足中小型企业、大型知名企业和独角兽企业的多样化需求。
一期落成产业大厦、研发总部和独栋办公组团等有梯度的复合型产品,完善住宿、商业等配套设施,同时通过展示中心展示城市文化及片区形象,树立标杆。


04从工作方式到生活方式,三大创新场景回应
在创新驱动的时代,产业社区不仅为其中的用户提供物理空间,更要强化企业之间的联系,形成更具活力的产业社区。中交·壹里科创云廊通过复合产品线和魅力特色街区,链接不同行业和阶段的企业,为不同场景设置产业社交、工作社交、生活社交等社交环境。通过设计“云创”、“云玩”、“云游”三个大场景,从不同维度创造链接企业的高密度创新网络。


/ 完善的产业生态系统/
云创,产业休闲化!
中交·壹里科创云廊通过前瞻性的空间布局,形成领军企业、研发机构、创业系统、人文生活、培训活动五大功能区,构筑完善的产业生态系统。其中,科创云廊以多维度形态贯穿于园区,由服务配套(商业)、企业服务、企业展示馆、创业平台、共享办公构成,形成“企业活力环”,激活创新氛围。
作为中交·壹里科创云廊的重要组成部分,展示中心不仅设置了客户体验及园区的展示功能,同时承担着整个园区的服务配套及形象展示的作用。
展示中心容纳云咖、云创、云聚、云顶与屋顶露台五层风格多元的体验空间,同时将会展功能延伸到室外,将景观引入建筑内部,建筑与环境相互交融。这里不仅为创新人才提供学习互动的交流平台,同时也成为周边居民休闲慢生活的打卡地。

/ 吸引并留住人才/
云玩,工作娱乐化!
园区内部设有两条魅力特色街区,以及云市集、云剧场、云乐园三大主题商业配套,成功打造了一个7*24小时的全天候休闲社区,为不同的场景设置了多样化的社交环境,营造出创智式的生活氛围,打造具有“温度”园区空间,展现园区的国际化创新形象。
公共空间将产业空间、服务配套和市民生活结合在一起,通过三层空间的有机连接,形成连续的城市开放街区。体系化的“街区生活”带来了高聚集效应,为企业和人才的创造性提供了良好的环境。灵活的平面设计和内外交融的开放空间,使得项目不仅仅是一个传统的产业园区,而是一个真正服务城市、产业和知识人才的“全生命周期”产业生态雨林。


/ 吸引并留住人才/
云游,环境生态化!
园区内的环境设计注重生态和可持续性,中轴景观大道、空中花园连廊、组团景观中庭、环园运动步道与沿水生态长廊五大生态景观片区,满足员工景观观赏、运动、休闲等日常需求。作为整个园区的生态核心,中轴景观大道以“THE SPINE”为概念,设计了一条贯穿南北的中央绿道,承载了划分园区生态的功能,同时为人提供了一条漫步路径,结合景观坡地的设计及休憩座椅的配置,营造出一条宜人宜步的园区绿道。
空中连廊连接串联各个功能区,通过一条架空步道。设计上,这些连廊不仅是行人的通道,更是一个充满生机的空中绿地。通过丰富的植被和景观布置,空中花园连廊为人们提供了一个可以休憩和享受自然的空间,同时提升了园区的生态体验和视觉效果。

独栋办公组团之间的景观中庭是一个充满活力的社交绿洲,通过多样的景观组合,创造了不同的室外社交空间,为员工提供非正式交流、共创和放松的场所。中庭成为了灵感碰撞和创意激发的温床,让工作环境更加宜人和富有活力。
环绕整个园区的运动步道,设计上考虑了多样的活动需求,步道沿线布置了不同的景观节点和休息区,为员工提供了跑步、散步和其他运动的理想场所,让健康生活成为日常的一部分。

沿水生态长廊充分利用了园区的水体资源,打造了一条充满自然气息的步道。长廊两侧结合水生植物和生态景观,为人们提供了一个亲近自然的机会,同时也提升了园区的生态价值和美观度。
通过这些设计,园区不仅满足了人的观赏、运动和休闲需求,同时通过绿色建筑和智慧园区的理念,为企业提供了一个有氧生态、自由激荡的环境,提升人的潜力,释放空间的最大价值,使中交·壹里科创云廊成为一个真正意义上的生态智慧园区。

愿景
前瞻设计,面向未来
中交·壹里科创云廊通过先进的设计理念和创新的空间布局,打造了一个全新的产业生态系统,园区已吸引众多优质企业入驻,包括国家级高新技术企业、“专精特新”企业等科技企业。此外,园区的产业服务体系也日益完善,涵盖企业技术服务平台、银行、行政服务中心、人才公寓、餐饮配套等各类机构和设施。
中交·壹里科创云廊已经成为一个充满活力的创新社区,“壹里的500米,世界的500强。”随着园区的不断发展壮大,通过产业与城市的深度融合,园区将持续为经济发展注入新的动能,助力实现更高的产业价值和社会效益。

项目图纸

△项目示意图

△功能分区图

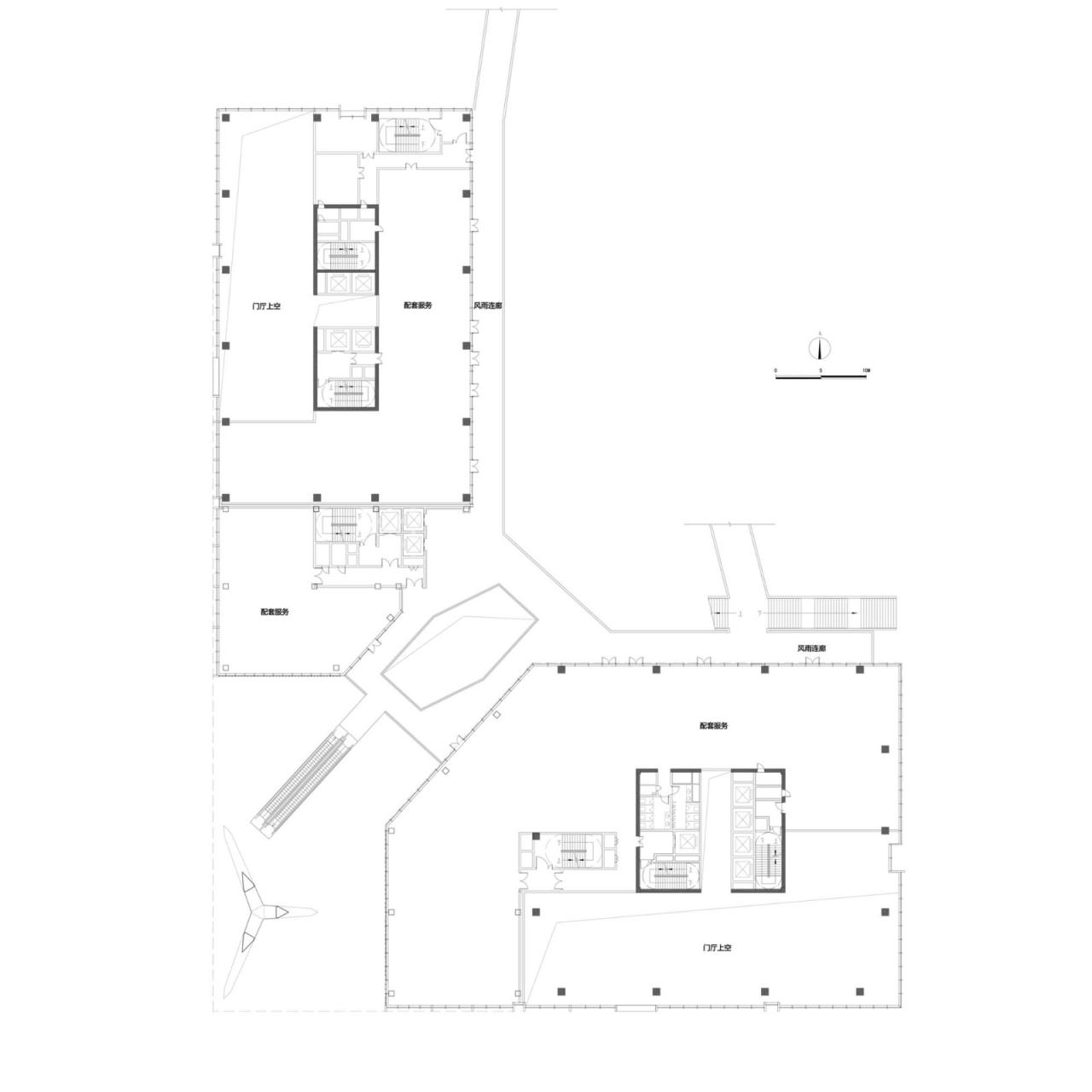
△总平面图

△产业大厦平面图

△产业大厦立面图

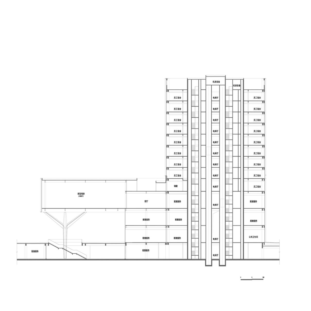
△产业大厦剖面图

△多层独栋平面图

△多层独栋立面图

△展示中心二层平面图

△展示中心立面

△展示中心剖面图

△剖透视
项目信息
项目名称:宁波中交·壹里科创云廊
项目类型:办公建筑(已建成)
设计方:FTA建筑设计
设计年份:2018年11月至2020年05月
完成年份: 2023年8月
设计团队:FTA建筑设计
项目地址:浙江省宁波市奉化区江口街道葭浦西路98号
建筑面积:31.5万㎡
摄影版权:章鱼见筑
客户:中交城投(宁波)产业发展有限公司
建筑材料:玻璃、铝板及仿木纹铝板

BIM建筑网





评论前必须登录!
注册