
海东市城市规划展览馆位于青海省海东市南凉遗址公园西南角,兼顾规划展览、旅游接待、遗址展示等功能。十六国之一的南凉古国都城遗址,就在海东市乐都区主轴线上。由中国院整体规划的南凉遗址公园分为遗址展示区、市民活动区和地下商业,以及规划展览馆和景观配套,可谓海东市核心区的“中央公园”。



基于遗址公园历史保护原则,需尽量弱化地上的建筑形象,同时自然无缝衔接遗址区,丰富游客的场景体验。设计利用开挖地面的方式,以在地生长的“根系”脉络为原型,将建筑消隐于大地景观之中——蔓延交织的栈道、阶梯、坡道成为时空叙事的开端,实现了四面八方的人流汇聚。引导性的路径叠加乡土材料,使在其间行进的人们仿佛历史的穿越者,一步步身临其境而沉醉其中。



水平空间
建筑的主要空间由多个方形大厅组合而成,与青海省传统民居“庄廓”的方形院落型制耦合。灵活叠加扭转错动,构成几何抽象的聚落群体。


垂直空间
下沉式院落生成错落有机的屋面层级,使游客的活动空间在不同高程叠加,成为建筑在大地上的“站立方式”。



精神空间
锈钢穿孔版饰面的观景塔从地下一层展厅拔地而起,穿过透亮的天窗直升于20米标高处,仿佛一座碉楼矗立,作为建筑“举向天空的方式”。


材料搭配
夯土颜色、横纹肌理的条形陶板作为主要的外墙材料,与庄廓土墙相呼应。场地选用本地特有的湟水河石露骨料铺设,表达高原河谷的粗犷。



尺度控制
从街角广场标高开始,所有人工“墙垣”严格控制低于人的视线尺度,实现了开阔的视野和历史的沧桑。是为建筑“向周边伸展的方式”。




结语
我们以当代地域建筑的设计方法,探索建筑“在大地上的站立方式、举向天空的方式、向周边伸展的方式”。栈道、廊桥、墙垣式的游走路径,营造出追踪寻根、登高望远、观展游园等体验经历。
丹霞映山,残阳漫道,长垣刻壁,时光雕影!



项目图纸

△建筑生成图

△功能分区图

△公园总平面图

△规划馆总平面图

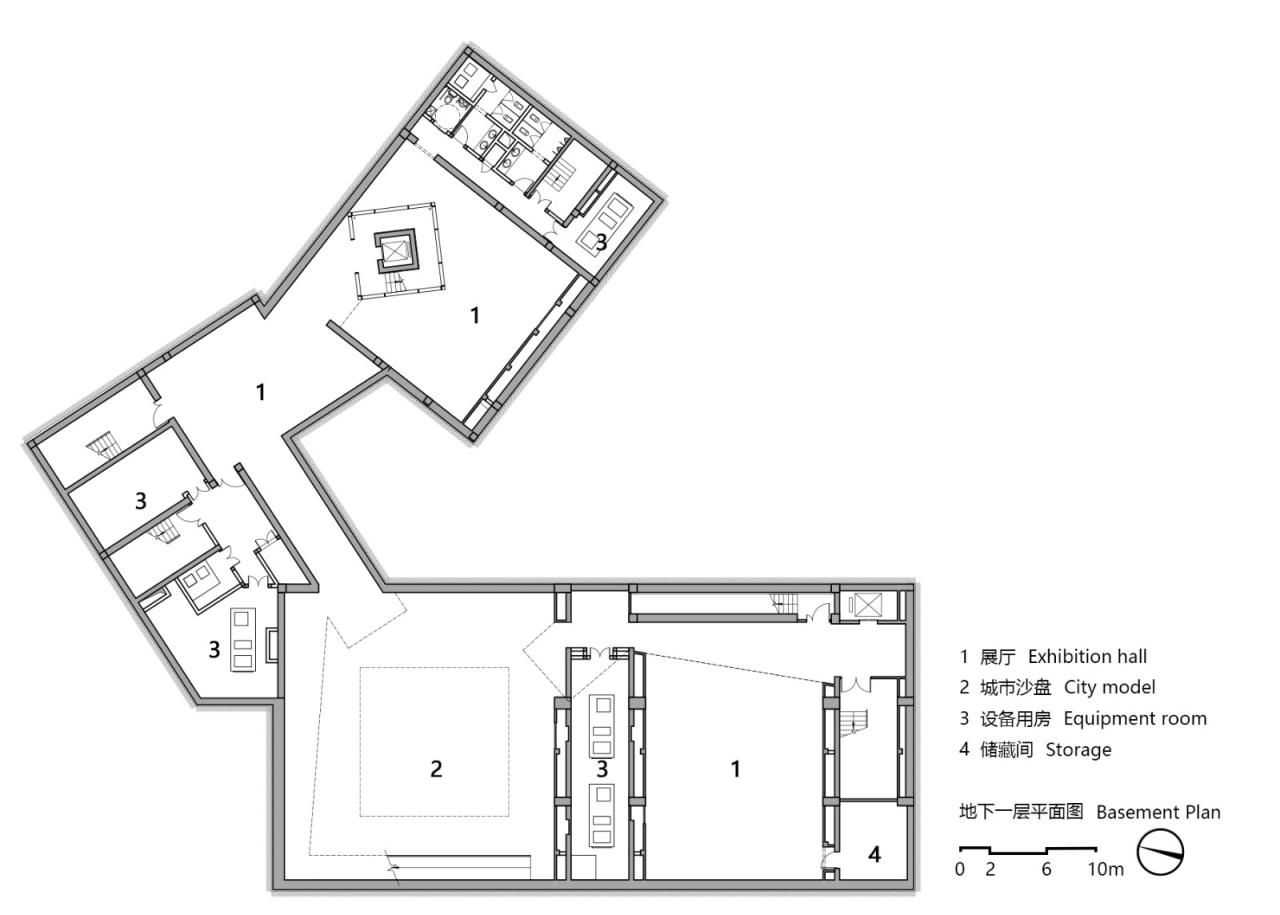
△地下一层平面图

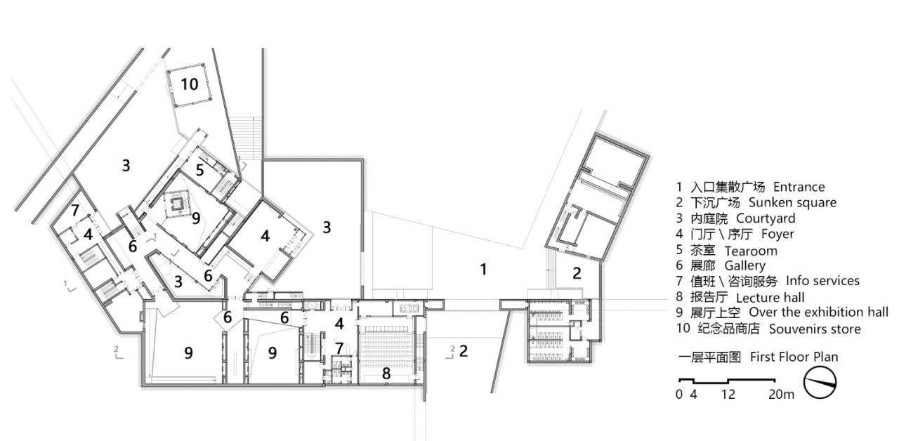
△一层平面图

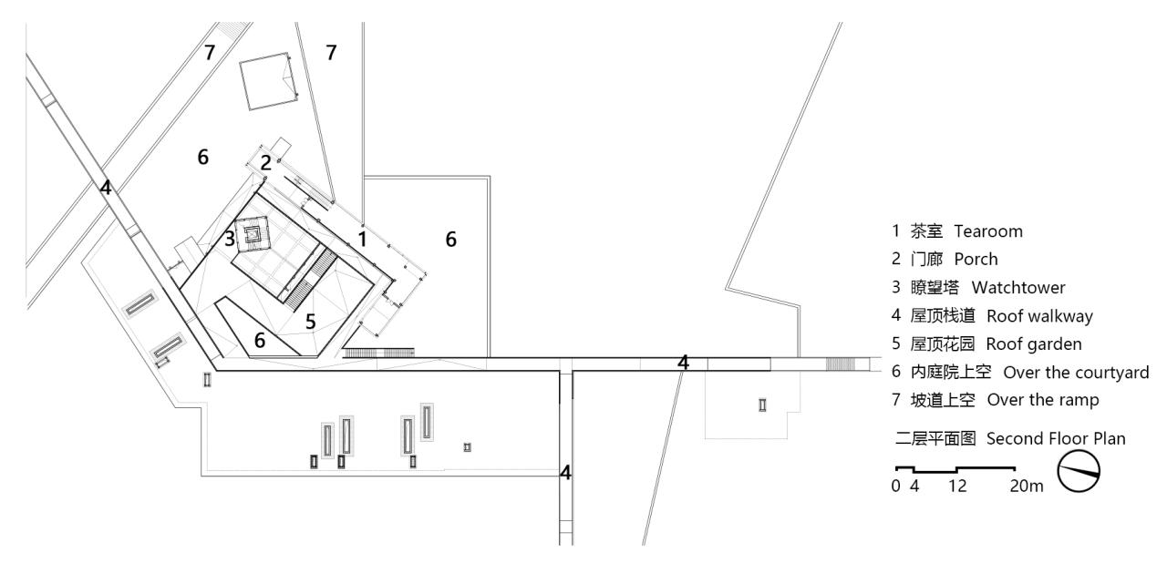
△二层平面图

△剖面图

△剖面图

△立面图

△立面图
项目信息
建筑师:中国建筑设计研究院
面积:25000m²
项目年份:2022
摄影师:王子凌
主创建筑师:崔海东、王丽阳
设计团队:李曼、董雅秋
结构设计团队:郭天焓
MEP 设计:唐致文、王存凤;(HVAC)韩武松、宋占寿;(电)李磊、沈晋
室内设计:曹阳、张洋洋
景观设计:赵文斌、路璐、王洪涛、孙昊
幕墙、照明设计:浙江中南建设集团有限公司
项目经理:Jiwei Xu
委托方:海东市城市开发建设投资有限公司
建筑设计公司:中国建筑设计研究院有限公司-品筑设计工作室
施工方:陕西华萃路桥工程有限责任公司
地点:海东市

BIM建筑网





评论前必须登录!
注册