
戈壁:博古其坐落于天山和塔克拉玛干沙漠之间的一条狭长地带上,年降水量不足20mm。从卫星地图上,人类活动的尽端就是绿色的边界。华山中学博古其校区就坐落在此。


方城:“方城”是建筑对抗外部环境的策略:整个学校以简单的大小两个方环构成,大环是教学功能,而小环是住宿。“方城”是从戈壁中切割出的“局部人工自然”,呈现出强烈的防御性,一种保护内部抵御自然力量的决心,是从戈壁黄沙中切出的教育之城。方城四层高的建筑横向延伸达140m,让建筑与无边无际的大地产生了紧密的联系。



庭院:“方城”内近9000平米的巨大庭院是一个人造的自然,“百树园”因此而生。庭院地形处理成了高差近3m的微地形增加了空间的层次感,期待有日“绿树阴浓夏日长,楼台倒影入池塘”。庭院在西北角开放,形成了一个户外演艺广场。



力量:连续的水平线条、简单的形体关系具有一种强大的力量,这是西部特征也是当地施工能力的协调。在苍茫的大地上,直接明了是一种自然的气质。夸张的构建尺度对比强化了这种感受。



砖工:如果简洁是种力量,那局部的砖工体现的就是温情。在大面积的涂料墙面中重要区域使用真砖砌筑,创造了与主体建筑的对比,砖工的存在使建筑呈现出强烈的手工感,为粗犷的建筑增添了一份温暖。




聚会:学校就是一个聚会场所。四层高的学习中心中庭空间内部明亮,顶部是均质的锯齿形天窗。整个空间呈现出开放、交融的姿态。纵向的共享中庭是一个多功能大厅,为未来的教学提供多种可能性。



图书馆是教学方环和宿舍方环的交汇点,是整个学校的交通核心。圆形中空中庭向公共空间敞开,光线从顶部洒落,使中庭明亮祥和。这是书籍与精神世界的交流的场所。多年后一定会成为学生们最深刻记忆的地方。



落日:西侧打开的空间通过巨大的7个连续拱门连接内院一侧,这些超大型构件既是对地域的回应,也进一步突显了“城”的概念。每天学生都可以观察太阳从哪个拱门落下,这不仅是知识的积累,更是校园形成集体记忆的焦点。









项目图纸

△总平面图

△一层平面图

△二层平面图

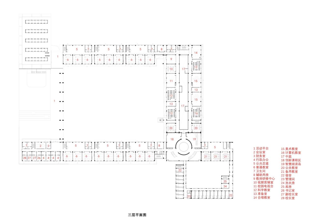
△三层平面图

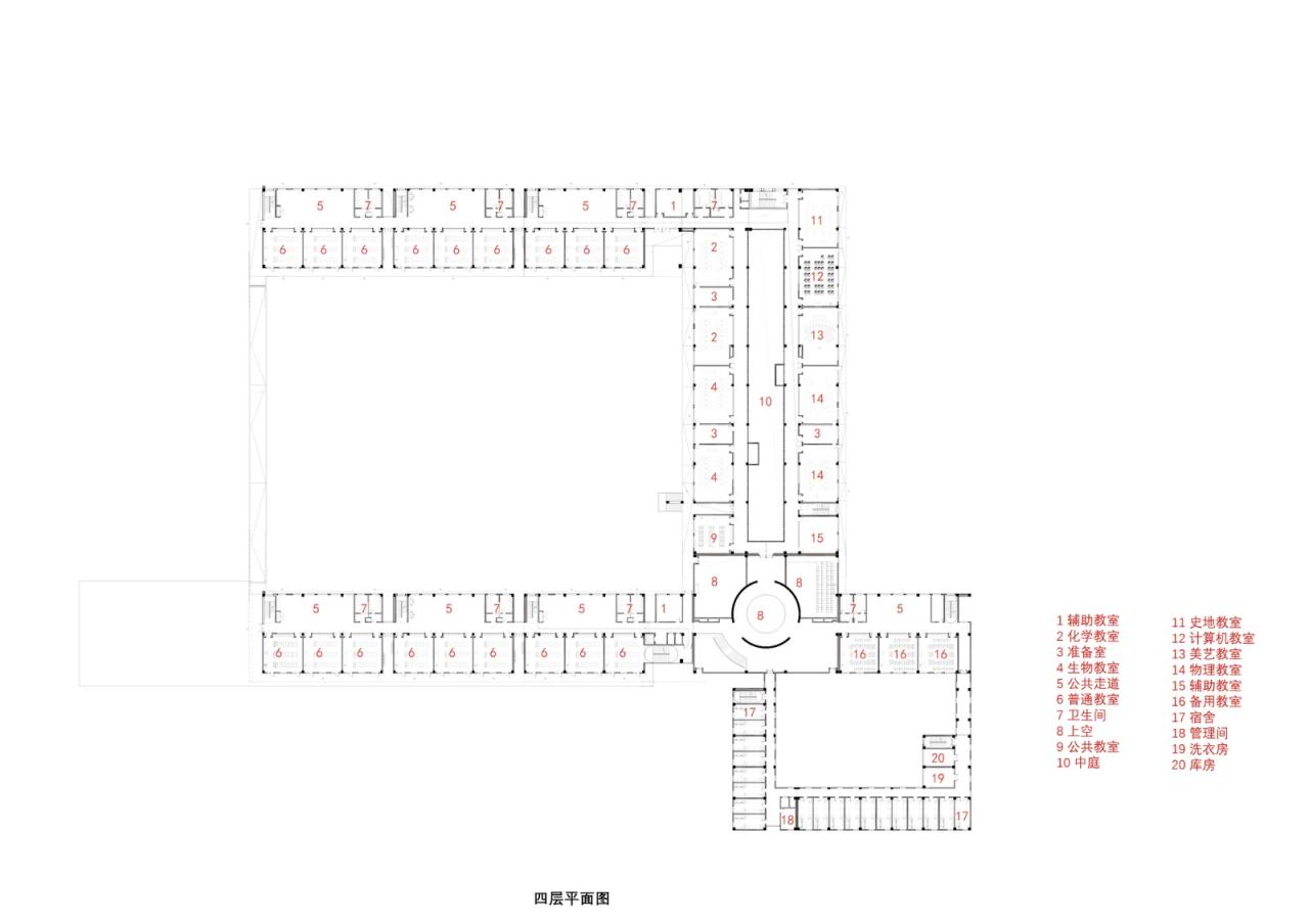
△四层平面图

△立面图

△立面图

△剖面图

△剖面图
项目信息
建筑师:荣朝晖工作室
面积:45800m²
项目年份:2022
摄影师:存在建筑-建筑摄影
主持建筑师:荣朝晖
建筑师:王雪丰,王恺成,宋鹏,陈杨帆,王之昊,李化晓、黄明亮、周剑君、左潇希
结构设计:李俊果,吴秀亮,杜承宗
给排水暖通专业:张震宇,赵小凤,王腾,鞠玉群
电气专业:王云飞,刘启
委托方:新疆农二师华山中学
室内设计:江苏中锐华东建筑设计研究院有限公司
景观设计:江苏中锐华东建筑设计研究院有限公司
施工图设计:新疆城乡建设工程设计有限公司
施工方:新疆环宇建设工程(集团)有限责任公司,新疆铁门关市三建建设工程有限公司
地点:铁门关市

BIM建筑网





评论前必须登录!
注册