EKA天物艺术街区位于上海浦东新区金桥板块,原址为上世纪五六十年代中船航海仪器厂,受业主方委托对该地区进行整体规划改造设计。「远舰」原为航海仪器厂的机电楼,作为街区单体体量最大的建筑,且占据主入口的优势位置。在对其梳理与更新中,本哲建筑尊重历史遗产和保留原有航海文化记忆,巧妙地运用当代设计语言,赋予建筑新的生命力。踏足EKA天物的第一刻起,就感受到街区独有的航海精神。

△中环边上的远舰 ©苏圣亮

△俯视下的北立面 ©苏圣亮
「远舰」位于街区主入口,与中环隔空相望,也是EKA天物对外的展示窗口。原有建筑为长方体厂房形态,略显单薄,外观传统排布。我们决定采用大面积钢丝网面,将旧建筑通体合围,体块叠加重置,原有外部肌理被保留,新旧融合。包裹艺术的运用,让整个建筑外观统一,气势尤升,远似巨舰,唤醒园区的航海记忆。黑色钢网包裹中的建筑隐约而神秘,让人一探究竟。

△鸟瞰中的远舰,远处上海母亲河黄浦江 ©苏圣亮

△俯视下的东立面构成与肌理 ©苏圣亮

△远舰在EKA·天物街区的定位 ©本哲建筑

△建筑旧貌 ©本哲建筑
一楼开放式设计,北侧新置外挂楼梯,底部、上部两处。上部楼梯蜿蜒折叠,打破建筑外观的平衡。底部楼梯由水刷石营造,颇具雕塑感,穿行于建筑内外,虚实变化。北侧立面穿插多处露台,高低错落,极具几何美学,方便人们交流与观赏。入口地面嵌入导览图,具有展示与引导作用,叠阶式水景的设置,隔开人流与车流,打造舒适宽松的环境。

△北立面丰富的肌理 ©苏圣亮

△穿行于建筑内外的外挂楼梯 ©苏圣亮

△远舰与百年老树共生 ©苏圣亮
建筑的东侧面保留了原有的建筑形态,传统质朴的灰色水刷石饰面覆盖了原有外墙肌理,与西侧黑色的网面相呼应,局部制作褶皱的线条纹理,丰富了外观的多样性。东立面并开有凹凸有致,大小各异的方形玻璃窗,呈现点线面的构成美,简约而不失细节。

△晚霞中的远舰 ©苏圣亮

△打破平衡的露台 ©苏圣亮

△阳光下的立面肌理 ©苏圣亮
机电楼原为两栋建筑,我们进行了一体化的整合设计,体块叠加处理,南侧体块顶部设有宽敞露台,远似舰船甲板,人们在此自由呼吸、交流、休闲。露台内侧北体块外置钢制楼梯,楼梯护栏由实到虚过渡,虚实转移。

△点线面的几何构成 ©苏圣亮

△由实到虚过渡的转角楼梯 ©苏圣亮
在一楼大厅设有接待区,接待台由两个长形工字钢并置而成,不加修饰,原始又粗犷。休息区,新辟出一块半开放式水域,夕阳下的水面波光粼粼,原木、水磨石平台相互交叠,漂浮在水面之上,人们驻足于此,感受到时光的流淌。

△一楼接待区及休息区 ©苏圣亮

△接待台细部 ©苏圣亮

△夕阳穿透到水面 ©苏圣亮

△挑高中庭设计 ©苏圣亮
建筑内采用挑高错层设计,并开设数个天窗,为室内引入充足的阳光与自然气息。光与影的变化也调和了工业质感的严谨与直率。内部空间采用开放式设计,不同空间以廊桥相连,方便了人们之间的互动与对话。

△从多个角度感受水景的存在©苏圣亮

△运营中的远舰,人们在中庭里穿梭©苏圣亮
清水泥、水磨石构成内在的主要肌理,素性、朴实,也是外在肌理的延伸。排列组合的玻璃砖隔断让室内通透又明亮。对于穿行于内部空间的楼梯、廊桥,则使用了耐候钢、不锈钢和原木等多种材质,冷与暖、工业与自然的碰撞与共生。

△细节2 ©苏圣亮

△玻璃隔断通透又明亮©苏圣亮

△折叠而上的木制楼梯©苏圣亮

△穿行于内部空间的楼梯与廊桥©苏圣亮

△南北两栋合围而成的中庭©苏圣亮
包裹艺术下的旧筑新生,「远舰」已经准备好重新起航。

△鸟瞰图©苏圣亮
项目图纸

△1F平面图 ©本哲建筑

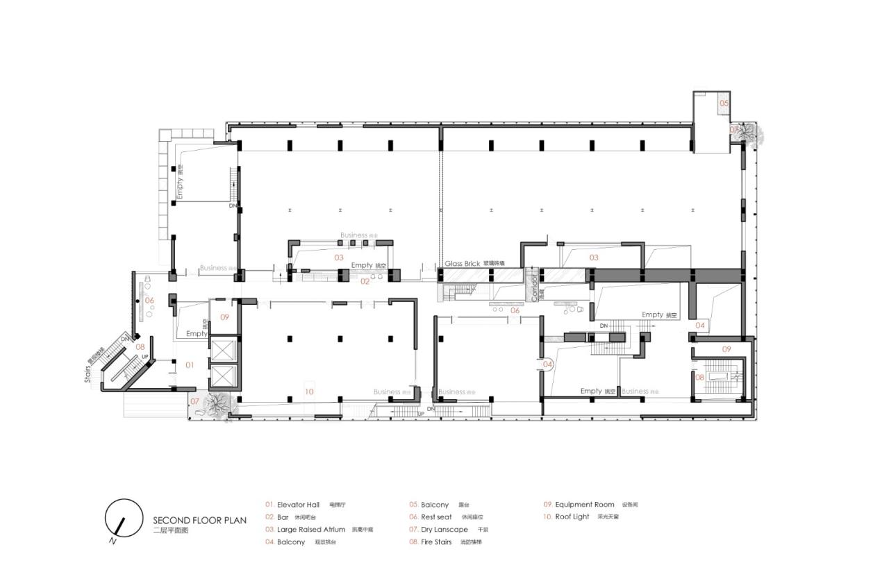
△2F平面图 ©本哲建筑

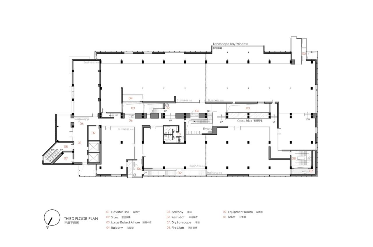
△3F平面图 ©本哲建筑

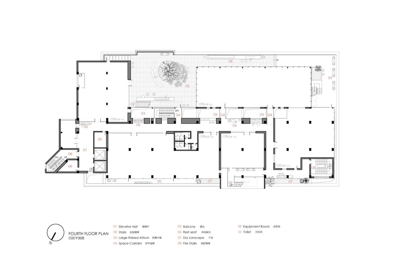
△4F平面图 ©本哲建筑

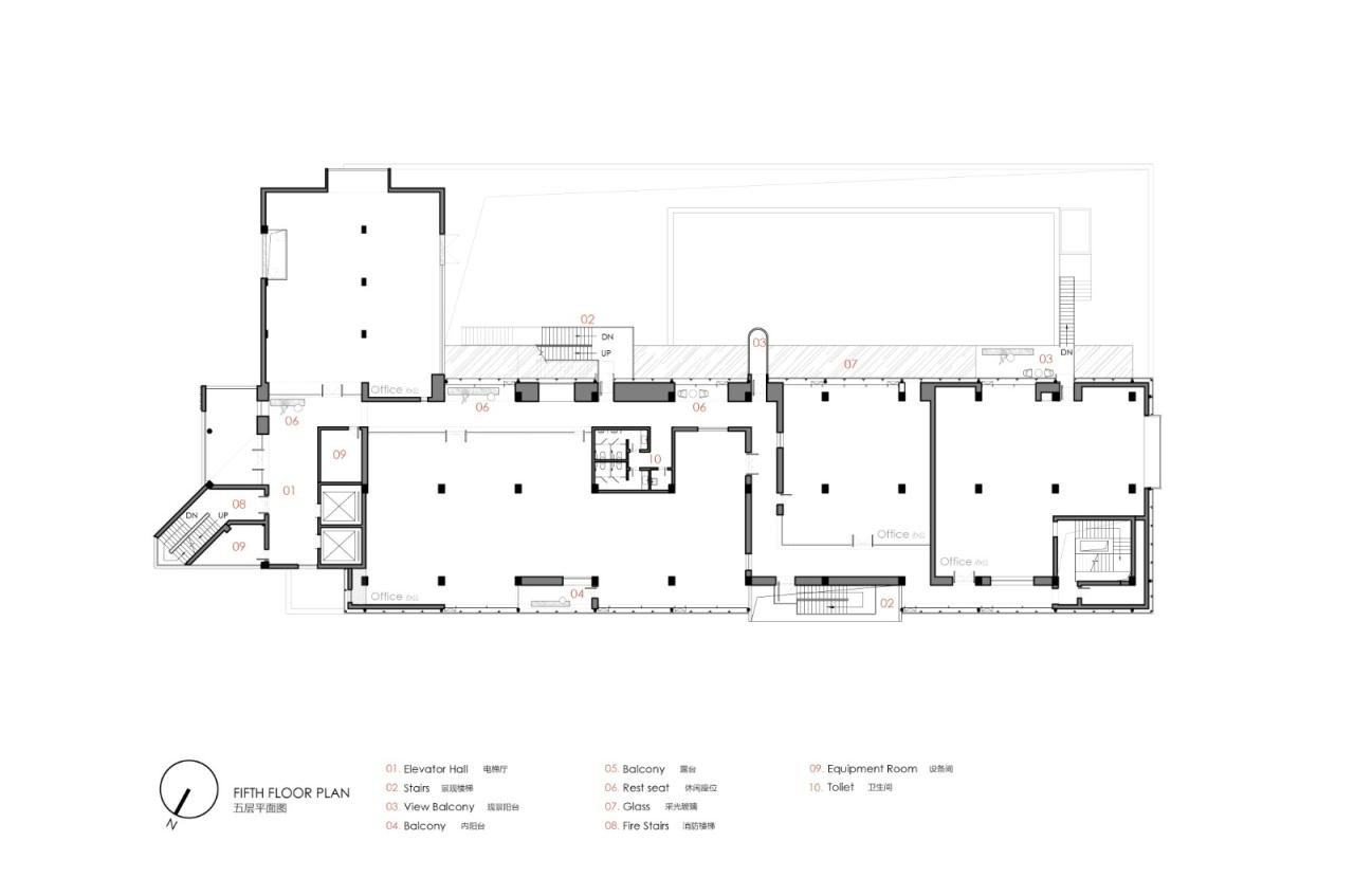
△5F平面图 ©本哲建筑

△西立面图 ©本哲建筑

△北立面图 ©本哲建筑

△东立面图 ©本哲建筑

△南立面图 ©本哲建筑
项目信息
项目名称:远舰·EKA天物
项目地点:中国上海市浦东新区金桥路535号EKA·天物
建筑/室内/景观设计:本哲建筑
主创建筑师:蒋华健
设计团队:姚瑞艮 林桐
建筑面积:6748 m²
设计时间:2022年2月-2022年6月
竣工时间:2023年6月
业主方:上海嘉韵投资管理发展有限公司
结构设计:上海同宴土木工程咨询有限公司
摄影:苏圣亮

BIM建筑网





评论前必须登录!
注册