
延伸,将村落与田园成为一体。上海,蓬勃生长的都市,在它西南一隅,田园中的中华村也在悄悄发生改变。一系列富有质量的公共服务建筑与活动空间将让这个村庄在未来充满活力。在乡村小学旧址新建的文化中心正是这一振兴计划的重要引擎。在我们的构思中,村落、田园、村民与基地历史再次的紧密连接将成为激发中华村活力的关键。



连接:村落与田园中华村依水而生,但在过去的建设中,村庄内部连接两岸的传统小桥,被沿外部道路布局的机动车桥梁取代。村落与田野的联系不再紧密。在我们的构思中,文化中心将重建村落与田园亲密的连接性。文化中心将是富于连接性的。简洁与层叠的体量让建筑主体有机的嵌入现有村落肌理中。北侧相对封闭的体量隔绝外部道路的干扰。围绕院落的廊与跨越河流的桥不分彼此,向南自然的生长。跨越河流延伸的建筑将村落与田野再次紧密的连接到一起。


村庄建筑的传统赋予了主体建筑的白。田野中油菜花与稻谷的颜色赋予了廊与桥的黄。黄色的廊与桥起伏交错的穿插在白色的建筑之间,形成“q”字形的结构。不断变化的视角与空间体验让村落与田野的相遇更加富有戏剧性。


开放:村民与院落文化中心是开放而富有孔隙的,开放的格局让缺乏公共空间的村民走出家门再次汇集,交互的活动让社区获得新的活力。对此,村民感到亲切的院落再次成为设计主题。1500平米建筑的体量被拆分成三个宜人的单体,不同氛围的院落穿插其间:开放的前院、宁静的边院、舒展的廊院、向河的树院。开放性的院落结构吸引着村民进入文化中心。建筑与庭院的相互渗透,为村民的游憩与社区活动提供了更加丰富的空间可能。




交织:新与旧原有小学的建筑基址与基地边界两套格网形成了有趣夹角,引导着建筑形体的交错变化。横向带状起伏变化的建筑体量记录着基地变化的历程,也赋予了文化中心可识别的特征。基地上的古树得到保留,建筑与廊桥围绕树展开布局,村民与游客可以在不同高度亲近树木。延续的绿色成为了文化中心南部空间的焦点与场所精神的象征。













项目图纸

△轴测图

△总平面图

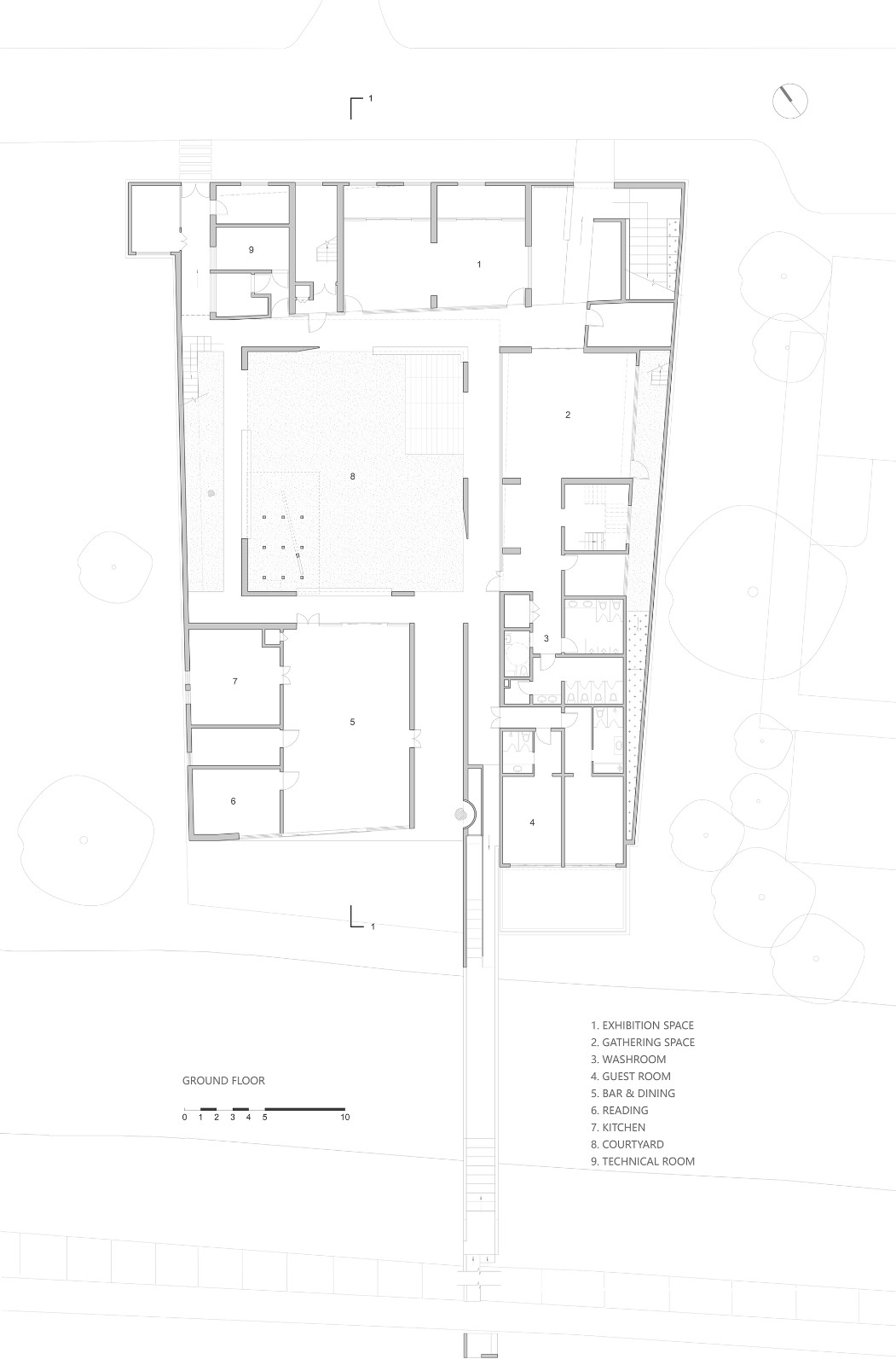
△一层平面图

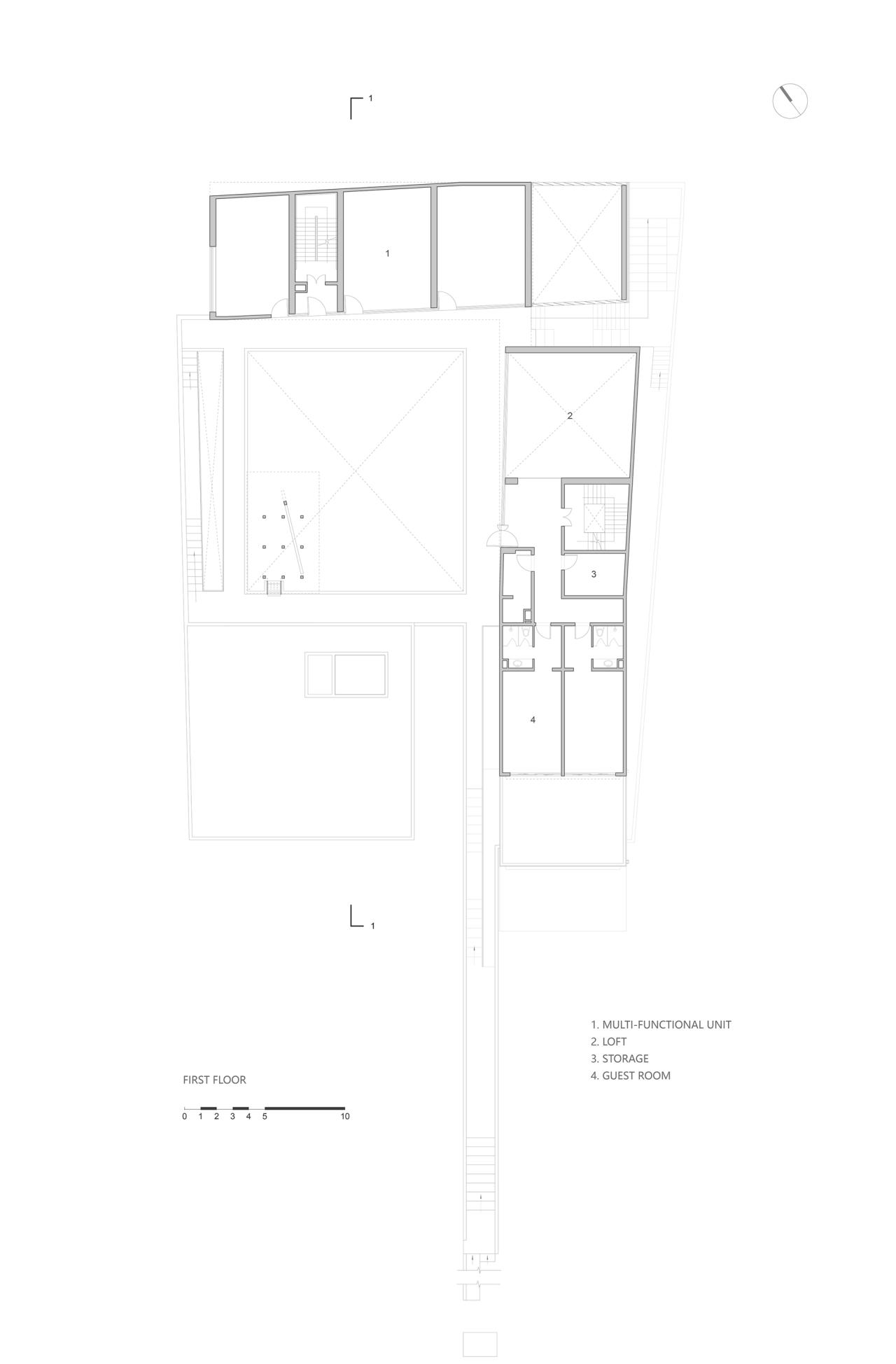
△二层平面图

△三层平面图

△屋顶平面图

△立面图

△立面图

△立面图

△剖面图

△细部结构大样图
项目信息
建筑师:Atelier tf,ppas德国珮帕施规划建筑设计事务所
面积:1511m²
项目年份:2023
摄影师:Shen Qiang
主创建筑师:张宁
设计团队:严阵,李振国,王洪,ANDREAS FERNANDEZ,胡云涛
项目管理:束钰萍,唐颖
景观设计:刘晋鹏,成铭芸,葛晓君,王思怡,易婉璐,张玥
木结构顾问:朱亚鼎
灯光设计咨询:刘晓光,张鹏飞,钟盈韵
委托方:廊下镇中华村村委会
地点:金山区

BIM建筑网





评论前必须登录!
注册