林盘如画
林盘田居是成都平原上最典型的农耕生活状态,从古蜀文明时期跨越几千年延续至今,通常以宅院为核心,多户农舍院落自由组合,竹林及各类果树乔木成为院舍之间的天然围栏,这种小聚居的形态星罗棋布于广袤的“天府粮仓”中,成为集合耕织、生活、休憩于一体的自然村落。百草香庐位于成都城北新都区天星村,是一个坐落在千亩良田内的小型林盘。

▲雪山下天府粮仓的林盘全景 ©DONG建筑影像
如同天星村的其他林盘,场地位于农田中央,四周草木环绕。看向林盘时,宛如观赏一幅田园画,农田既是前景也是背景,提供一定距离感的同时,又凸显出林盘,成为视线焦点,阡陌的交通让人随时可以入画。

▲场地原状 ©小隐建筑

▲晨间雾气中的百草香庐 ©DONG建筑影像
这与中国古典山水画有异曲同工之妙。山林水泽为留白,内容集中体现于画面中的一个或者几个角落。若是多个林盘在同一片田野中,就如同观看一幅长轴画,接天的农田是留白,故事便发生在每个林盘之中。


▲晚饭后遛弯的村民与百草香庐 ©DONG建筑影像
百草香庐的设计意象并不仅仅是某个特定的乡村元素,林盘中的农耕生活场景才是我们想要呈现的最重要的意象。

▲麦田中的百草香庐 ©DONG建筑影像
我们研究了历代的《耕织图》、明代沈周的《东庄图》以及多个版本的《辋川图》中的园林布置、房屋形式及组合关系,根据场地原有建筑的肌理,原场地的空间形态、乡野环境与千年古画中的生活场景结合,创造出多块相对独立而又相互连接的画布,将不同的林盘生活场景绘入其中成为一个个鲜活的画面。

▲古画的研究(清 陈枚《耕织图》明 沈周《东庄图》)

▲多个展示面的分隔与连续 ©DONG建筑影像
林盘重生
用地被进入林盘的唯一道路分隔开来,项目也因此被分割成两个部分。小的一块地打造成为乡村会客厅,主要是茶室与多功能厅;大的一块地由多户居民的宅基地组合而成,主要功能是民宿和私房菜。

▲百草香庐的整体布局 ©DONG建筑影像
成都平原的乡村不同于山村,由于地势开敞,更多是一种直白的呈现。我们用墙体与农田来界定流线,建筑入口朝向道路给人更加开放的感受。曲径通幽或者推门入户的山村之感在这里并不适用,我们希望更多的是“推窗见田”。

▲乡村会客厅的迎客门廊 ©DONG建筑影像
林盘的入口处通常是公共开放的场景。或是留出相对开敞的空地作为村民的聚集空间,或是一个服务村民的小商店。我们将乡村会客厅朝向入口的一角切割退让,大挑檐与建筑局部凹陷的灰空间形成外摆区域,也是进入会客厅的入口门廊,与空出的前院连合,可供邻居们“摆龙门阵”。

▲会客厅入口门廊 ©DONG建筑影像
基于“天府粮仓”关于农耕文化的需求,乡村会客厅的屋顶融入了仓与米斗的设计意象,使该建筑与旁边的民宿建筑从外观的形式上区分开来,更具有公共建筑的形象。

▲乡村会客厅以仓与米斗为设计意象


▲乡村会客厅以仓与米斗为设计意象 ©DONG建筑影像
会客厅一层的茶室空间下沉,坐下后视线可以平视周边的农田,喝茶的场景被农田包裹,室内外的区分又与农田相对隔离。以窗为绢的画卷中是麦稻轮作的大田景观,四季枯荣描绘出诸多美妙的画作。

▲下沉茶室与窗外稻田 ©DONG建筑影像

▲楼梯取景稻田 ©DONG建筑影像
二层的多功能厅可听风、观雨、赏田,主空间较为内秀,结合运营可转化多种功能场景,如:禅修、研学、会议等。

▲禅修模式,阳光透过天窗洒落多功能厅 ©DONG建筑影像

▲会议模式,观望大田景观 ©DONG建筑影像
坡屋面局部掀开,在建筑的两个方向形成观景阳台,作为休憩远眺的补充空间,阳台的观景面以挂轴画的形式融合楼上楼下、田间屋内的场景,屋顶与护栏形成框景,取不同角度的农田与林盘入画。





▲不同角度观景阳台的眺望与对望 ©DONG建筑影像
北侧屋面上插入一个观景台,让建筑与林盘内部景观及后续的二期场景相互关联,为游客预留一处空中打卡观景点。


▲北侧观景台 ©DONG建筑影像
为了平衡整个用地的效率和古制的农村风格建筑形式,民宿与私房菜建筑融合为一栋楼,屋顶拆分形成了多个块面,像是多个建筑的自然组合,同时又兼顾了每个看面观景、遮光、排水等实用功能。

▲民宿与私房菜建筑的空间错落 ©DONG建筑影像

▲建筑屋顶在场地内形成多个民居的效果 ©DONG建筑影像
民宿与私房菜共用一个入口,将林盘中的林、田、水、宅四个元素运用于空间布置之中,成为一方小天地。

▲民宿与私房菜入口 ©DONG建筑影像

▲接待看向入口方向 ©DONG建筑影像

▲林、田、水、宅合一的入口景观 ©DONG建筑影像
餐厅与住宿部分的动线生动有趣——流线并没有区分明确的主次,随机性的林盘道路运用于空间交通之中,场地开合的偶然性与观景面结合,是闲逛林盘时,隔着林木、建筑看到美景的欣喜。

▲景墙与建筑形成相对围合的空间 ©DONG建筑影像

▲院落开敞,农田景观直接与院落相连 ©DONG建筑影像
通过小通道、小平台有节奏地联合主体空间与交通空间,减少整个建筑的楼梯数量,并在交通节点中提供了多个观景点与室外序厅,形成建筑气口,削减建筑的体量感。


▲室外灰空间序厅与流线上的观景点 ©DONG建筑影像

▲民宿楼梯的玻璃块将光影导入交通空间中 ©DONG建筑影像
紧邻农田的车行道路移至林盘内部,建筑院落与农田直接相接,让田园纳入了每个院子中,每个房间都自成一院,独享田园。


▲农田纳入了民宿的小院之中 ©DONG建筑影像
乡村振兴
城乡融合发展是乡村振兴的治本之策。如何结合充满差异化的资源本底与乡村发展需求,打造为相互成就的功能业态,是我们在该类型项目中努力的方向。


▲民宿二楼绝佳的客房视野 ©DONG建筑影像
“百草”是希望结合新都中医药种植产业来丰富项目经营,将药膳、汤药、理疗等功能与业态关联;同时丰富林盘之内的乡土植物资源。


▲药膳结合的乡村私房菜餐厅 ©DONG建筑影像
“香庐”是基于焚香、书香、花香、稻香、麦香等多种香味,结草为庐,是功能业态、建筑形态、农耕文化、资源环境等多维度内容浓缩后的独特表达。

▲传统材料与现代设计结合的新生 ©DONG建筑影像
“林盘为绢,生活入画”这种生动的乡村场景演绎形式,无疑为之后周边的林盘拓展,甚至是大成都平原林盘的发展提供了新的思路——传统农耕生活状态演绎结合现代功能业态,放置于林盘之中,使之成为一块极具特色和活力的乐土,相对独立的场域纯粹而质朴。

▲私房菜阳台眺望大田景观 ©DONG建筑影像
百草香庐除了对当地的林盘发展起到了示范作用,也为城市里的人提供了一种新的生活方式,利用乡村的差异化形成城乡互补的功能空间,一定程度促进了城乡融合。这也暗合了中国人血脉里流淌的、对于宅院和乡间生活的美好向往。


▲建筑夜景 ©DONG建筑影像

▲麦田雨雾中的百草香庐 ©DONG建筑影像
项目图纸

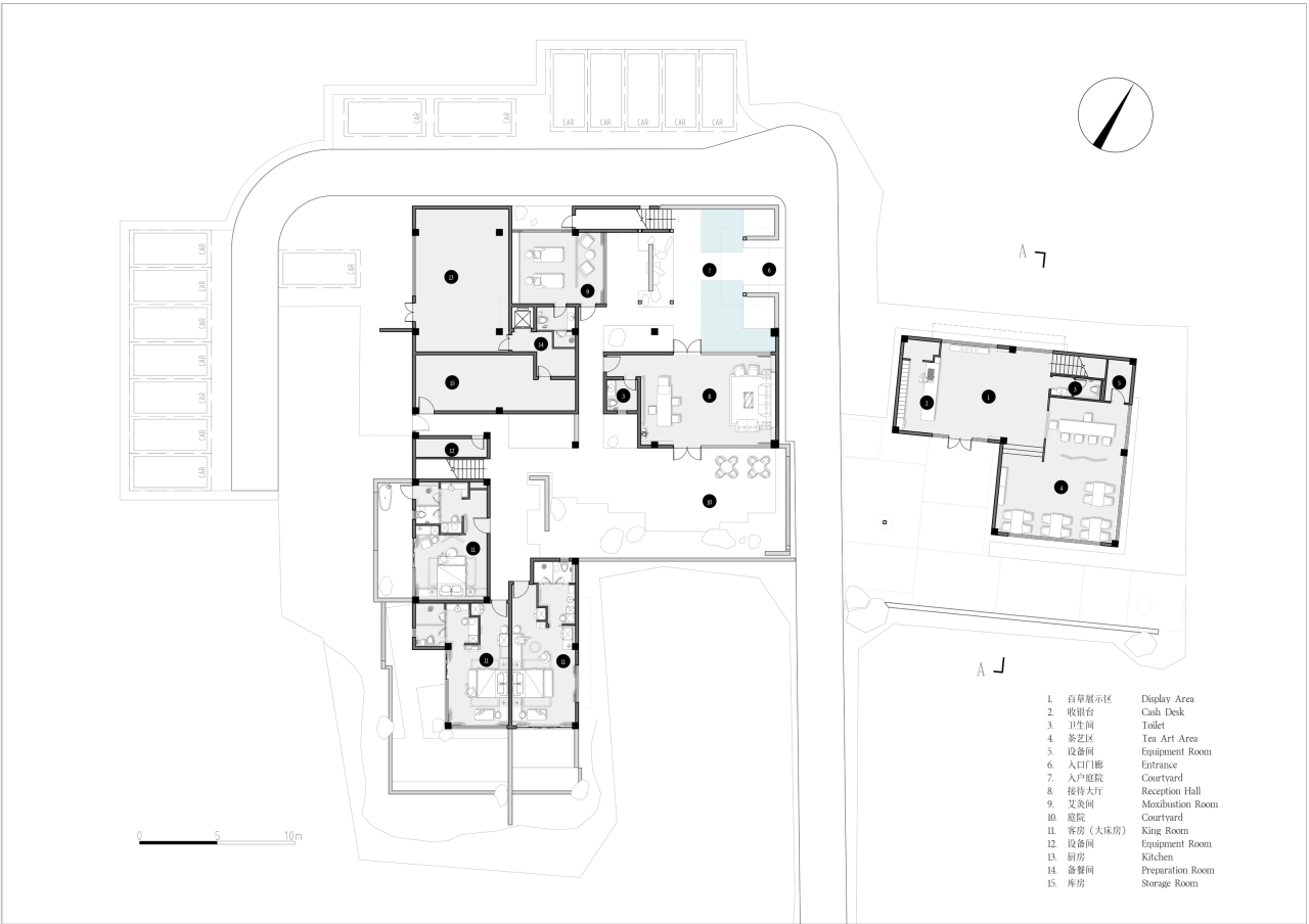
▲一层平面图

▲二层平面图

▲剖面图
项目信息
主创团队:小隐建筑事务所
主持建筑师:潘友才
设计总监:杨喆(合伙人)
技术总监:陈仁振(合伙人)
设计团队:杨锐、胡沁梅、赵亚线、苟源君、黄宇婷、吴宁
施工图团队:成都美厦建筑设计有限公司
业主单位:成都华德生态农业开发有限公司
施工单位:四川申泰建筑工程有限公司
摄影:DONG建筑影像
撰文:杨喆
项目地址:四川省成都市新都区天星村
建筑面积:1015平方米
建筑材料:白色外墙涂料、木结构(杉木)、Low-E中空玻璃、小青瓦、仿竹编花窗
建成时间:2024年3月

BIM建筑网





评论前必须登录!
注册