这里是山东,这里有中国第五大造型地貌“岱崮地貌”

2022年,我们从杭州跨越千里来到这里,开启了一段归乡设计建造之旅。
无名境回崮自然疗愈民宿在近一年时间建造而成。建造期间,设计总负责人苗坤全程驻场,进行了长达约一年之久的跟踪,现场亲自配合指导施工,让设计无折扣的完美落地!
项目位于三线军工厂旧址,这里有保留较为完整的军工厂建筑

现有军工厂建筑拆掉还是保留?
设计策略:
1、传承记忆
根据每栋建筑的特色与现状,有针对性的保留历史建筑片墙,让每处记忆都能得以留存,在游览其中时能串联起历史与现在。
2、新旧呼应
让历史建筑与新建建筑在情境上互相融合与呼应,通过新老建筑的搭配与交汇,让红色记忆
得以延续和传承。


△错落有致的建筑群
建筑由26栋小楼以及1栋老房组成
在踏入场地的第一刻,扑面而来的军工纪念墙,把游客带回到 1960 年代, 与当年的人物进行跨时空的对话,近距离感受沂蒙精神与军工文化。

进入民宿接待大厅,遗留的片墙与工业设计,重温着军工厂的时光 。

△接待厅外景
进入民宿接待大厅,弹药箱叠合的前台和砖砌9381,唤起那个年代的回忆。

△接待厅室内
餐厅虚实结合,新旧材质交融,在新体量中感受旧时光。

△餐厅
二层的历史漫道与观景塔结合,在行走之间,享受天地的广阔,对话过去和历史。

△连廊外景
站在历史漫道上,抬头便可远眺岱崮地貌,畅想未来与明天,低头便能瞥到廊道上的军工记忆 ,抚摸历史遗迹。

△连廊
历史漫道的高潮是一座瞭望塔,站在整个片区的制高点,回顾过去,展望未来。

△瞭望塔
阳光洒落在房内,在具有历史记忆的墙地面的自然散开,展示过去的精神意义。

△多功能厅室内
建筑虚实结合,玻璃体的引入,将景观最大限度的引入建筑内部 。

△书吧室内
在场地景观最佳的位置,酒吧与室外泳池相邻,能远处巍峨的岱崮地貌,一览无余,尽收眼底。

△酒吧外景
结合现存建筑的片墙,让新老建筑发生对话。

△酒吧室内
灵感源自沂蒙山区的古村落肌理,在具有高差的场地内,小路曲折蜿蜒,一步一景,颇具崮乡古朴的人文气质 。

△酒吧室内
灵感源自沂蒙山区的古村落肌理,在具有高差的场地内,小路曲折蜿蜒,一步一景,颇具崮乡古朴的人文气质 。

△客房区
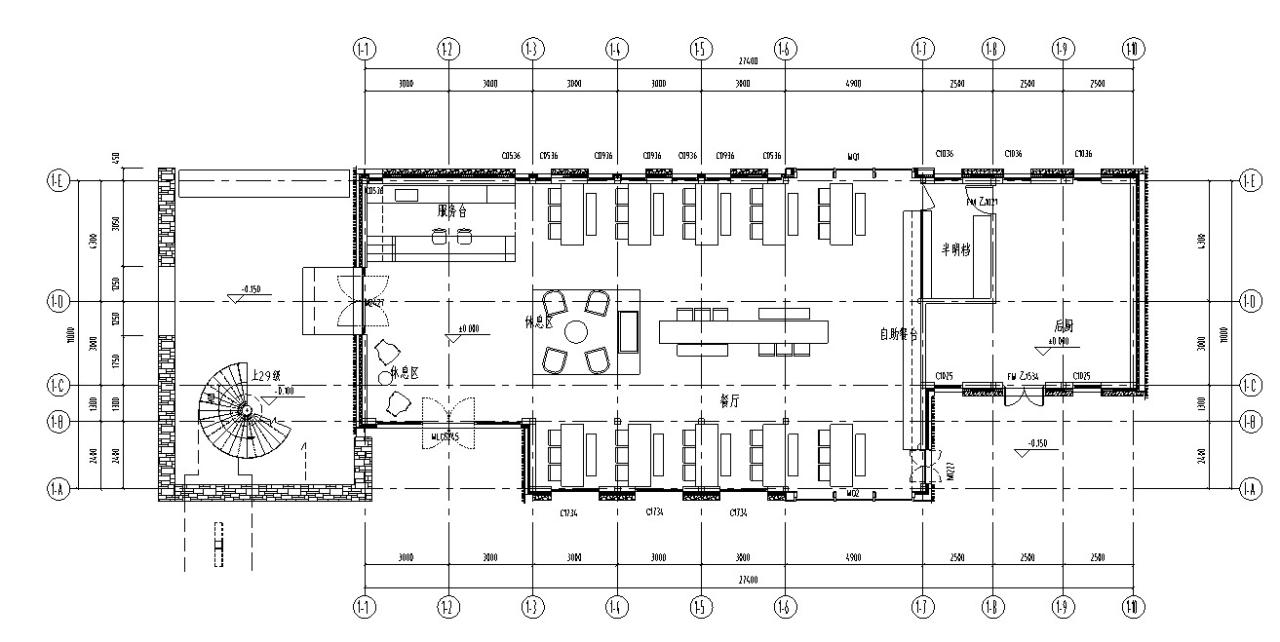
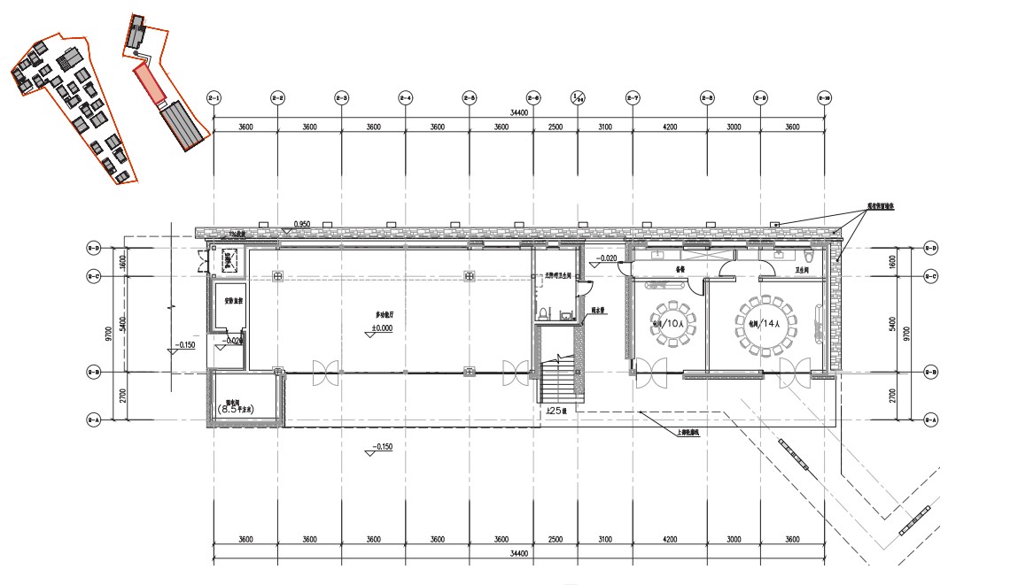
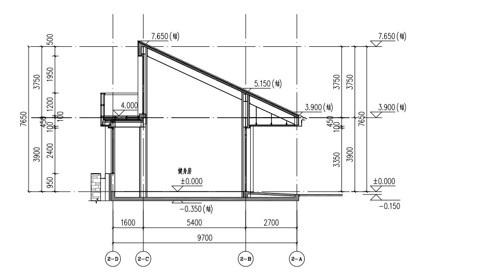
项目图纸

△接待区平面图

△接待区剖面图

△多功能厅平面图

△多功能厅剖面图
项目信息
项目名称:无名境回崮自然疗愈民宿
设计公司:杭州归乡宅院科技有限公司
类型:建筑
材料:水刷石、灰泥、锈板、铝板
标签:山东 建筑、室内、景观一体化设计
分类:休闲娱乐民宿酒店

BIM建筑网





评论前必须登录!
注册