
Tung Yuen幼儿园是一座位于台中市郊工业区的两层混凝土建筑。总建筑面积为725平方米,这项工作旨在构建儿童对空间的认知和想象力。通过结构与元素、尺度与场所的不可分割的布局,学校建筑也可以回归到建筑本身的内向思维。



这座建筑位于校园的西北角,面向现有的6米道路,道路与现有建筑之间形成接近45度的角度。建筑的结构符合道路,而凹入的入口天篷则转了45度,与校园轴线对齐。



这个遮阳篷由一个45度的柱支撑,形成了二楼的活动露台。正立面构造为典型的古老房屋形状,带有双坡屋顶轮廓;它对应于现有建筑和附近的民宅屋顶。这个白色的抽象外立面成为Tung Yuen幼儿园社区的第一印象。


在二楼,有一个巨大的Y形柱支撑双坡混凝土屋顶。这个Y形柱由三根相同大小的柱交叉形成,与屋顶形成垂直关系。这种分叉柱结构不仅在视觉上呈现出受力传递的效果,还在物理上体现了大屋顶的重量感。柱子被涂成亮黄色,使其成为这个儿童学习场所中清晰可辨的建筑元素。





项目图纸

△模型图

△模型图

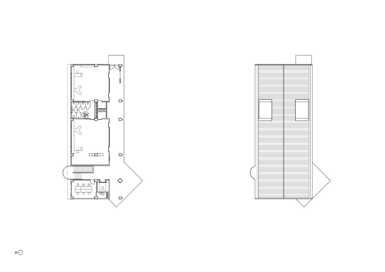
△平面图

△平面图

△立面图

△立面图

△剖面图

△细部结构大样图

△细部结构大样图

△细部结构大样图

△结构示意图
项目信息
建筑师:office aaa
项目年份:2020
摄影师:Tze-Chun Wei
项目负责人:Tsai-Rong Ho
委托方:Tung Yuan Elementary School
结构工程师:Giant Home Engineering & Consultants
MEP工程师:Heng Shuen MEP Engineering
导向系统:Path & Landforms
地点:台中市

BIM建筑网





评论前必须登录!
注册