
无锡梅村,古称梅里,吴文化发祥地,一个位于太湖之滨、泰伯故里的江南水乡,雅致之境,江南第一条人工运河——伯渎河穿城而过。创立于1913年的百年名校——江苏省梅村高级中学屹立于这钟灵毓秀的江南山水之间,国学大师钱穆及其兄长钱挚(钱伟长之父)作为学校创始人之一,曾任教于此。空港分校作为江苏省梅村高级中学新校区,用现代设计语言传承百年名校的历史文脉,赓续 “敏毅诚朴,至贤至德”的名校精神。



漂浮校园
由于校园用地较为局促,为最大限度将校园地面空间归还给校园使用者,减少因为建筑的介入而产生的校园地面空间拥堵感,设计考虑尽可能将校园建筑进行竖向抬升,采用将校园核心区域首层架空的方式,将学术圆环、学术报告厅等大空间的建筑体量首层进行架空,将滨水的食堂、绿化丛中的教学楼等建筑体量首层进行内退处理,营造了建筑体量在二层以上漂浮于地面的视觉效果,学生可以在首层穿梭无阻,快速到达教学区的各栋建筑。


漂浮感的营造,一方面将校园地面空间处理得更为开敞,削减了建筑体量给校园带来的压迫感。另一方面结合建筑立面的开洞、通透的格栅、架空连廊等手法的处理,使校园内的建筑产生了高低错落、层叠有致的形态特征。


建筑首层的架空强化了建筑体量的漂浮效果,打破了传统校园首层空间的封闭感,形成了空间流动的漂浮校园。建筑不再是堆叠于地面,而是轻盈地漂浮于校园之上,与自然、人文环境融为一体,为校园带来了更加开放、宽敞的氛围。这种设计理念不仅是对校园空间的合理利用和有效探索,更是对校园文化和环境的有益拓展和提升。



绿洲学苑
打造一个真正意义上的花园式的绿洲新校园,是设计团队在此次项目设计过程中一直在探索和追求的目标。校园以中心直径85m的“学术圆环”作为文化传承的最核心载体,以多层级的共享交流空间作为学校公共性的体现。圆环中部的“梅苑”、顶部的生态花园跑道,将校园的绿化空间由地面延伸至第五立面,通过不同层次的绿化种植,营造校园的“绿洲”氛围。


校园的教学、生活、运动等功能以学术圆环为核心,在首层围绕中心绿化庭院展开。外部——圆环首层贯通的室外空间可举办多种学术、展览活动;圆环顶层形成类地空间设置跑道及多种绿化以满足户外运动和景观的需求。
内部——圆环二层的学术回廊通过二层的平台连桥,又和各教学组团实现多层连接,同时,设置一处旋转楼梯加强圆环的竖向联系,使得学术圆环不仅是一处校园标志性景观,学术交流的中心点,更是连接校园教学组团的交通枢纽,实现建筑功能和空间的融合。漫步于绿化包围的圆环空间,可以全方位感受校园“梅苑”的花园氛围,体验穿行于绿丛之中的愉悦。




诗意灵动的绿洲,从中心“梅苑”展开,以梅苑-廊桥-教学组团-周边水系向外辐射而形成 “学术岛”,延续古朴典雅的校园气质,由外至内将建筑的外部空间向室内延伸,形成了外部空间、室内空间及景观相互融合渗透的特征,强调建筑室内景观的连贯。以中国传统书院的结构为依托,融入现代校园空间特征,打造独一无二的校园园林景观,使梅村中学成为兼备空间实体与精神承载的绿洲学苑。



水乡营建
设计团队通过院、廊、水、庭等空间的营造,将江南水乡地域特征融入校园,力求为学校的师生打造了一个富有生机活力且充满水乡诗意的学习环境。通过校园内的廊道、庭院、水景等水乡建筑元素的演绎,勾勒出一副江南水乡画卷,打造江南独有的书卷气息。



设计充分挖掘无锡的地域特征及梅高的历史脉络,将江南吴文化的气韵风雅与百年名校的深厚底蕴进行充分融合,在提取校本部传统风格的同时,采用集中式的布局规划,结合景观空间的渗透,温暖的色调、丰富多元的空间,表达时代特性与东方意蕴,以“中而新”的设计思路诠释了江南水乡、百年名校的文化内涵。建筑造型均采用现代简约的建筑手法,以韵律,节奏等形式美学手法处理建筑立面,再通过建筑细节的点缀,将整个校园打造成具有江南特色和东方人文主义特征的建筑新形象。


立体书院
校园建筑环绕传统式书院中轴对称的序列空间布局,通过建筑空间、连廊、庭院营造具有现代书院氛围的校园空间。设计将平面化的校园空间通过抬起、架空等方式,以竖向叠加的形式,形成了立体的校园空间形态。结合连廊、楼梯、平台等相互贯通的交通空间,在学校生活区、教学区及公共活动区串联出了多层次、立体化的步行体系,丰富了校园竖向各层次的公共活动空间,同时,也构建起了一个风雨无阻的校内步行交通网络,形成了校园内部便捷、高效的立体化交通组织构架。



建筑的架空处理,形成了首层开敞的活动空间。同时,在不同建筑单体之间通过连廊、庭院过渡,系统性地增强校园不同场域的记忆点,营造自由轻松的学习环境。在校园的公共活动空间的营造中,我们通过细化建筑中的交互空间来应对不同教学环境下的功能及心理需求,将更多有“社交粘性”的空间引入校园,将学习环境的空间扩展到教室之外,所有的公共空间都可以设计成学习场所,以此来为校园提供更多的社交空间。同时以书院模式考虑空间的复合功能,为多种空间组合保留条件,预留未来功能变动的可能性。



图文信息中心室内,以“书山有路勤为径”为设计理念。中庭的四周设置白色穿孔板垂幕,顶部设置规整藻井,形成宁静肃雅的光影容器。在中庭空间中由下而上设置连续的木质直跑梯,穿梭于中庭两侧的垂幕之间,形成“书山之径”。



低碳选材
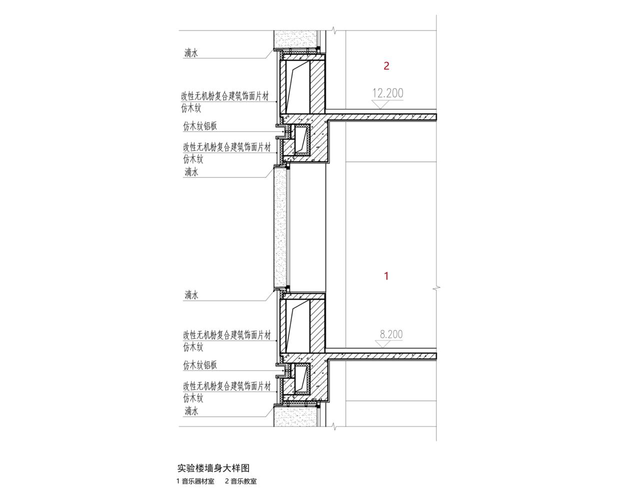
为在节约造价的同时打造一所绿色生态的中学校园,同时由于设计团队对于可持续发展的关注,立面材料的选择成为了设计过程中的一个重要研究议题。设计团队在材料的选择过程中,对立面材料的选择进行实地调研,希望采用一种低成本、耐久性强、低碳环保且施工便捷的材料,更重要的是能将原设计效果以最佳状态呈现。
最终考虑采用改性无机粉复合建筑饰面片材(Modified inorganic powder Composite Material)作为外立面的主要材料。结合校园整体设计风格,设计团队在业主、施工单位及厂家的通力合作下,经过无数次的现场样板试验,找到了匹配设计效果的仿木纹片材,并将其运用于教学楼和实验室楼的建筑外立面中。


作为一种低碳环保的材料,改性无机粉复合建筑饰面片材原材料为灰泥、石粉、矿粉及回收的可再生建筑废料,经分类混合和复合改性,在一定温度下形成改性无机土(MCM),并通过与高分子杂化,衍生出环保活性土。在保留了会呼吸、防潮、防火和可持续性的同时,也具有便于施工、高环保、高性能、低碳节能及经济特性。
通过外立面木纹效果的反复试验,形成了梅村高级中学空港分校呈现出的整体木纹效果。低造价高品质材料的选择,营造了一个低碳高效的未来校园。在融合地域风貌的同时,通过采用环保、可重复利用的材料,力求将低碳践行其中。同时,校园设计结合架空、立面开洞、遮阳、海绵设计等绿色技术的处理,打造了一个空间舒适且低能耗、高效率的校园建筑空间群体,将低碳校园的理念贯穿于校园设计全过程。


江苏无锡梅村中学空港分校项目,是设计团队进行的一次具有江南特色的立体书院校园的设计尝试。通过建筑师负责制的模式以及设计团队和业主管理团队,施工团队三者的通力合作,在局促的用地环境和有限的造价范围内,力求打造一座立于江南水乡间的现代校园建筑艺术精品。




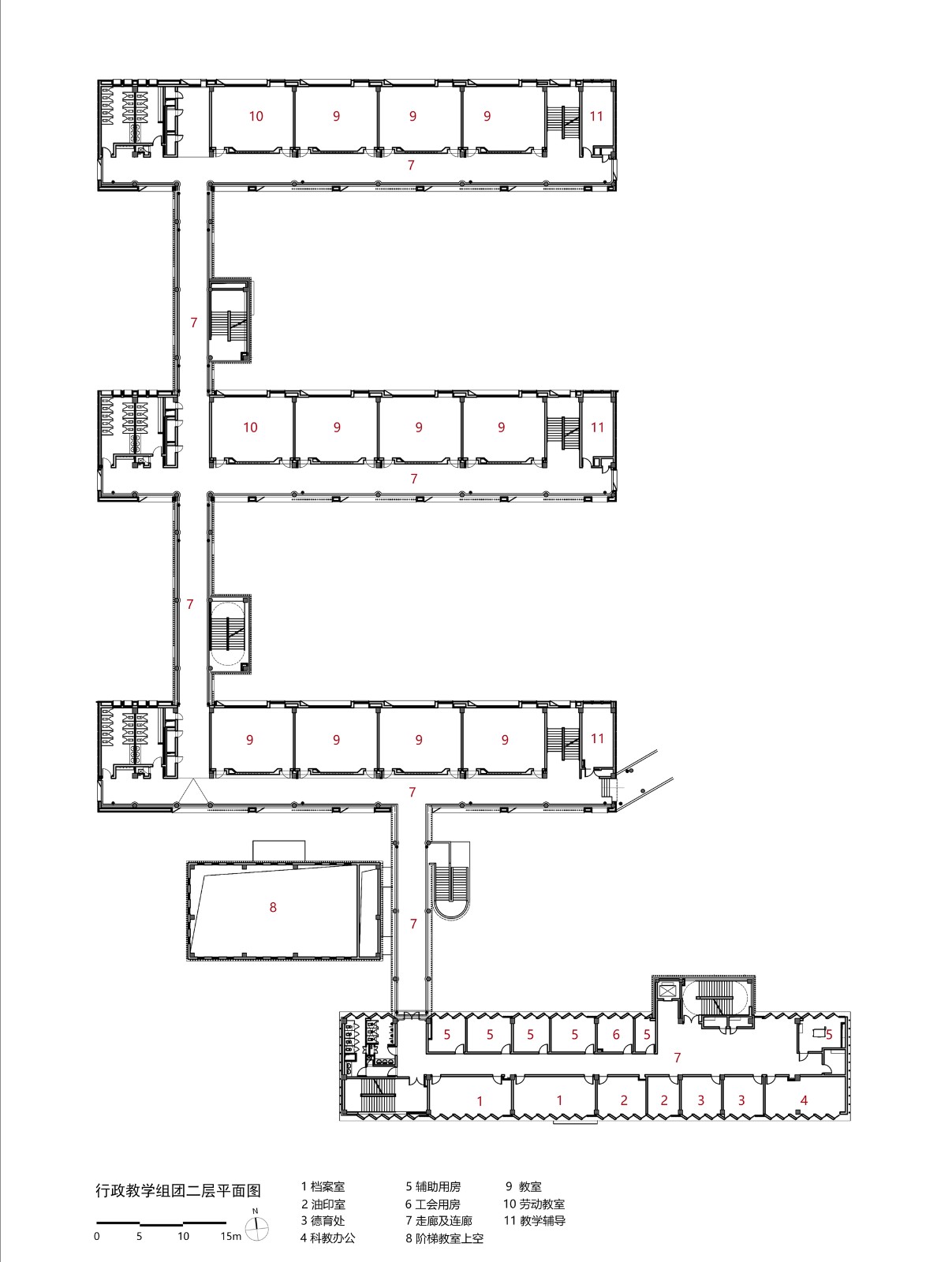
项目图纸

△模型图

△模型图

△模型图

△模型图








项目信息
建筑师:华南理工大学建筑设计研究院
项目年份:2023
摄影师:邹林(阿尔法摄影),姚力(建筑译者)
主持建筑师:何镜堂、盘育丹
建筑设计:华南理工大学建筑设计研究院有限公司, 曾宪策,郑常波,郭奕爽,王人玉,童敬勇,杨满思,陈桂涛,郭菁儿,杨蓉,钟语,陈志东,陆仪韦,刘鑫栋,林琳,黄艳芳
结构设计:郭远翔,徐振楠,林亮洪,廖韶山,沈雪龙,谢灿东,越国明
室内概念设计:盘育丹,曾宪策,钟语
室内设计:梁景韶,李婧灵,谢琪,凌秋宇,陈翩翩,刘慧娟
给排水设计:岑洪金,关宝玲,陈燕桃,岑晓云,张艳,钟文勇
电气设计:高飞,冯文生,项丹
智能化设计:耿望阳,曾志雄,符文彬
节能设计:胡文斌,吴晨晨
造价:周华忠,赵少华,刘付娴,余汉威,周梓涵
绿建合作单位:江苏博森建筑设计有限公司
智能化合作单位:蓝深远望科技股份有限公司
景观设计:宋伟玲,晏忠,尹树荣,谭詠方,谢晓雯
暖通设计:黄璞洁,何耀炳,何时刚,刘芝铭,吴子豪
幕墙设计:杨嘉庆,王辉,陈楚峰
驻场代表:谢建权,皮东雪
设计时间:2021年2月- 2021年12月
占地面积:100,251 m2
地上建筑面积:86,373.19 m2
地下建筑面积:8,966 m2
业主方:无锡市城市重点建设项目管理中心
业主团队:黄伟祥,楼可为,邹海峰,谈水军,陈剑,骆琦,陆鼎
施工单位:华仁建设集团有限公司
地点:无锡市

BIM建筑网





评论前必须登录!
注册