
这个项目是位于日本大分县妙蓮寺庙园内的“nokotsudo”或骨灰堂的设计。这样的建筑物为人们提供了一种与传统墓地不同的选择,其内部通常设有小空间——常常是像储物柜一样的空间,配有小祭坛——用作骨灰盒的存放地。近年来,随着人口的减少、农村向城市的迁移以及大家庭的减少等因素,日本对骨灰堂的需求不断增加,这使得人们越来越难以照顾和维护传统墓地,尤其是位于当地寺庙园区内的墓地。在考虑到日本社会的即时需求和长期考虑的前提下设计纪念空间,为这一问题提供了一个实用的解决方案。


通过与我们的客户寺庙的住持进行对话,我们着手设计一个能够安慰丧亲家属的空间,与典型骨灰堂的黑暗、仓库式的特点截然不同。我们确定了一个设计概念,即“为逝者提供的客房”——一个明亮、热情的空间,更像是一家酒店或豪华客栈。我们选择的设施名为“Prabha”,来自古印度的经文,意为“光明”。


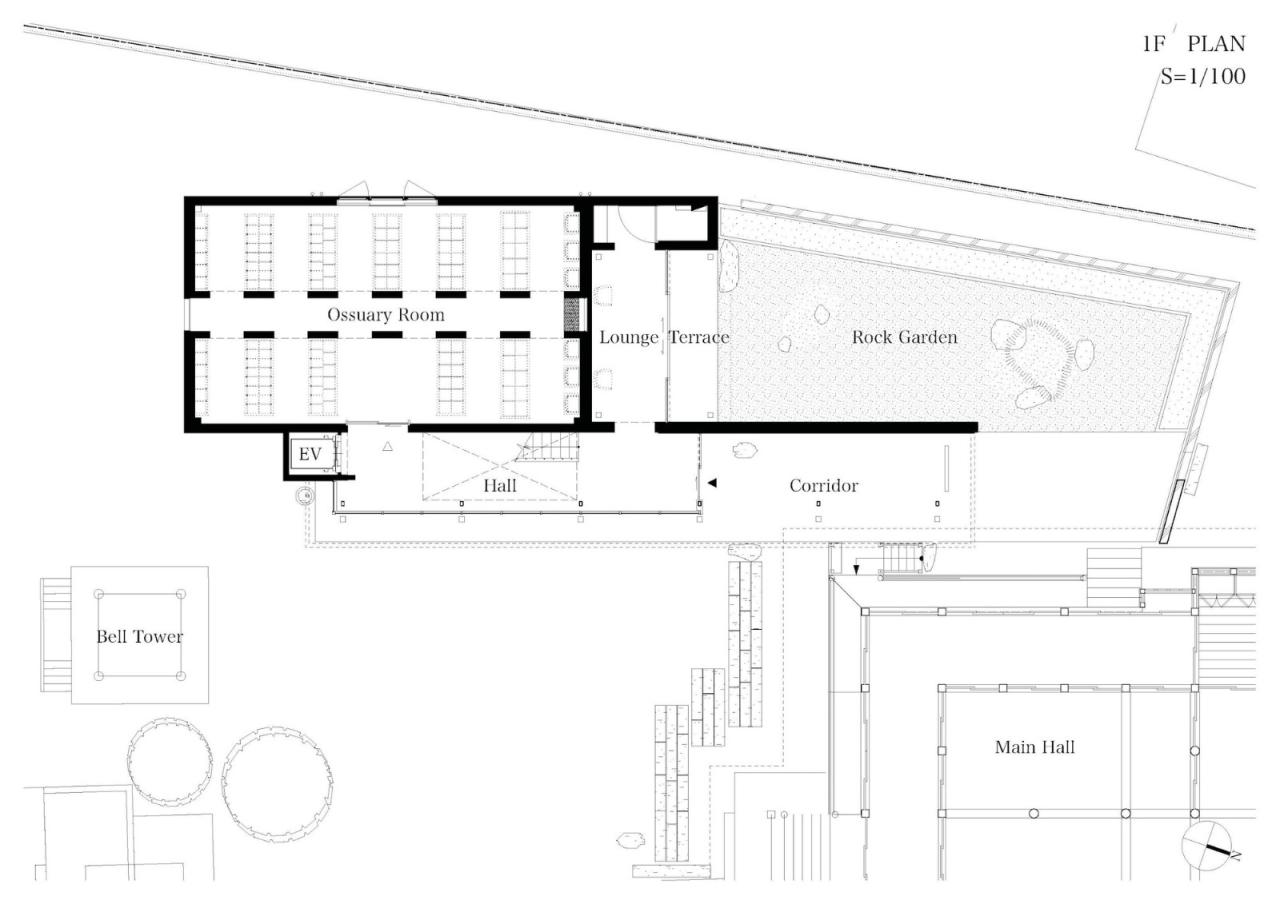
设计的一个显著特点是“寂静花园”,一个枯山水花园,以一棵松树和石头精心平衡的布局为特色。石头来自寺庙内部,加深了花园与场地传统的联系,而精心挑选的日本白松与地点完美地融合在一起。访客被邀请在半开放的空间舒适的躺椅上放松身心,眺望花园,沉浸在宁静的氛围中,怀念逝去的亲人。白色的石膏墙和广泛使用的木材在室内设计中占据重要地位,佛坛的颜色选择了深红色,而不是标准的黑色,唤起了西方净土的光芒和夕阳的色彩。



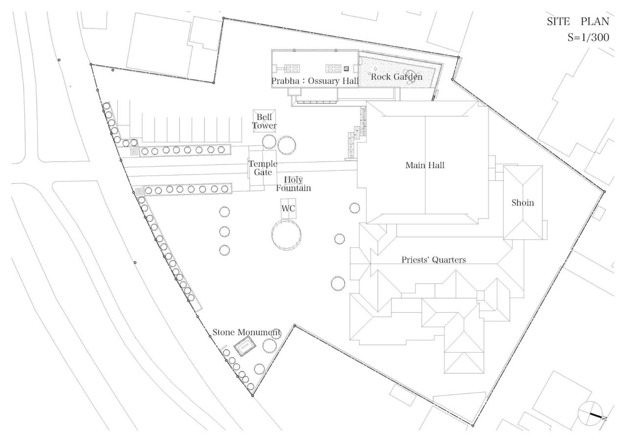
我们在这个项目上的工作包括对寺庙庭院进行一系列改进。我们核实了主殿(建于约1750年)、正门、钟楼和僧舍是否符合当前建筑法规的要求。此外,我们还移动了一座石碑。新的骨灰堂与寺庙庭院内的传统建筑完美融合。建筑不仅在美学上令人满意,而且符合无障碍的需求,包括自动门、空调系统和电梯等功能元素。Prabha设计既展示了传统的建筑风格,又增强了其魅力,完成的项目体现了“传统与现代相遇”的核心理念,这也是我们公司思想的核心。








项目图纸

△总平面图

△一层平面图

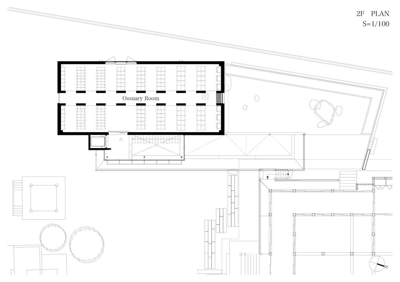
△二层平面图

△屋顶平面图

△立面图

△剖面图

△剖面图
项目信息
建筑师:teamSTAR
面积:323m²
项目年份:2023
摄影师:Tetsuya Ito
主持建筑师:Eitaro Satake / STAR
高级建筑师:Shinichiro Yamada / Yamada Studio
主要建筑师:Kuniyuki Tanaka / moires
助理建筑师:Jundong Fan / STAR
结构工程:坂田涼太郎构造设计事务所, Kenchiku Shokudo
机电工程:NoMaDoS
灯光设计师:Plus y
标识设计师:Clip
地点:日本,大分县

BIM建筑网





评论前必须登录!
注册