
AEAJ 景观平台:日本香氛环境协会的新设施整体形状看起来像一棵树,以木材的香气为主题,用日本柏木的小截面(105mm×105mm)组装成树的整体形状,并将其封装在玻璃盒内。这个玻璃盒充满了木材的香气,创造了一个可以在整个设施中体验香味的空间。



主要结构由钢框架组成,但钢构件的尺寸被缩小,以使其与木构件的小截面尺寸接近,以融入颗粒状的独特、细致的感觉中。



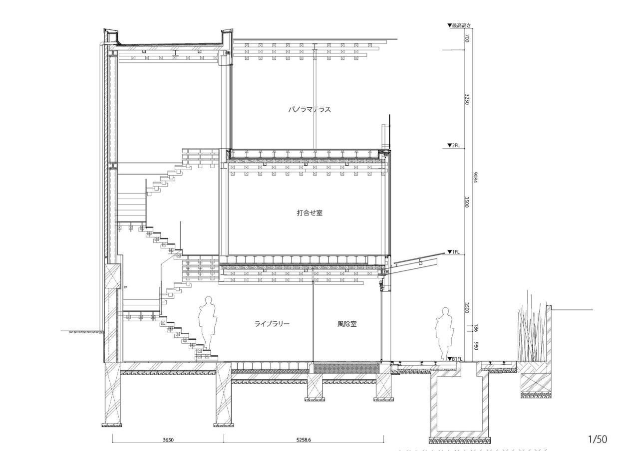
平台的结构像一个平衡玩具,可以欣赏到神宫前林的开阔全景。设计过程的一个焦点是将小木颗粒组合起来,创造一个具有模糊轮廓的结构,类似于建筑工艺项目,与横跨铁轨的丹下健三(Kenzo Tange)设计的国立代代木体育馆形成鲜明对比。





项目图纸

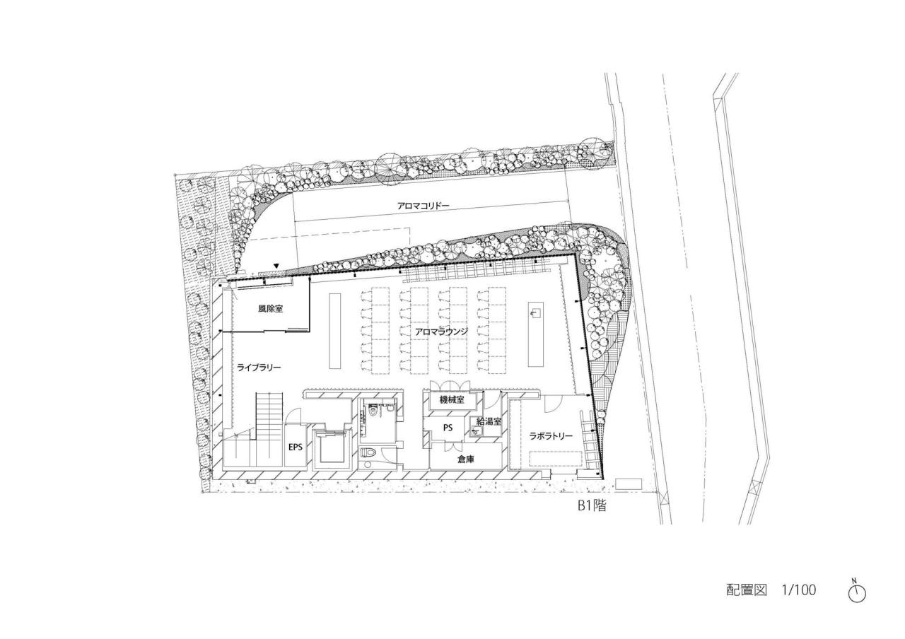
△总平面图

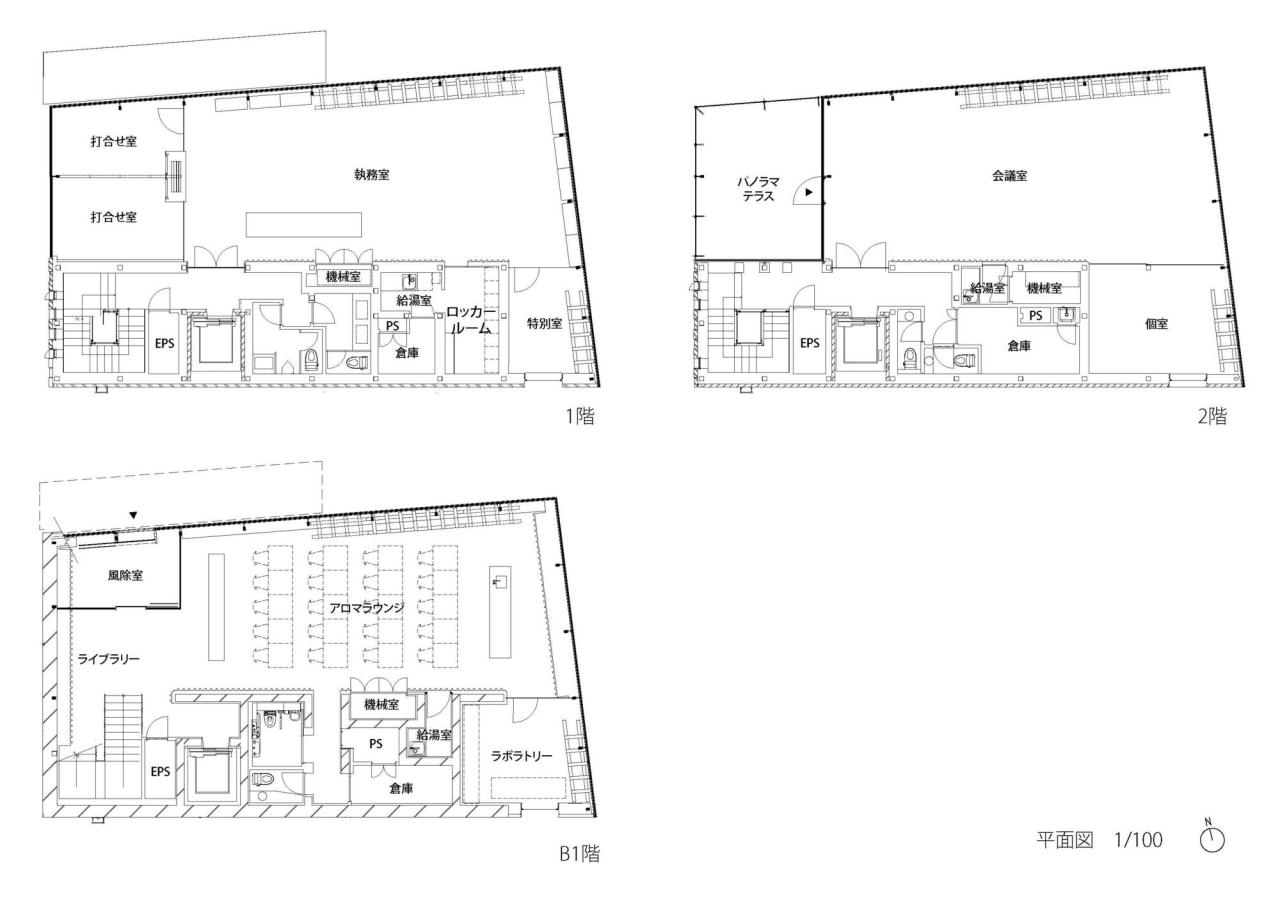
△平面图

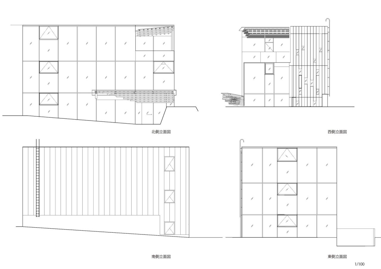
△立面图

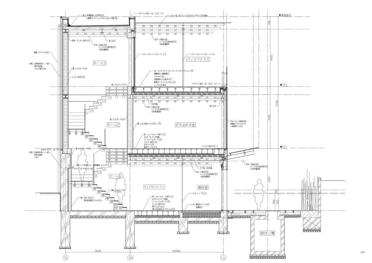
△剖面图

△剖面图

△剖面图
项目信息
建筑师:隈研吾建筑都市设计事务所
面积:491m²
项目年份:2023
摄影师:Masaki Hamada (kkpo)
设计团队:Minoru Yokoo, Yutaro Ota*, Nanako Adachi*, Yohei Mochizuki, Fumiya Kaneko, Yoo Shiho, Kyoko Mase
施工团队:Matsushita Industry
合作方:江尻结构设计事务所
设备工程设计:Kankyo Engineering
照明设计团队:大光电机株式会社
地点:日本,涉谷市
微信公众号:xuebim
关注建筑行业BIM发展、研究建筑新技术,汇集建筑前沿信息!
← 微信扫一扫,关注我们+

BIM建筑网





评论前必须登录!
注册