
大流行病、战争、社会动荡、经济危机、物价上涨、劳动力和材料稀缺。建筑业陷入危机。融资变得困难,利率上升,基础设施和住房短缺。气候变化增加了不确定性,而自然灾害则使行动变得更加紧迫。


面对这一紧急情况,建筑师、设计师和建造者能做些什么?我们怎样才能让那些目前认为建筑和施工离自己很遥远的人也能接触到建筑和施工?


作为与“安第斯之家”结盟的建筑公司,我们设计了一个基于零部件逻辑的工业化建筑系统,类似于汽车和航空航天等行业。我们决定建造一个原型来突出这些问题。
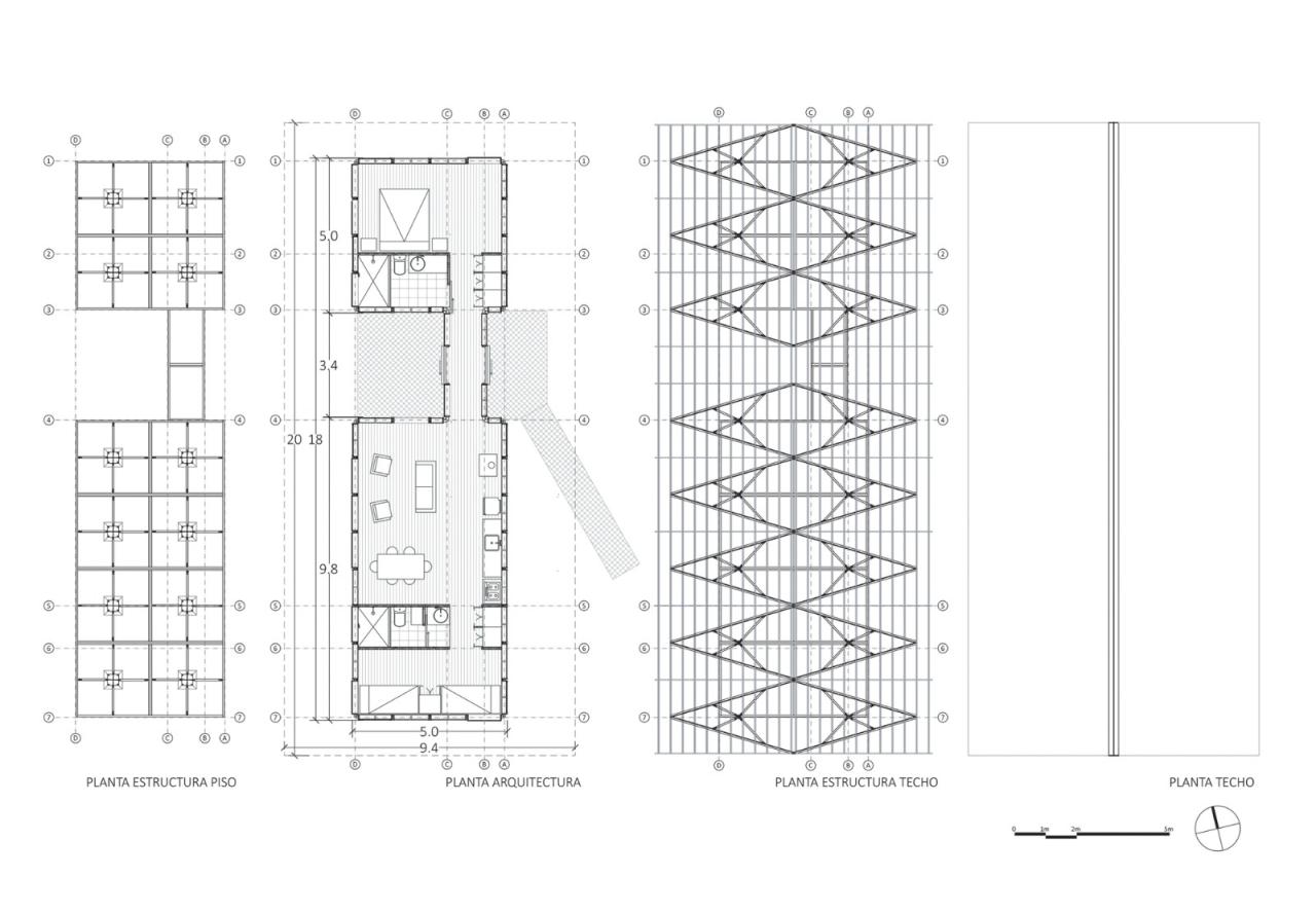
该系统使用木材等可持续材料和钢材等可重复使用的材料开发。通过模块化协调,我们在生产过程中避免了多余的材料。这是一种多功能的轻型系统,其纤细而坚固的金属结构内含木质外壳,用于配置外墙。

这些部件可以更换和重复使用,它们可以拆卸、储存,然后在其他地方重新组装,用于各种用途。由部件组成的结构便于储存,优化了仓库空间,可通过配备起重机的中型卡车进行快速部署和运输,比预制结构更具多功能性。



组装/拆卸时间紧迫,工人人数少,只需按照预先设定的逻辑进行简单组装,无需更多培训。只需要扭矩扳手和电动螺丝刀,这样就能确保时间和成本。
该系统非常灵活,可以横向和纵向扩展,适用于各种用途,从住宅(这是最初开发的用途)到中等高度建筑、学校和医疗中心等。


通风外墙和带有宽大金属屋檐的屋顶为外墙覆面提供了一种经济的解决方案,易于更换且维护成本低。此外,它们还能促进空气对流,实现被动通风。与基于木纤维的隔热材料一起使用,可增加墙壁、地板和天花板的质量,从而实现显著的节能效果。
原型及其组成部分是作为一个通用系统提出的,这意味着其组成部分、方法和原则都是可访问和可调整的,允许其不断发展和改进。我们的目标是对其进行优化,使其适应不同的环境,力求向更高效、可持续和有效的形式发展。

项目信息

△基地示意图

△平面图

△立面图

△结构示意图

△结构分析图

△局部剖透视
项目信息
建筑师:Ignacio Rojas Hirigoyen Arquitectos,The Andes House
项目年份:2022
摄影师:Cristóbal Valdes,Marcos Zegers
厂家: Aza,CMPC
主创建筑师:Ignacio Rojas Hirigoyen
设计工作室:The Andes House
建筑合作方:Ciro Barraza, Angelo Melio
建筑公司:Fernando Gajardo
结构监测:Pedro Bartolome, Katherine Gentina, Jose Andres Allende
施工方:Ignacio Rojas Hirigoyen Constructores
地点:智利,Casablanca

BIM建筑网





评论前必须登录!
注册